Search Properties

7 Laburnum Drive, Armthorpe

Doncaster

£139,995 Offers Over

2 x 1 x
Department:
Sales
Reference:
LK
Type:
Semi-Detached House
Availability:
For Sale
Receptions:
1
Tenure:
Freehold
Council Tax Band:
A

Summary

***GUIDE PRICE £145,000 - £150,000***

WELL PRESENTED TWO DOUBLE BEDROOM SEMI-DETACHED HOUSE / POPULAR ROADWAY WITHIN ARMTHORPE / MODERN FITTED KITCHEN WITH INTEGRATED COOKING APPLIANCES / MODERN BATHROOM WITH SHOWER OVER BATH / FRONT AND REAR GARDENS / CLOSE TO AMENITIES AND MOTORWAY NETWORKS.

Details

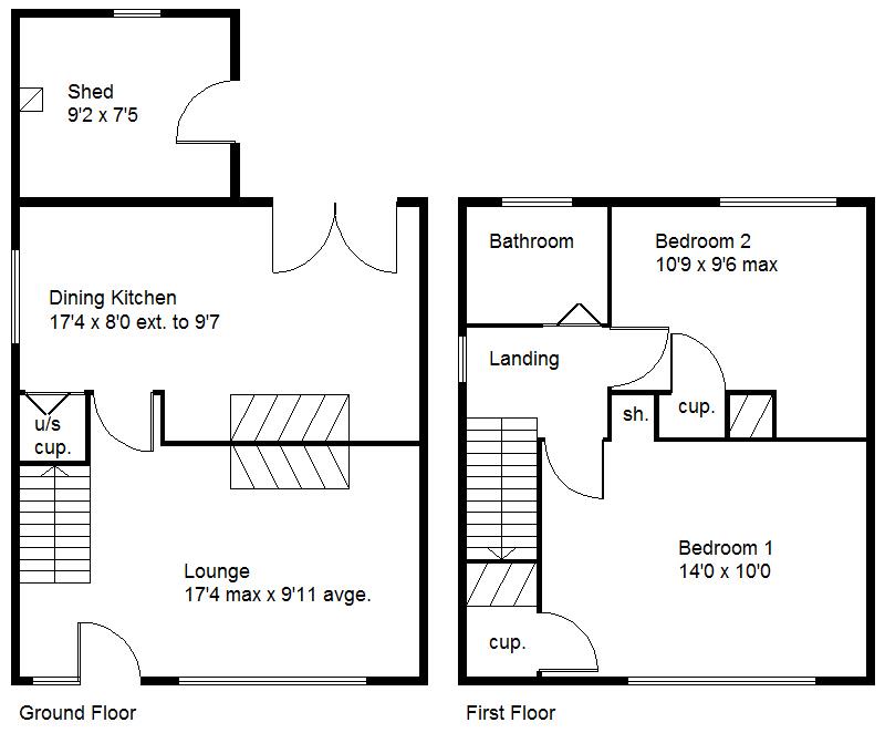
An internal inspection is recommended to fully appreciate this well presented 2 bedroom semi-detached house. It has gas radiator central heating system, pvc double glazing and briefly comprises; Entrance into an open plan lounge, modern fitted dining kitchen with integrated cooking appliances and a deep built-in understairs storage cupboard. First floor landing; 2 double bedrooms, the main bedroom has a large walk-in wardrobe off plus a beautiful modern house bathroom fully tiled with a modern white suite and shower. Outside there are front and rear gardens, the rear is nicely enclosed, there is an integral brick store plus a further shed. The property is well placed with access to amenities within Armthorpe including shops, schools etc, plus access to the motorway networks. EARLY VIEWING RECOMMENDED.

ACCOMMODATION
A pvc double glazed entrance door with matching side screen leads into an open plan lounge.

OPEN PLAN LOUNGE 5.28m x 3.05m (17'4" x 10'0" )
This is an attractive room with modern decor, it has a staircase to the first floor accommodation, two central heating radiators, a broad pvc double glazed window, coving, ceiling light and an ornate fire place.

DINING KITCHEN 5.28m x 2.95m (17'4" x 9'8" )
Again, this is a good size which is fitted with a range of high and low level units finished with a high gloss cabinet door and contrasting work surface. There is a four ring ceramic hob with an extractor hood above and an integrated oven. There is a single drainer 1½ bowl stainless steel sink unit with mixer tap, plumbing for an automatic washing machine, a further space for fridge freezers etc. There are two pvc double glazed windows including a separate double opening double doors which lead out onto a decked patio and sitting area, vinyl flooring and two ceiling lights. A deep built-in pantry style cupboard off with a pvc double glazed window, coat rail etc.

FIRST FLOOR LANDING
There is a pvc double glazed window to the side, an access point into the loft space and a central heating radiator.

BEDROOM 1 4.27m max x 3.10m max (14'0" max x 10'2" max)
This is a large double bedroom which has a pvc double glazed window to the front, central heating radiator, ceiling light, coving plus a deep walk-in wardrobe style cupboard which has a wall mounted gas fired combination type boiler which supplies the domestic hot water and central heating systems (age of boiler unknown).

BEDROOM 2 3.28m max x 2.90m max (10'9" max x 9'6" max)
This is a good sized second double bedroom, it has a pvc double glazed window to the rear, central heating radiator, ceiling light and two in-built cupboards with shelving.

HOUSE BATHROOM
This is all smartly presented, it has a modern white suite with grey tiling and includes a panelled bath with an independent electric shower over including a glazed shower screen, a wash hand basin inset to vanity unit and a low flush wc. There is a contemporary style tall radiator, pvc double glazed window and a waterproof style ceiling with light inset.

OUTSIDE
To the front of the property there is a lawned garden with brick walling and hedging to the perimeters and an ornamental tree inset.

REAR GARDEN
To the rear there is an enclosed garden, mainly lawned with a decked patio and sitting area plus a useful shed to the far end.

AGENTS NOTES:
TENURE - FREEHOLD

SERVICES - All mains services are connected.

DOUBLE GLAZING - PVC double glazing, where stated. Age of units various.

HEATING - Gas radiator central heating. Age of boiler TBC.

COUNCIL TAX - Band A

BROADBAND - Ultrafast broadband is available with download speeds of up to 1800 mbps and upload speeds of up to 1000 mbps.

MOBILE COVERAGE - Coverage is available with EE, Three, 02 and Vodafone.

VIEWING - By prior telephone appointment with horton knights estate agents.

MEASUREMENTS - Please note all measurements are approximate and for guidance purposes only, with a six inch tolerance. Therefore please do NOT rely upon them for carpet measurements, furniture and the like. Similarly, the floor plan is designed as a visual reference and is NOT a scale drawing.

PROPERTY PARTICULARS - We endeavour to make our property particulars accurate and reliable, however if there is a point that is especially important to you, please contact ourselves prior to exchange of contracts, so that we may further clarify that point. We DO NOT give any warranty to the suitability of any part, including fixtures and fittings of this property, prospective buyers are kindly asked to take specific advice from their professional advisors.

OPENING HOURS - Monday - Friday 9:00 - 5:30 Saturday 9:00 - 3:00 Sunday www.hortonknights.co.uk

INDEPENDENT MORTGAGE ADVICE - With so many mortgage options to choose from, how do you know your getting the best deal? Quite simply...YOU DON'T. Talk to an expert. We offer uncomplicated impartial advice. Call us today: 01302 760322.

FREE VALUATIONS - If you need to sell a house then please take advantage of our FREE VALUATION service, contact our Doncaster Office (01302) 760322 for a prompt and efficient service.

Floor Plans

EPC

Request Further Details

Or arrange a viewing

Recent Blog Posts

Latest news and updates

Best Estate Agents Doncaster 30th September Sales

Best Estate Agents Doncaster

Who are the best estate agents Doncaster There are plenty of estate agents to choose from. Both high street estate agents and…

Read More
Easter Opening Hours 6th April News

Easter Opening Hours

🐰Hoping everyone has an egg-stra special Easter.🐰 We are now closed from Good Friday through to Easter Monday. We will open as…

Read More