Search Properties

Bawtry Road, Bessacarr, Doncaster

Doncaster

£450,000 Offers Over

4 x 1 x
Department:
Sales
Reference:
ES
Availability:
Sold STC
Receptions:
2
Tenure:
Freehold
Council Tax Band:
F

Summary

HUGE POTENTIAL / HIGHLY REGARDED BAWTRY ROAD POSITION / THIRD OF AN ACRE PLOT / LARGE DETACHED DORMER PROPERTY / DEMOLISH & REBUILD OPPORTUNITY SUBJECT TO PLANNING / POTENTIAL FOR HIGH VALUE RESIDENCE / VIEWING STRICTLY BY SELLING AGENT //

Details

Attention all developers, speculators or a discerning buyers. We are delighted to bring to the market a substantial detached dormer style property sat on a very large plot, extending to approx. 1/3 of acre on one of Doncaster’s most sought after residential roadways. There is a huge amount of scope and potential……the plot could accommodate a high quality high value detached residence, subject of course to necessary planning permissions.The existing accommodation is laid out over two floors, although the majority of the accommodation is on the ground floor, itbriefly comprises: Large reception hall, L shaped lounge and dining room, kitchen, 2 very large ground floor bedrooms and a large bathroom. On the first floor there is a large bedroom, with a second bedroom off (which would benefit from some re-configuring). The gardens we think extend to approx 1/3 of an acre, although it’s overgrown and difficult to ascertain. Gorgeous position set back off Bawtry Road. VIEWING HIGHLY RECOMMENDED.

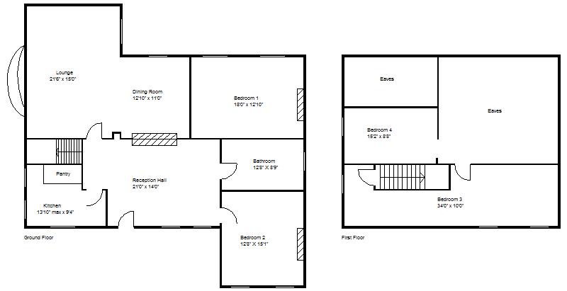
ACCOMMODATION
A substantial timber entrance door leads into a large reception hall.

RECEPTION HALL 6.40m x 4.27m (21'0" x 14'0")
This has a feature fireplace, two arched windows to the front, central ceiling pendant light, a staircase to the first floor, doors to the accommodation.

LOUNGE & DINING ROOM 6.55m max x 4.57m max (21'6" max x 15'0" max )
This is a large 'L' shaped reception room which has a Georgian bow to the side, a further arched window, there is a fireplace, ceiling light, it then opens directly into a dining area with a further leaded glazed window giving an outlook in to the rear garden.

KITCHEN 4.22m max x 3.91m max (13'10" max x 12'10" max)
This has a pantry, two leaded glazed windows to the front and side elevations and a stable type door.

BEDROOM 1 REAR 5.49m x 3.91m (18'0" x 12'10")
This is a large double bedroom with a central fireplace and two leaded windows to the rear garden.

BEDROOM 2 4.60m x 3.86m (15'1" x 12'8")
A large second double bedroom with a central fireplace and two leaded windows to the front elevation.

BATHROOM
This has a leaded window to the side, two central heating radiators, bath, wc and built-in cupboards.

FIRST FLOOR
A staircase from the reception hall gives access to the first floor.

BEDROOM 3 10.36m x 3.05m (34'0" x 10'0")
This has two dormer windows to the front with a further window to the side and a door which continues and leads into a fourth bedroom.

BEDROOM 4
This has a leaded window to the side.

OUTSIDE
The property stands in large gardens extending to approximately 1/3 of an acre, it is overgrown and difficult to see the true potential and therefore viewing is advised.

AGENTS NOTES:
TENURE - FREEHOLD.

SERVICES - All mains services are connected.

GLAZING - .Mainly timber framed single glazed units.

HEATING - A mixture of background and free standing heaters.

COUNCIL TAX - Band F

BROADBAND - Ultrafast broadband is available with download speeds of up to 10000 mbps and upload speeds of up to 10000 mbps.

MOBILE COVERAGE - Coverage is available with EE, Three, 02 and Vodafone.

VIEWING - By prior telephone appointment with horton knights estate agents.

MEASUREMENTS - Please note all measurements are approximate and for guidance purposes only, with a six inch tolerance. Therefore please do NOT rely upon them for carpet measurements, furniture and the like. Similarly, the floor plan is designed as a visual reference and is NOT a scale drawing.

PROPERTY PARTICULARS - We endeavour to make our property particulars accurate and reliable, however if there is a point that is especially important to you, please contact ourselves prior to exchange of contracts, so that we may further clarify that point. We DO NOT give any warranty to the suitability of any part, including fixtures and fittings of this property, prospective buyers are kindly asked to take specific advice from their professional advisors.

OPENING HOURS - Monday - Friday 9:00 - 5:30 Saturday 9:00 - 3:00 Sunday www.hortonknights.co.uk

INDEPENDENT MORTGAGE ADVICE - With so many mortgage options to choose from, how do you know your getting the best deal? Quite simply...YOU DON'T. Talk to an expert. We offer uncomplicated impartial advice. Call us today: 01302 760322.

FREE VALUATIONS - If you need to sell a house then please take advantage of our FREE VALUATION service, contact our Doncaster Office (01302) 760322 for a prompt and efficient service.

Floor Plans

EPC

Request Further Details

Or arrange a viewing

Recent Blog Posts

Latest news and updates

Best Estate Agents Doncaster 30th September Sales

Best Estate Agents Doncaster

Who are the best estate agents Doncaster There are plenty of estate agents to choose from. Both high street estate agents and…

Read More
Easter Opening Hours 6th April News

Easter Opening Hours

🐰Hoping everyone has an egg-stra special Easter.🐰 We are now closed from Good Friday through to Easter Monday. We will open as…

Read More