Search Properties

Bretby Close, Doncaster

Doncaster

£200,000

3 x 1 x
Department:
Sales
Reference:
LK
Type:
Semi-Detached House
Availability:
Sold STC
Receptions:
1
Tenure:
Freehold
Council Tax Band:
B

Summary

EXTENDED 3 BEDROOM SEMI DETACHED HOUSE / 2 STOREY REAR EXTENSION / LARGE MODERN OPEN PLAN LIVING DINING KITCHEN / INTEGRATED APPLIANCES / LARGE MAIN BEDROOM WITH JULIETTE BALCONY / GORGEOUS CONTEMPORARY 4 PIECE BATHROOM / IMMACULATE CONDITION THROUGHOUT / SOUTH WESTERLY REAR GARDEN / ABSOLUTE GEM / INTERNAL VIEWING ESSENTIAL //

Details

Viewers will not be disappointed with this large extended 3 bedroom semi detached house. The modern layout offers well presented accommodation with a fantastic open plan living/ dining / kitchen. It has gas central heating via a combination type boiler, pvc double glazing and briefly comprises: Entrance hall with an oak handrail, attractive lounge, large open plan living dining kitchen with integrated appliances, first floor landing 3 bedrooms including a large main bedroom with double doors and a Juliette balcony plus a gorgeous contemporary styled 4 piece bathroom with a free standing bath. Outside are attractive gardens, off road parking and an EV charge point. The rear garden is enclosed mainly lawned with a decked patio area, plus a detached brick storage type garage. Very popular location with good access to all the amenities, including Lakeside retail and leisure and the city centre. Early viewing highly recommended.

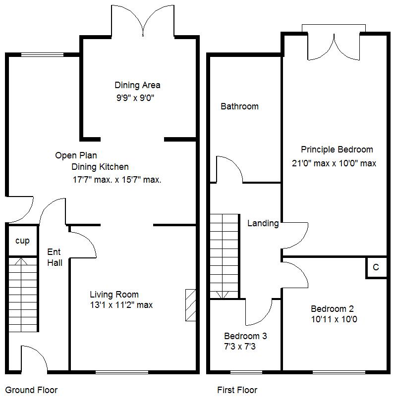
ACCOMMODATION
A composite type door with a matching double glazed side screen leads into the property’s entrance hall.

ENTRANCE HALL
This is all smartly finished, it has a herringbone laid laminate floor covering, central heating radiator, feature oak banister and rail, oak style panelling, central ceiling light.

LOUNGE 3.99m 3.40m (13'1" 11'2")
This is an attractive front facing reception room, it has broad pvc double glazed window with an outlook to the front, a central heating radiator, a continuation of the laminate flooring, central ceiling light, a recess suitable for a fire with timber over mantel, a broad opening which gives access into a now open plan 'L' shaped living dining kitchen. This can also be accessed directly from the hall.

OPEN PLAN LIVING/ DINING/ KITCHEN 5.36m x 2.62m (17'7" x 8'7")
The kitchen has been extended over the years and now creates a large contemporary styled open plan living space. The kitchen is fitted with a range of high and low level units finished with a cream coloured cabinet door and a contrasting oak style block work surface. Integrated appliances include a four ring gas hob with an extractor hood above, integrated double oven and an integrated fridge freezer. There is also plumbing and recess for an automatic washing machine and tumble dryer. Two pvc double glazed windows, a pvc double glazed stable type door, inset spotlighting to the ceiling, central heating radiator, a tall radiator and a built-in understairs storage cupboard.

DINING AREA 2.90m x 2.67m (9'6" x 8'9")
The dining area has pvc double glazed, double opening doors and a further full height window allowing the room a good amount of natural light, feature wall panelling, central heating radiator, a laminate floor covering and a central ceiling light.

FIRST FLOOR LANDING
There is an access point into the loft space, a pvc double glazed window and doors to the bedrooms and bathroom.

PRINCIPLE BEDROOM 6.10m x 3.05m (20'0" x 10'0")
This bedroom benefits from a large extension and has feature pvc double glazed, double opening doors with Juliet style balcony giving an outlook over the rear garden, two central ceiling lights and a central heating radiator.

BEDROOM 2 FRONT 3.33m x 3.05m (10'11" x 10'0")
A good sized second double it has a pvc double glazed window to the front, a central heating radiator, central ceiling light and door to a built-in cupboard with utility shelving.

BEDROOM 3 2.21m x 2.21m (7'3" x 7'3")
This is a comfortable sized single bedroom which has built-in wardrobes over the stair bulkhead, a pvc double glazed window, central heating radiator and a central ceiling light.

HOUSE BATHROOM
This again has been extended, it has a four piece white suite which includes a free standing bath with a gold coloured tap and shower rinse, a separate shower enclosure with a frameless glass screen and rainfall style shower head, wash hand basin inset to a vanity unit with feature stone tiling and back lit mirror and a low flush wc. There are two contemporary style towel rail/radiators, a pvc double glazed window and two ceiling light points.

OUTSIDE
To the front of the property there is a lawned front garden with a drop kerb giving access to a car standing space with double gates continuing along to the side of the property giving access into the rear garden.

REAR GARDEN
Within the garden there is a detached brick storage garage with a metal up and over door, personnel side door, pvc double glazed window. The garden itself is all enclosed with concrete post and timber fencing to the perimeters, it is mainly lawned with a decked patio and sitting area to the far end.

AGENTS NOTES:
TENURE - FREEHOLD

SERVICES - All mains services are connected.

DOUBLE GLAZING - PVC double glazing, where stated. Age of units various.

HEATING - Gas radiator central heating. Age of boiler TBC.

COUNCIL TAX - Band B

BROADBAND - Ultrafast broadband is available with download speeds of up to 1600 mbps and upload speeds of up to 115 mbps.

MOBILE COVERAGE - Coverage is available with EE, Three, 02 and Vodafone.

VIEWING - By prior telephone appointment with horton knights estate agents.

MEASUREMENTS - Please note all measurements are approximate and for guidance purposes only, with a six inch tolerance. Therefore please do NOT rely upon them for carpet measurements, furniture and the like. Similarly, the floor plan is designed as a visual reference and is NOT a scale drawing.

PROPERTY PARTICULARS - We endeavour to make our property particulars accurate and reliable, however if there is a point that is especially important to you, please contact ourselves prior to exchange of contracts, so that we may further clarify that point. We DO NOT give any warranty to the suitability of any part, including fixtures and fittings of this property, prospective buyers are kindly asked to take specific advice from their professional advisors. Please note in this instance, the sellers (not horton knights) will charge offerors an admin fee of £49.00 plus VAT per person to conduct AML/ID checks.

OPENING HOURS - Monday - Friday 9:00 - 5:30 Saturday 9:00 - 3:00 Sunday www.hortonknights.co.uk

INDEPENDENT MORTGAGE ADVICE - With so many mortgage options to choose from, how do you know your getting the best deal? Quite simply...YOU DON'T. Talk to an expert. We offer uncomplicated impartial advice. Call us today: 01302 760322.

FREE VALUATIONS - If you need to sell a house then please take advantage of our FREE VALUATION service, contact our Doncaster Office (01302) 760322 for a prompt and efficient service.

Floor Plans

EPC

Request Further Details

Or arrange a viewing

Recent Blog Posts

Latest news and updates

Best Estate Agents Doncaster 30th September Sales

Best Estate Agents Doncaster

Who are the best estate agents Doncaster There are plenty of estate agents to choose from. Both high street estate agents and…

Read More
Easter Opening Hours 6th April News

Easter Opening Hours

🐰Hoping everyone has an egg-stra special Easter.🐰 We are now closed from Good Friday through to Easter Monday. We will open as…

Read More