Search Properties

Denehall Road, Kirk Sandall, Doncaster

Doncaster

£225,000

4 x 1 x
Department:
Sales
Reference:
LK
Type:
Detached House
Availability:
For Sale
Receptions:
1
Tenure:
Freehold
Council Tax Band:
C

Summary

JUST LISTED...... AN EXTENDED 4 BEDROOM DETACHED HOUSE / LOVELY CUL-DE-SAC POSITION / SPACIOUS LIVING AREAS / MODERN DINING KITCHEN WITH INTEGRATED COOKING APPLIANCES / LONG DRIVEWAY & ATTACHED BRICK GARAGE / PRICED TO SELL //

Details

Early internal viewing is certainly recommended on this extended 4 bedroom detached house. It sits in a lovely cul-de-sac position, on this popular development. It has a gas central heating system, pvc double glazing and briefly comprises: Entrance hall, extended lounge, garden room, modern fitted dining kitchen with integrated appliances, first floor landing, 4 bedrooms and a modern white bathroom with a shower. Outside are attractive gardens, a long side driveway, attached brick garage and additional parking. Well placed with access to local amenities, shops, schools and access to the motorway network via the M18/ M180.

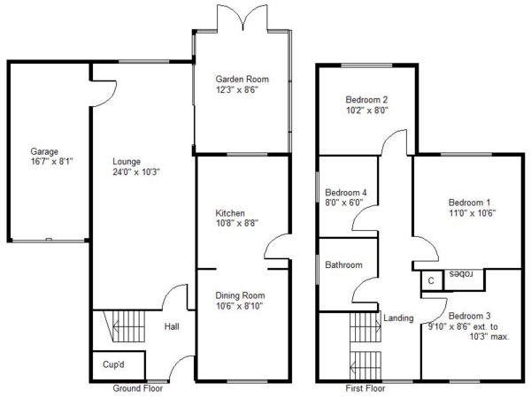
ACCOMMODATION
A pvc double glazed entrance door with matching side screen leads into the property’s entrance hall.

ENTRANCE HALL
This has a staircase to the first floor accommodation, central heating radiator, a deep built-in under-stairs storage cupboard, ceiling light, coving and door to the lounge and dining kitchen.

LOUNGE 7.32m x 3.12m (24'0 x 10'3")
This has been extended over the years to create a larger living space. There is a pvc double glazed window to the far end, a feature fireplace with living flame gas fire inset, coving, 2 ceiling lights and a pvc double glazed sliding patio door which gives access into the garden room.

GARDEN ROOM 3.73m x 2.59m (12'3" x 8'6")
This has pvc double glazing including 2 pvc double glazed double doors which lead out into the rear garden, there is laminate flooring, deep built-in cupboard which has plumbing for an automatic washing machine etc. and inset spot lighting to the ceiling.

KITCHEN AREA 3.25m x 2.67m (10'8 x 8'9")
This is a good size open plan living space. The kitchen area is fitted with a range of modern high and low level units finished with a white high gloss cabinet door, with a contrasting block effect style work surface, a 4 ring ceramic hob, extractor hood and integrated oven. There is also plumbing for a dishwasher, a composite style sink with mixer tap, a recess suitable for an American style fridge/freezer (American fridge/freezer can stay), concealed behind one of the corner cabinets is a wall mounted gas fired combination type boiler that supplies domestic water and central heating systems. It has a pvc double glazed exterior door, laminate flooring and an opening directly into the dining area.

DINING AREA 3.20m x 2.69m (10'6" x 8'10")
This has a pvc double glazed window to the front, laminate flooring, a central heating radiator and an opening into the kitchen area.

FIRST FLOOR LANDING
A pvc double glazed window to the front, coving, inset spotlighting to the ceiling, loft access to a part boarded loft space, tall built-in linen style cupboard with storage and doors to the bedrooms and bathroom.

BEDROOM 1 3.35m max x 3.20m (11'0" max x 10'6")
A good sized double bedroom, it has a pvc double glazed window to the rear, a central heating radiator, coving, central ceiling light and deep built-in wardrobe set in to the recess.

BEDROOM 2 3.10m x 2.44m (10'2" x 8'0")
A second double bedroom, it has a pvc double glazed window to the rear, central heating radiator, coving and central ceiling light.

BEDROOM 3 3.00m x 2.59m extending to 3.12m max (9'10" x 8'5
This has a pvc double glazed window to the front, central heating radiator, coving and inset spot lighting to the ceiling.

BEDROOM 4 2.44m x 1.83m (8'0 x 6'0")
This has a pvc double glazed window to the side, a central heating radiator, coving and inset spot lighting to the ceiling.

BATHROOM
Fitted with a 3 piece suite which comprises of a shower style bath with mixer shower over, wash hand basin and low flush wc. There is a central heating radiator, vinyl flooring, pvc double glazed window, inset spot lighting and extractor fan.

OUTSIDE
The property stands on an attractive plot, to the front there is a dropped kerb giving access to a long side drive which in turn leads to an attached brick garage, this has metal up and over door, power and light plus an integral door into the house. There is additional parking and a lawned front garden with ornamental trees inset.

REAR GARDEN
This has conifer hedging and fencing to the perimeters, it is mainly lawned with a useful timber shed to the far end, decorative flower beds and borders.

AGENTS NOTES:
TENURE - FREEHOLD

SERVICES - All mains services are connected.

DOUBLE GLAZING - PVC double glazing, where stated. Age of units 2012

HEATING - Gas radiator central heating. Age of boiler 2011.

SOLAR PANELS - The property has solar panels fitted under a lease agreement via 'A Shade Greener' on a 25 yr lease, in 2014. At the end of the lease the solar panels can remain or be removed free of charge by the installer.

COUNCIL TAX - Band C

BROADBAND - Ultrafast broadband is available with download speeds of up to xxxx mbps and upload speeds of up to xxxx mbps.

MOBILE COVERAGE - Coverage is available with EE, Three, 02 and Vodafone.

VIEWING - By prior telephone appointment with horton knights estate agents.

MEASUREMENTS - Please note all measurements are approximate and for guidance purposes only, with a six inch tolerance. Therefore please do NOT rely upon them for carpet measurements, furniture and the like. Similarly, the floor plan is designed as a visual reference and is NOT a scale drawing.

PROPERTY PARTICULARS - We endeavour to make our property particulars accurate and reliable, however if there is a point that is especially important to you, please contact ourselves prior to exchange of contracts, so that we may further clarify that point. We DO NOT give any warranty to the suitability of any part, including fixtures and fittings of this property, prospective buyers are kindly asked to take specific advice from their professional advisors. Please note in this instance, the sellers (not horton knights) will charge offerors an admin fee of £49.00 plus VAT per person to conduct AML/ID checks.

OPENING HOURS - Monday - Friday 9:00 - 5:30 Saturday 9:00 - 3:00 Sunday www.hortonknights.co.uk

INDEPENDENT MORTGAGE ADVICE - With so many mortgage options to choose from, how do you know your getting the best deal? Quite simply...YOU DON'T. Talk to an expert. We offer uncomplicated impartial advice. Call us today: 01302 760322.

FREE VALUATIONS - If you need to sell a house then please take advantage of our FREE VALUATION service, contact our Doncaster Office (01302) 760322 for a prompt and efficient service.

Floor Plans

EPC

Request Further Details

Or arrange a viewing

Recent Blog Posts

Latest news and updates

Best Estate Agents Doncaster 30th September Sales

Best Estate Agents Doncaster

Who are the best estate agents Doncaster There are plenty of estate agents to choose from. Both high street estate agents and…

Read More
Easter Opening Hours 6th April News

Easter Opening Hours

🐰Hoping everyone has an egg-stra special Easter.🐰 We are now closed from Good Friday through to Easter Monday. We will open as…

Read More