Search Properties

Long Edge Lane, Doncaster

Doncaster

£245,000

3 x 1 x
Department:
Sales
Reference:
ES
Type:
Semi-Detached House
Availability:
Sold STC
Receptions:
1
Tenure:
Freehold
Council Tax Band:
A

Summary

A STUNNING & EXTENDED 3 BEDROOM SEMI-DETACHED HOUSE / RENOVATED & EXTENDED TO REAR / GORGEOUS NEW OPEN PLAN ISLAND KITCHEN WITH PATIO DOORS ONTO THE REAR GARDEN / CONTEMPORARY OPEN PLAN LIVING SPACE WITH MEDIA WALL / 4 PIECE BATHROOM INCLUDING SEPARATE SHOWER ENCLOSURE / ALL BEAUTIFULLY FINISHED TO INCLUDE OAK INTERIOR DOORS / ATTRACTIVE GARDENS / LOVELY POSITION / OPEN OUTLOOK TO THE FRONT / VIEWING RECOMMENDED //

Details

Located on this highly sought after residential roadway with an open outlook to the front, a fully refurbished and extended 3 bedroom semi-detached house. It has gas radiator central heating via a new combination type boiler, pvc double glazing and briefly comprises: A long entrance hall with a feature Oak staircase to the first floor, gorgeous open plan island kitchen onto the rear garden, open plan lounge/dining room including feature media wall, separate utility room, first floor landing, 3 good sized bedrooms and a newly installed 4 piece bathroom which includes a separate walk-in shower. Outside, good sized front and rear gardens. Well placed with access to local amenities including access to the A1 and motorway networks. NO UPWARD CHAIN. FIRST TO VIEW WILL BUY.

ACCOMMODATION
A pvc double glazed entrance door leads into the property's entrance hall.

ENTRANCE HALL
This has a staircase to the first floor accommodation with oak newel post and banister rail, it has a tiled floor, pvc double glazed window, central heating radiator, inset spot lighting to the ceiling and in-built storage under the stairs. An oak interior door (which can be found throughout the remainder of the property) leads into a utility room.

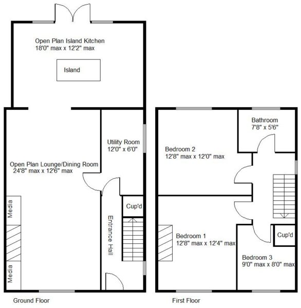
UTILITY ROOM 3.66m x 1.83m (12'0" x 6'0")
All beautifully finished this has a range of modern light grey shaker style cabinet doors with a contrasting Corian work surface over, there are 2 pvc double glazed windows, plumbing for a washing machine, tumble drier etc, central heating radiator and a continuation of the tiled flooring. A door from here leads into a beautiful open plan living/dining room.

OPEN PLAN LIVING/DINING ROOM 7.52m max x 3.81m max (24'8" max x 12'6" max)
A particularly good size (as evidenced by the room measurements), there is a feature media wall, pvc double glazed window, 2 double panel central heating radiators, LVT flooring throughout and inset spot lighting to the ceiling. A broad opening continues through into a contemporary island kitchen.

ISLAND KITCHEN 5.49m max x 3.71m max (18'0" max x 12'2" max)
This forms part of an extension again a good size it has 2 pvc double glazed double opening doors with matching double glazed side screen giving a bank of windows along the rear wall and allow the room a good amount of natural light along with a lantern style central roof light. The kitchen units are finished with grey cabinet doors with a Corian work surface, there is a stainless steel sink with contemporary style mixer tap, integrated appliances include a 4 ring ceramic hob, integrated oven and chimney style extractor hood above. Within the kitchen there is integrated appliances to include integrated dishwasher, integrated fridge and freezer standing side by side, continuation of the LVT flooring, the breakfast island extends to provide a breakfast bar, there is inset spot lighting to the ceiling and a central heating radiator.

FIRST FLOOR LANDING
There is a pvc double glazed window to the side, an access point into the loft space, inset spot lighting to the ceiling and doors to the bedrooms and bathroom.

BEDROOM 1 3.86m max x 3.76m max (12'8" max x 12'4" max)
A large double bedroom, it has a pvc double glazed window to the front, central heating radiator, a feature acoustic oak panelled wall and inset spot lighting to the ceiling.

BEDROOM 2 3.86m max x 3.66m max (12'8" max x 12'0" max)
A fantastic second double bedroom, again with a pvc double glazed window to the rear, central heating radiator, feature oak panelling to the wall and inset spot lighting to the ceiling.

BEDROOM 3 2.74m max x 2.44m max (9'0" max x 8'0" max)
A comfortable third bedroom, it has a pvc double glazed window to the front, inset spot lighting to the ceiling and a built-in wardrobe over the stair bulk head.

BATHROOM 2.34m x 1.68m (7'8" x 5'6")
All beautifully finished with a modern new white suite that comprises of a panelled bath, separate walk-in shower enclosure, low flush wc and wash hand basin. There is a contemporary style towel rail/radiator, feature tiling to the walls and coordinating floor tile, a pvc double glazed window, inset spot lighting to the ceiling, extractor fan and a contemporary style chrome towel rail/radiator.

OUTSIDE
To the front of the property there is a hard landscaped front garden with concrete and timber fencing to the perimeters.

REAR GARDEN
This is all enclosed with concrete posts and timber fencing to the perimeters, mainly lawned with several maturing shrubs and plants creating screening and privacy.

AGENTS NOTES:
TENURE - Freehold.

SERVICES - All mains services are connected.

DOUBLE GLAZING - PVC double glazing, where stated. Age of units various.

HEATING - Gas radiator central heating via a combination type boiler. Age of boiler TBC.

COUNCIL TAX - Band A.

BROADBAND - Ultrafast broadband is available with download speeds of up to 1800 mbps and upload speeds of up to 220 mbps.

MOBILE COVERAGE - Coverage is available with EE, Three, 02 and Vodafone.

VIEWING - By prior telephone appointment with horton knights estate agents.

MEASUREMENTS - Please note all measurements are approximate and for guidance purposes only, with a six inch tolerance. Therefore please do NOT rely upon them for carpet measurements, furniture and the like. Similarly, the floor plan is designed as a visual reference and is NOT a scale drawing.

PROPERTY PARTICULARS - We endeavour to make our property particulars accurate and reliable, however if there is a point that is especially important to you, please contact ourselves prior to exchange of contracts, so that we may further clarify that point. We DO NOT give any warranty to the suitability of any part, including fixtures and fittings of this property, prospective buyers are kindly asked to take specific advice from their professional advisors.

OPENING HOURS - Monday - Friday 9:00 - 5:30 Saturday 9:00 - 3:00 Sunday www.hortonknights.co.uk

INDEPENDENT MORTGAGE ADVICE - With so many mortgage options to choose from, how do you know your getting the best deal? Quite simply...YOU DON'T. Talk to an expert. We offer uncomplicated impartial advice. Call us today: 01302 760322.

FREE VALUATIONS - If you need to sell a house then please take advantage of our FREE VALUATION service, contact our Doncaster Office (01302) 760322 for a prompt and efficient service.

Floor Plans

EPC

Request Further Details

Or arrange a viewing

Recent Blog Posts

Latest news and updates

Best Estate Agents Doncaster 30th September Sales

Best Estate Agents Doncaster

Who are the best estate agents Doncaster There are plenty of estate agents to choose from. Both high street estate agents and…

Read More
Easter Opening Hours 6th April News

Easter Opening Hours

🐰Hoping everyone has an egg-stra special Easter.🐰 We are now closed from Good Friday through to Easter Monday. We will open as…

Read More