Search Properties

Smith Close,Armthorpe, Doncaster

Doncaster

£190,000 Offers in Region of

2 x 1 x
Department:
Sales
Reference:
LJ
Type:
Semi-Detached House
Availability:
Sold STC
Receptions:
1
Tenure:
Freehold
Council Tax Band:
A

Summary

SOLD WITH NO ONWARD CHAIN / IMMACULATE TWO DOUBLE BEDROOM SEMI / ONLY ONE YEAR OLD, WITH 9 YEARS WARRANTY REMAINING ON THE PROPERTY AND 1 YEAR BUILDERS WARRANTY / BUILT BY STONEBRIDGE HOMES / BEAUTIFUL FITTED KITCHEN / BUILT IN WARDROBES TO BOTH BEDROOMS / PLANTATION BLINDS TO THE WINDOWS / AMPLE OFF ROAD PARKING WITH EV CHARGE POINT / LARGER THAN AVERAGE GARDENS / VIEWING ESSENTIAL//

Details

Located on this popular new development, an immaculate two double bedroom semi detached house, built to the popular Cypress styling. It has a gas radiator central heating system, PVC double glazing, remainder of an NHBC guarantee and briefly comprises: Entrance hall with stairs to first floor, ground floor W/C, spacious lounge with double doors onto the rear garden, beautifully fitted kitchen with integrated appliances, first floor landing, two double bedrooms, both with fitted wardrobes and an immaculate contemporary style white bathroom. Outside there is larger than average gardens, long driveway with EV charge point, well placed with access to local amenities in Armthorpe including a good variety of shops and schools etc. as well as access to motorway networks.

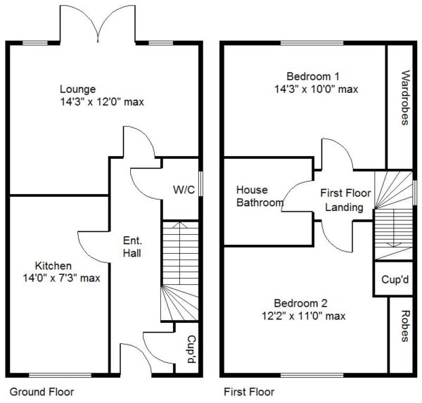
ACCOMMODATION
A canopy gives shelter to a composite type double glazed entrance door and leads into the property’s entrance hall.

ENTRANCE HALL
This is all smartly presented and sets the theme for the remained of the property, it has a staircase to the first floor accommodation, modern luxury vinyl tile ‘LVT’ style flooring, inset spotlighting to the ceiling and door to a tall cupboard. This houses a gas fired combination type boiler which supplies the domestic hot water and central heating systems.

GROUND FLOOR W/C
This is smartly finished with a modern two piece white suite that comprises of a low flush W/C, wash hand basin, a continuation of the LVT flooring. Complimented with modern tiling to the walls, a central heating radiator, PVC double glazed window with a fitted plantation style blind.

LOUNGE 4.34m x 3.66m max (14'3" x 12'0" max )
This is an attractive and good sized room, it has two pvc double glazed double opening doors which lead out onto the rear garden with windows to either side, fitted with plantation blinds, a double panel central heating radiator and a central ceiling light.

CONTEMPORARY KITCHEN 4.27m x 2.21m max (14'0" x 7'3" max )
This is all beautifully finished with a range of modern high and low level units, with a satin style cabinet door, a contrasting work surface. Integrated appliances including a gas and glass hob with matching splashback, a contemporary style extractor hood, integrated double oven, integrated fridge and freezer and an integrated dishwasher. There is a breakfast bar opposite the dishwasher, perfect for eating a meal and with space to store stools away underneath. There is plumbing for automatic washing machine, a continuation of the LVT style flooring, double panel central heating radiator, PVC double glazed window with fitted plantation blinds, and inset spotlighting to the ceiling.

FIRST FLOOR LANDING
PVC double glazed window to the side, an access point into the loft space, and doors to bedrooms and bathrooms.

BEDROOM 1 4.34m x 3.05m max (14'3" x 10'0" max )
This is a lovely double bedroom, it has a PVC double glazed window with fitted blinds and gives an outlook over the rear garden, central heating radiator, fitted wardrobes, power points with USB ports, second thermostat for a dual zone central heating.

BEDROOM 2 3.71m x 3.35m max (12'2" x 11'0" max )
A good sized second double bedroom, it has a PVC double glazed window, fitted wardrobes, central heating radiator, central ceiling light, and a tall built in cupboard providing storage.

HOUSE BATHROOM
Finished with a modern white ‘ Villeroy and Boch’ suite which comprises of a paneled bath with a mains plumb thermostatic shower, a floating wash hand basin, and a low flush W/C, all complimented with modern tiling to the bathing areas and half walls, a contemporary chrome towel rail/ radiator, a co-coordinating tiled floor, extractor fan, and inset spotlighting to the ceiling.

OUTSIDE
To the front of the property there is a forecourt style garden, which is neatly tended.

REAR GARDEN
Outside to the rear of the property there is a larger than average enclosed rear garden, this is mainly lawned with timber fencing to the perimeters and includes the timber shed. To the side of the property there is a driveway which provides car standing for several vehicles with an EV charge point.

AGENTS NOTES:
TENURE - FREEHOLD.

SERVICES - All mains services are connected.

DOUBLE GLAZING - PVC double glazing, were stated. Age of units, 2024.

HEATING - Gas radiator central heating with via a combination type boiler. Age of boiler 2024.

COUNCIL TAX - Band A.

BROADBAND - Ultrafast broadband is available with download speeds of up to 1000 mbps and upload speeds of up to 1000 mbps.

MOBILE COVERAGE - Coverage is available with EE, Three, 02 and Vodafone.

VIEWING - By prior telephone appointment with horton knights estate agents.

MEASUREMENTS - Please note all measurements are approximate and for guidance purposes only, with a six inch tolerance. Therefore please do NOT rely upon them for carpet measurements, furniture and the like. Similarly, the floor plan is designed as a visual reference and is NOT a scale drawing.

PROPERTY PARTICULARS - We endeavour to make our property particulars accurate and reliable, however if there is a point that is especially important to you, please contact ourselves prior to exchange of contracts, so that we may further clarify that point. We DO NOT give any warranty to the suitability of any part, including fixtures and fittings of this property, prospective buyers are kindly asked to take specific advice from their professional advisors.

OPENING HOURS - Monday - Friday 9:00 - 5:30 Saturday 9:00 - 3:00 Sunday www.hortonknights.co.uk

INDEPENDENT MORTGAGE ADVICE - With so many mortgage options to choose from, how do you know your getting the best deal? Quite simply...YOU DON'T. Talk to an expert. We offer uncomplicated impartial advice. Call us today: 01302 760322.

FREE VALUATIONS - If you need to sell a house then please take advantage of our FREE VALUATION service, contact our Doncaster Office (01302) 760322 for a prompt and efficient service.

Floor Plans

EPC

Request Further Details

Or arrange a viewing

Recent Blog Posts

Latest news and updates

Best Estate Agents Doncaster 30th September Sales

Best Estate Agents Doncaster

Who are the best estate agents Doncaster There are plenty of estate agents to choose from. Both high street estate agents and…

Read More
Easter Opening Hours 6th April News

Easter Opening Hours

🐰Hoping everyone has an egg-stra special Easter.🐰 We are now closed from Good Friday through to Easter Monday. We will open as…

Read More