Search Properties

St. Michaels Drive, Thorne, Doncaster

Doncaster

£150,000

3 x 1 x
Department:
Sales
Reference:
LJ
Type:
Semi-Detached House
Availability:
For Sale
Receptions:
2
Tenure:
Freehold
Council Tax Band:
B

Summary

3 BEDROOM SEMI-DETACHED HOUSE / POPULAR ESTATE / PERFECT RENOVATION PROJECT / GAS RADIATOR CENTRAL HEATING SYSTEM / PVC DOUBLE GLAZING / PVC CONSERVATORY / VACANT POSSESSION / NO UPWARD CHAIN //

Details

Well placed on this attractive development, a 3 bedroom semi-detached house with side driveway and a garage. It does require some updating and redecoration throughout making it a perfect project for someone. It has a gas radiator central heating system, PVC double glazing including fitted plantation blinds and briefly comprises: Entrance porch into a large open plan lounge, fitted dining kitchen, PVC conservatory. First floor landing, 3 bedrooms and a bathroom. Front and rear gardens, side driveway and a detached garage. It is well placed for access to amenities within Thorne and also offers good access to the motorway networks via the M18/ M180. No upward chain. Viewing is recommended.

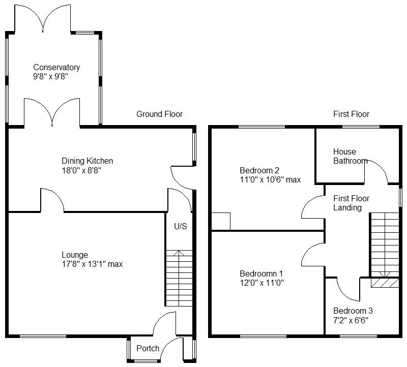
FRONT ELEVATION
A PVC double glazed entrance porch leads into the property’s lounge.

LOUNGE 5.38m max x 3.99m max (17'8" max x 13'1" max)
This is a large open plan room with a staircase to the first floor, two double panelled central heating radiators, a wall mounted gas fire, broad PVC double glazed windows to the front with fitted plantation blinds, central ceiling light and door into dining kitchen.

DINING KITCHEN 5.49m x 2.64m (18'0" x 8'8")
The kitchen is fitted with a range of high and low level units finished with a work surface over. There is a five ring gas hob with extractor hood above, integrated oven, single drainer stainless steel sink unit, plumbing for automatic washing machine. A wall mounted gas fired boiler supplies the domestic water and central heating systems, PVC double glazed window fitted with plantation blind, a PVC double glazed door and a deep built-in understairs storage cupboard. From the rear of the dining area double doors lead out into the conservatory.

PVC CONSERVATORY 2.95m x 2.95m (9'8" x 9'8")
This is PVC double glazed with PVC double glazed double open doors which lead into the rear garden. There is a double panelled central heating radiator, vinyl flooring, lean-to style PVC polycarbonate roof.

FIRST FLOOR LANDING
Access point into the loft space, PVC double glazed window with plantation blinds, ceiling light and door to the bedrooms and bathroom.

BEDROOM 1 FRONT 3.66m x 3.35m (12'0" x 11'0")
A good sized double bedroom, it has a broad PVC double glazed window to the front with fitted plantation blind, fitted wardrobes, central heating radiator and a ceiling light.

BEDROOM 2 REAR 3.35mmax x 3.05m max (11'0"max x 10'0" max)
Again a good sized second double bedroom, it has a PVC double glazed window to the rear with a more pleasant outlook over looking school playing fields, fitted plantation blinds, central heating radiator, built-in cupboard which houses hot-water cylinder and linen storage.

BEDROOM 3 FRONT 2.18m max x 1.98m max (7'2" max x 6'6" max)
This has a PVC double glazed window to the front, fitted plantation blinds, central heating radiator and a ceiling light.

BATHROOM
This has a white suite which comprises of a panelled bath, wash hand basin and low flush W/C, there's a PVC double glazed window, central heating radiator, vinyl floor covering and ceiling light.

OUTSIDE
The property has a front and rear garden. There is a dropped kerb which provides access onto a concrete drive which in turn leads to a detached sectional style garage with a metal up and over door.

REAR GARDEN
This has timber fencing and conifer hedging to the perimeters all enjoying a pleasant outlook over looking school playing fields to the rear.

AGENTS NOTES:
TENURE - FREEHOLD.

SERVICES - All mains services are connected.

DOUBLE GLAZING - PVC double glazing, where stated. Age of units various.

HEATING - Gas radiator central heating. Age of boiler unknown.

COUNCIL TAX - Band A

BROADBAND - Ultrafast broadband is available with download speeds of up to 1000 mbps and upload speeds of up to 1000 mbps.

MOBILE COVERAGE - Coverage is available with EE, Three, 02 and Vodafone.

VIEWING - By prior telephone appointment with horton knights estate agents.

MEASUREMENTS - Please note all measurements are approximate and for guidance purposes only, with a six inch tolerance. Therefore please do NOT rely upon them for carpet measurements, furniture and the like. Similarly, the floor plan is designed as a visual reference and is NOT a scale drawing.

PROPERTY PARTICULARS - We endeavour to make our property particulars accurate and reliable, however if there is a point that is especially important to you, please contact ourselves prior to exchange of contracts, so that we may further clarify that point. We DO NOT give any warranty to the suitability of any part, including fixtures and fittings of this property, prospective buyers are kindly asked to take specific advice from their professional advisors.

OPENING HOURS - Monday - Friday 9:00 - 5:30 Saturday 9:00 - 3:00 Sunday www.hortonknights.co.uk

INDEPENDENT MORTGAGE ADVICE - With so many mortgage options to choose from, how do you know your getting the best deal? Quite simply...YOU DON'T. Talk to an expert. We offer uncomplicated impartial advice. Call us today: 01302 760322.

FREE VALUATIONS - If you need to sell a house then please take advantage of our FREE VALUATION service, contact our Doncaster Office (01302) 760322 for a prompt and efficient service.

Floor Plans

EPC

Request Further Details

Or arrange a viewing

Recent Blog Posts

Latest news and updates

Best Estate Agents Doncaster 30th September Sales

Best Estate Agents Doncaster

Who are the best estate agents Doncaster There are plenty of estate agents to choose from. Both high street estate agents and…

Read More
Easter Opening Hours 6th April News

Easter Opening Hours

🐰Hoping everyone has an egg-stra special Easter.🐰 We are now closed from Good Friday through to Easter Monday. We will open as…

Read More