Search Properties

Sunflower Gardens, Bessacarr, Doncaster

Doncaster

£199,995

3 x 2 x
Department:
Sales
Reference:
LJ
Type:
Mid Terrace
Availability:
For Sale
Receptions:
1
Tenure:
Leasehold
Council Tax Band:
B

Summary

3 BEDROOM SEMI DETACHED FAMILY HOME / HIGHLY SOUGHT AFTER RESIDENTIAL AREA / LARGE ATTACHED CARPORT & ADDITIONAL PARKING / SPACIOUS OPEN PLAN DINING KITCHEN / LOUNGE WITH DOUBLE DOORS INTO THE PRETTY REAR GARDEN / EN-SUITE & HOUSE BATHROOM / VIEWING RECOMMENDED //

Details

This good sized 3 bedroom family house sits in a very desirable residential area on this modern and popular development. It has a gas central heating system, pvc double glazing and briefly comprises: Entrance hall with a ground floor wc off, spacious lounge and a large open plan dining kitchen both with double doors onto the rear garden. First floor landing, 3 good sized bedrooms, the main bedroom has an en-suite shower room plus there is a separate house bathroom. Outside there is ample parking, which includes a large side carport. Corner front gardens and an enclosed pretty rear garden. The property offers good access to local schools, amenities including Lakeside retail and leisure and the City Centre, plus good transport links via the motorway network.

ACCOMMODATION
A double glazed entrance door leads into the properties entrance hall.

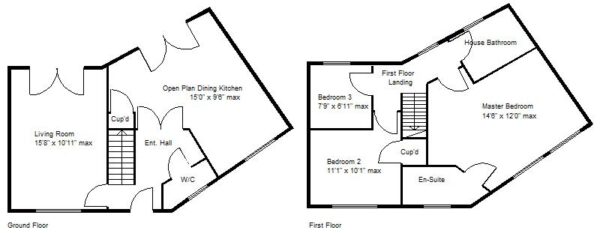
ENTRANCE HALL 2.98m x 2.95m (9'9" x 9'8")
This has a staircase to the first floor accommodation, a central heating radiator, vinyl flooring, coving to the ceiling and door to ground floor wc.

GROUND FLOOR WC
This is fitted with a modern two piece white suite comprising of a low flush wc, wash hand basin inset to vanity unit, there is a pvc double glazed window, central heating radiator, continuation of the vinyl flooring and a ceiling light.

OPEN PLAN DINING KITCHEN 4.70 x 2.90m (15'5" x 9'6")
Double doors from the entrance hall lead into a beautiful open plan dining kitchen, this is all smartly fitted with a range of modern high and low level units finished with a rolled edge work surface. There is a four ring gas hob with an extractor hood above and integrated oven beneath. There is a single drainer stainless steel sink unit with a mixer tap, plumbing and washing machine included, concealed behind one of the corner cabinets is a wall mounted gas fired boiler which supplies the domestic hot water and central heating systems. There is a deep built-in storage cupboard and pvc double glazed double opening doors which lead out on to the rear garden. There is a large central heating radiator and two ceiling lights.

SPACIOUS LOUNGE 4.79m x 3.35m (15'8" x 10'11" )
This is an attractive dual aspect room, it has a pvc double glazed window to the front and a further pvc double glazed double opening doors to the rear. There is a feature fireplace two central heating radiators, coving and a central ceiling light.

FIRST FLOOR LANDING
There is a pvc double glazed window with an outlook over the rear garden, central heating radiator and an access point into the loft space, ceiling light and a smoke alarm.

MASTER BEDROOM 4.43m x 3.66m (14'6" x 12'0")
This is a large double, it has two pvc double glazed windows, central heating radiator, central ceiling light and a door which opens into an en-suite shower room.

EN-SUITE SHOWER ROOM 2.65m x 1.47m (8'8" x 4'9" )
This is all smartly finished with a modern white suite that comprises of a shower enclosure, wash basin and low flush wc, central heating radiator, vinyl flooring, extractor fan and a ceiling light.

BEDROOM 2 3.39m x 3.35m (11'1" x 10'11" )
This is a good sized second double, it has a pvc double glazed window to the front, central heating radiator, central ceiling light and a deep in-built cupboard which houses a pressurised hot water cylinder which provides the home with a high pressure hot water supply.

BEDROOM 3 2.38m x 2.12m (7'9" x 6'11")
This has a pvc double glazed window, central heating radiator and a central ceiling light.

HOUSE BATHROOM 3.65 x 2.60 (11'11" x 8'6")
This is fitted with a 3 piece white suite comprising of a panelled bath with a shower mixer over, pedestal wash hand basin and a low flush wc. There is ceramic tiling to the splashbacks and bathing areas, central heating radiator, vinyl flooring, ceiling light, extractor fan and a pvc double glazed window.

OUTSIDE

REAR GARDEN

AGENTS NOTES:
TENURE - LEASEHOLD.

SERVICES - All mains services are connected.

DOUBLE GLAZING - PVC double glazing, where stated. Age of units various.

HEATING - Gas radiator central heating. Age of boiler...TBC.

COUNCIL TAX - Band B.

BROADBAND - Ultrafast broadband is available with download speeds of up to 1000 mbps and upload speeds of up to 1000 mbps.

MOBILE COVERAGE - Coverage is available with EE, Three, 02 and Vodafone.

VIEWING - By prior telephone appointment with horton knights estate agents.

MEASUREMENTS - Please note all measurements are approximate and for guidance purposes only, with a six inch tolerance. Therefore please do NOT rely upon them for carpet measurements, furniture and the like. Similarly, the floor plan is designed as a visual reference and is NOT a scale drawing.

PROPERTY PARTICULARS - We endeavour to make our property particulars accurate and reliable, however if there is a point that is especially important to you, please contact ourselves prior to exchange of contracts, so that we may further clarify that point. We DO NOT give any warranty to the suitability of any part, including fixtures and fittings of this property, prospective buyers are kindly asked to take specific advice from their professional advisors.

OPENING HOURS - Monday - Friday 9:00 - 5:30 Saturday 9:00 - 3:00 Sunday www.hortonknights.co.uk

INDEPENDENT MORTGAGE ADVICE - With so many mortgage options to choose from, how do you know your getting the best deal? Quite simply...YOU DON'T. Talk to an expert. We offer uncomplicated impartial advice. Call us today: 01302 760322.

FREE VALUATIONS - If you need to sell a house then please take advantage of our FREE VALUATION service, contact our Doncaster Office (01302) 760322 for a prompt and efficient service.

Floor Plans

EPC

Request Further Details

Or arrange a viewing

Recent Blog Posts

Latest news and updates

Best Estate Agents Doncaster 30th September Sales

Best Estate Agents Doncaster

Who are the best estate agents Doncaster There are plenty of estate agents to choose from. Both high street estate agents and…

Read More
Easter Opening Hours 6th April News

Easter Opening Hours

🐰Hoping everyone has an egg-stra special Easter.🐰 We are now closed from Good Friday through to Easter Monday. We will open as…

Read More