Search Properties

Washington Grove, Bentley, Doncaster

Doncaster

£120,000 Guide Price

3 x 1 x
Department:
Sales
Reference:
LJ
Type:
Mid Terrace
Availability:
Sold STC
Receptions:
1
Tenure:
Freehold
Council Tax Band:
A

Summary

***GUIDE PRICE £120,000 - £125,000***

3 BEDROOM FORE COURTED TERRACED HOUSE / SPACIOUS MODERN LIVING / GCH VIA COMBI BOILER / MODERN GREY KITCHEN WITH INTEGRATED COOKING APPLIANCES / MODERN GROUND FLOOR SHOWER ROOM / REAR COURTYARD GARDEN / PERFECT FOR INVESTOR / VIEWING ESSENTIAL //

Details

A spacious 3 bedroom forecourted terraced house on this popular roadway, between Bentley and the City centre making it a perfect investment. It has a gas central heating system via a modern combination type boiler, PVC double glazing and briefly comprises: Long entrance hall with stairs off, spacious open plan lounge and separate dining area, modern fitted grey kitchen with integrated cooking appliances, lobby and a recent modern ground floor shower room. On the first floor is a long landing with access into a boarded storage loft space, 3 bedrooms all of which are a good size. Forecourt and a larger enclosed rear courtyard garden on to a rear lane. Close to amenities, including shops, schools and the city centre. VIEWING RECOMMENDED.

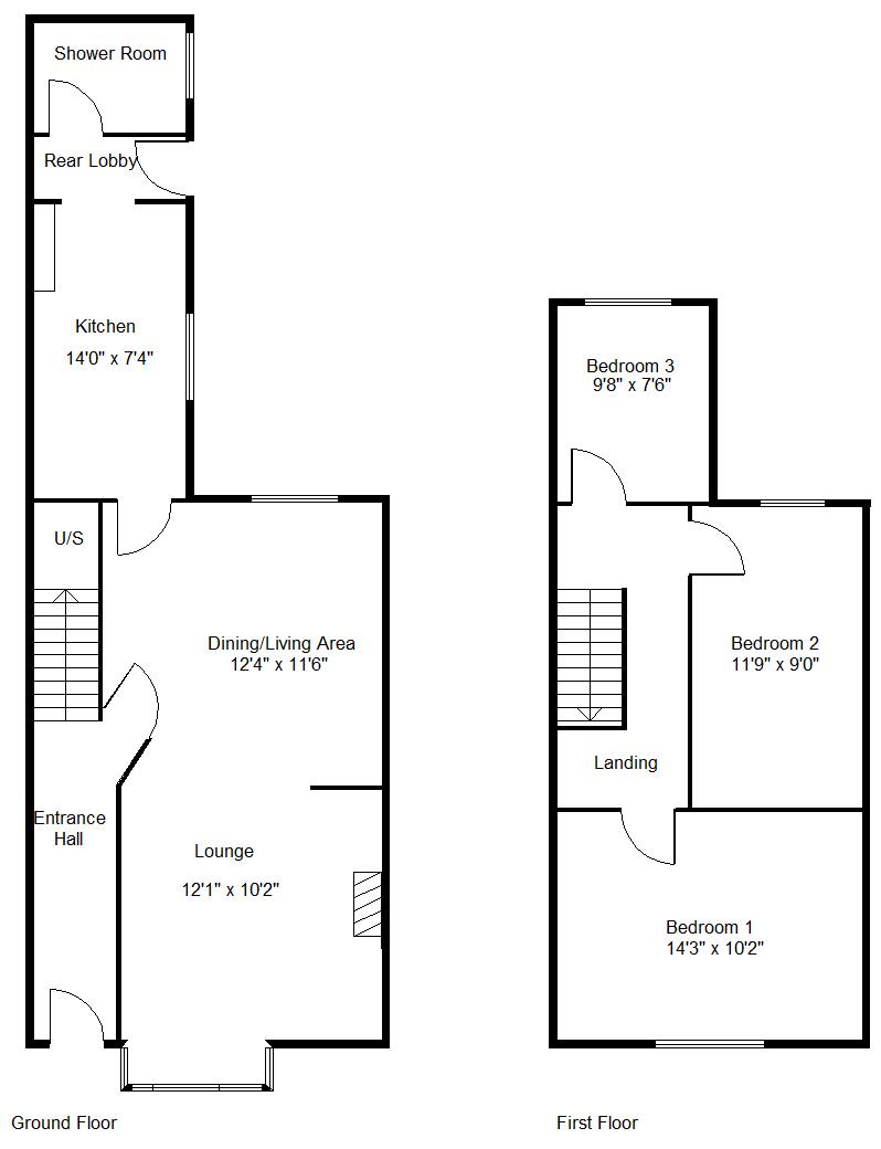
ACCOMMODATION
A pvc double glazed entrance door with fan light over leads into the property's entrance hall.

ENTRANCE HALL
This is typical of the age and period of the property with high ceilings, it has coving to the ceiling, a central heating radiator, staircase to the first floor accommodation and a door into a open plan lounge and dining room.

LOUNGE AREA 3.68m " x 3.10m (12'1 " x 10'2")
This has a broad pvc double glazed window to the front, a central heating radiator, wall mounted fire, coving, ceiling light and a broad opening which leads through into a dining/living area.

DINING/LIVING AREA 3.76m x 3.51m (12'4" x 11'6")
This has a pvc double glazed window to the rear, a central heating radiator, laminate flooring, coving and a central ceiling light. A doorway continues into a fitted kitchen.

FITTED KITCHEN 4.27m x 2.24m (14'0" x 7'4")
This is all smartly finished with a range of modern high and low level grey fronted cabinet doors, a coordinating work surface, a single drainer stainless steel sink unit, 4 ring gas hob, integrated oven, plumbing for an automatic washing machine and space for a tall fridge freezer. There is a pvc double glazed window, laminate flooring, concealed behind the tall cabinet is a wall mounted gas fired combination type boiler which supplies the domestic hot water and central heating systems. A doorway leads into a rear lobby.

REAR LOBBY
There is a composite type of door which gives access to the rear garden and a further door into a ground floor shower room.

GROUND FLOOR SHOWER ROOM
Again, this is all smartly finished with a modern white suite that comprises of a walk-in shower with modern tile marble tile effect walling. There is a coordinating wash hand basin and a low flush wc inset to fitted bathroom furniture, a contemporary style towel rail/radiator, ceiling light with matching waterproof ceiling.

FIRST FLOOR LANDING
This is a long landing which has a door to the far end giving access to bedroom 1. There is a also a fitted ladder which gives access into a boarded storage loft which also has a velux window as well.

BEDROOM 1 4.34m x 3.10m (14'3" x 10'2")
This is a large double bedroom, it has a broad pvc double glazed window, a central heating radiator, coving and a range of fitted bedroom furniture.

BEDROOM 2 3.58m x 2.74m (11'9" x 9'0")
A good sized second double bedroom, it has a pvc double glazed window to the rear, a central heating radiator, coving and ceiling light.

BEDROOM 3 2.95m x 2.29m (9'8" x 7'6")
This has a pvc double glazed window to the rear, a central heating radiator and a wall light.

OUTSIDE
To the front of the property there is a small forecourt garden with decorative stones designed for easier and lower maintenance.

REAR GARDEN
This is nicely enclosed courtyard which enjoys afternoon and evening sun, and a pedestrian gate onto a wide rear lane.

AGENTS NOTES:
TENURE - FREEHOLD.

SERVICES - All mains services are connected.

DOUBLE GLAZING - PVC double glazing, where stated. Age of units TBC.

HEATING - Gas radiator central heating system via a combination type boiler. Age of boiler TBC

COUNCIL TAX - Band A

BROADBAND - Ultrafast broadband is available with download speeds of up to 1800 mbps and upload speeds of up to 220 mbps.

MOBILE COVERAGE - Coverage is available with EE, Three, 02 and Vodafone.

VIEWING - By prior telephone appointment with horton knights estate agents.

MEASUREMENTS - Please note all measurements are approximate and for guidance purposes only, with a six inch tolerance. Therefore please do NOT rely upon them for carpet measurements, furniture and the like. Similarly, the floor plan is designed as a visual reference and is NOT a scale drawing.

PROPERTY PARTICULARS - We endeavour to make our property particulars accurate and reliable, however if there is a point that is especially important to you, please contact ourselves prior to exchange of contracts, so that we may further clarify that point. We DO NOT give any warranty to the suitability of any part, including fixtures and fittings of this property, prospective buyers are kindly asked to take specific advice from their professional advisors.

OPENING HOURS - Monday - Friday 9:00 - 5:30 Saturday 9:00 - 3:00 Sunday www.hortonknights.co.uk

INDEPENDENT MORTGAGE ADVICE - With so many mortgage options to choose from, how do you know your getting the best deal? Quite simply...YOU DON'T. Talk to an expert. We offer uncomplicated impartial advice. Call us today: 01302 760322.

FREE VALUATIONS - If you need to sell a house then please take advantage of our FREE VALUATION service, contact our Doncaster Office (01302) 760322 for a prompt and efficient service.

Floor Plans

EPC

Request Further Details

Or arrange a viewing

Recent Blog Posts

Latest news and updates

Best Estate Agents Doncaster 30th September Sales

Best Estate Agents Doncaster

Who are the best estate agents Doncaster There are plenty of estate agents to choose from. Both high street estate agents and…

Read More
Easter Opening Hours 6th April News

Easter Opening Hours

🐰Hoping everyone has an egg-stra special Easter.🐰 We are now closed from Good Friday through to Easter Monday. We will open as…

Read More