Search Properties

Aintree Avenue, Cantley, Doncaster

Doncaster

£185,000 Guide Price

3 x 2 x
Department:
Sales
Reference:
LJ
Type:
Semi-Detached House
Availability:
Sold STC
Receptions:
2
Tenure:
Freehold
Council Tax Band:
A

Summary

***** GUIDE PRICED £185,000 - £195,000 *****

GOOD SIZE 3 BEDROOM BAY FRONTED SEMI-DETACHED PROPERTY / MODERN FITTED KITCHEN WITH APPLIANCES / UTILITY ROOM & GROUND FLOOR WC / 3 GOOD SIZED BEDROOMS / GARDEN OFFICE BUILDING / ENCLOSED REAR GARDEN & GATED PARKING / CLOSE TO AMENITIES / EARLY VIEWING RECOMMENDED //

Details

The house offers spacious and well presented family living in this well regarded area with good access to local schools including McCauleys. It has a gch system via a combination type boiler, Oak coloured PVC double glazing and comprises: Enclosed entrance porch, hallway, lounge with a feature bay window, dining room with double doors onto the rear garden, modern well fitted kitchen with integrated cooking appliances, rear lobby, utility & WC plus an integral store. First floor landing, 3 bedrooms and a lovely white modern bathroom which includes a shower. Outside there are attractive corner gardens which open out to the rear with gated vehicular access to a large block paved driveway. Access to local shops and amenities, including Lakeside leisure and shopping and Doncaster. Early viewing is highly recommended.

ACCOMMODATION
Double opening pvc double glazed doors (medium oak coloured on the outside and white on the inside) lead into the property's entrance porch.

ENTRANCE PORCH
This is finished with a real wood flooring and a pvc double glazed door which leads into the entrance hall.

ENTRANCE HALL
This has a staircase leading to the first floor accommodation, a built-in understairs storage cupboard with light laid on, a double panel central heating radiator, real wood flooring, and a doorway into the lounge.

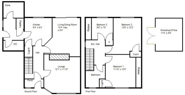
LOUNGE 3.68m x 3.61m (12'1" x 11'10")
Again, a good-sized room with a deep pvc double glazed bay window to the front, a double panel central heating radiator, coving to the ceiling and a central ceiling light.

LIVING/DINING ROOM 4.06m max x 2.84m (13'4" max x 9'4")
This is a good-sized reception room. It has a broad pvc double glazed sliding patio doors which lead out onto the rear garden, contemporary tall radiator, timber effect vinyl floor covering and inset spotlighting to the ceiling.

FITTED KITCHEN 2.84m x 2.82m (9'4" x 9'3")
This is fitted with a range of modern high and low level units finished with a high gloss cabinet door with contemporary style handles, including carousel corner unit, a solid wood beech work surface with matching splashbacks and a Franke ceramic/stainless sink unit with a mixer tap over. Integrated five ring gas and glass hob including a Wok burner with contemporary style extractor hood, integrated oven, room for a tall fridge freezer, tall contemporary style radiator, real wood flooring and a door to the pantry with shelving and light laid on. An exterior type door gives access into the rear lobby.

REAR LOBBY
This has a central heating radiator, tiled floor covering, a pvc double glazed exterior door and side screen which gives access into the rear garden, a central heating radiator, ceiling light, doors to a ground floor wc and utility room. To the far end there is a large store.

STORE
Has a pvc double glazed window, central heating radiator, ceiling light. It also houses a gas fired combination type boiler which supplies the domestic water and central heating systems.

WC/ UTILITY ROOM
This has a low flush wc, wash basin set on to a vanity top, plumbing for an automatic washing machine and room for a tumble dryer. There is a pvc double glazed window, ceiling light and a tiled floor covering.

FIRST FLOOR LANDING
There is a pvc double glazed window to the side, an access point into the loft space and doors to the bedrooms and bathroom.

BEDROOM 1 3.61m x 3.05m (11'10" x 10'0")
A large double bedroom having a broad pvc double glazed window to the front, a range of fitted wardrobes with sliding doors spanning the length of one wall concealing hanging rail and storage, a further built-in cupboard, central ceiling light and a central heating radiator.

BEDROOM 2 3.81m x 3.71m (12'6" x 12'2")
Again, a good sized double room, it has a pvc double glazed window with an outlook over the properties rear garden, central heating radiator, a central ceiling light and built-in cupboard.

BEDROOM 3 2.90m max x 2.29m max (9'6" max x 7'6" max)
This is a large third bedroom as evidenced by the room measurements. There is a pvc double glazed window to the rear, central heating radiator, range of fitted wardrobes spanning the length of one wall concealing hanging rail and storage, further storage cupboard and a central ceiling light.

BATHROOM
This is fitted with a white suite that comprises of a panelled bath, a pedestal wash hand basin and a low flush wc. There is tiling to the bathing areas and splashbacks, mixer shower on the bath including a rainfall style shower head, pvc double glazed window, contemporary style radiator and a ceiling light.

OUTSIDE
The property stands on an attractive corner position, the front is approached by a pedestrian gate on to a blocked paved pathway with lawn either side with hedging and fencing. This continues along the side of the property with a separate gated access which gives access into the rear garden.

REAR GARDEN
The rear garden is enclosed with hedging and fencing to the perimeters, there is a lawn and further sitting areas with decorative stones. The rear garden can also be accessed off Irwell Gardens which leads into a car parking area where there is a separate electric gate giving access to a large car standing area, therefore making it perfect for anyone with motorhomes, caravans and/or similar.

TIMBER FRAMED HOME OFFICE 3.48m x 2.90m (11'5" x 9'6")
A timber framed building, insulated and lined with power and light laid on currently being used as a workshop/office.

AGENTS NOTES:
TENURE - Freehold

SERVICES - All mains services are connected.

DOUBLE GLAZING - PVC double glazing, where stated. Age of units various.

HEATING - The property has a gas radiator central heating system central heating system fitted via a combination type boiler. Age of boiler 3/12/2021.

COUNCIL TAX - Band A

BROADBAND - Ultrafast broadband is available with download speeds of up to 1600 mbps and upload speeds of up to 115 mbps.

MOBILE COVERAGE - Coverage is available with EE, Three, 02 and Vodafone.

VIEWING - By prior telephone appointment with horton knights estate agents.

MEASUREMENTS - Please note all measurements are approximate and for guidance purposes only, with a six inch tolerance. Therefore please do NOT rely upon them for carpet measurements, furniture and the like. Similarly, the floor plan is designed as a visual reference and is NOT a scale drawing.

PROPERTY PARTICULARS - We endeavour to make our property particulars accurate and reliable, however if there is a point that is especially important to you, please contact ourselves prior to exchange of contracts, so that we may further clarify that point. We DO NOT give any warranty to the suitability of any part, including fixtures and fittings of this property, prospective buyers are kindly asked to take specific advice from their professional advisors.

OPENING HOURS - Monday - Friday 9:00 - 5:30 Saturday 9:00 - 3:00 Sunday www.hortonknights.co.uk

INDEPENDENT MORTGAGE ADVICE - With so many mortgage options to choose from, how do you know your getting the best deal? Quite simply...YOU DON'T. Talk to an expert. We offer uncomplicated impartial advice. Call us today: 01302 760322.

FREE VALUATIONS - If you need to sell a house then please take advantage of our FREE VALUATION service, contact our Doncaster Office (01302) 760322 for a prompt and efficient service.

Floor Plans

EPC

Request Further Details

Or arrange a viewing

Recent Blog Posts

Latest news and updates

Best Estate Agents Doncaster 30th September Sales

Best Estate Agents Doncaster

Who are the best estate agents Doncaster There are plenty of estate agents to choose from. Both high street estate agents and…

Read More
Easter Opening Hours 6th April News

Easter Opening Hours

🐰Hoping everyone has an egg-stra special Easter.🐰 We are now closed from Good Friday through to Easter Monday. We will open as…

Read More