Search Properties

Albany Road, Balby, Doncaster

Doncaster

£125,000 Guide Price

3 x 1 x
Department:
Sales
Reference:
LJ
Type:
Mid Terrace
Availability:
For Sale
Receptions:
2
Tenure:
Freehold
Council Tax Band:
A

Summary

**** GUIDE PRICE £125,000 - £135,000 ****

IMMACULATE THREE BEDROOM BAY FRONTED TERRACED HOUSE / IMMACULATE CONDITION THROUGHOUT / FULLY RENOVATED IN LAST 4 YEARS / CLOSE TO THE CITY CENTRE / THREE GOOD SIZED BEDROOMS / BEAUTIFUL MODERN KITCHEN / CONTEMPORARY SHOWER ROOM / PRETTY REAR COURTYARD GARDEN / STREET PARKING //

Details

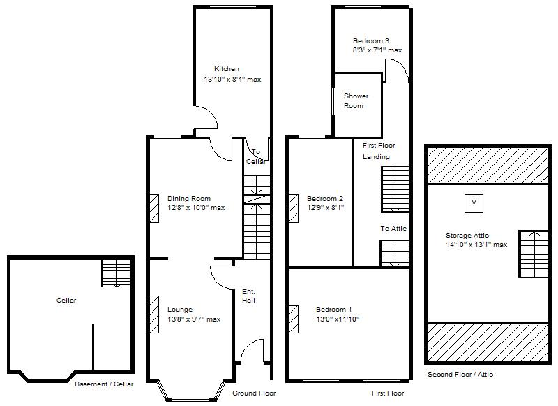
An early internal inspection is highly recommended to fully appreciate this property, it offers immaculately maintained accommodation with a surprising amount of living space. It has a gas radiator central heating system via modern combination type boiler, PVC double glazing and briefly comprises: Entrance portico into a long entrance hall with stairs to first floor, two separate reception rooms, a beautiful modern fitted kitchen with integrated cooking appliances, first floor landing, three good sized bedrooms and a contemporary shower room. There is a fully boarded storage attic with and additional cellar storage. Pretty courtyard garden and unrestricted street parking and is well placed with access to local amenities on Balby Road plus the city centre and therefore early viewing is recommended.

ACCOMMODATION
A brick portico gives shelter to a composite type double glazed door with fanlight over including house number, and leads into;

ENTRANCE HALL
A long hall with a central heating radiator, a staircase to the first floor accommodation, high ceilings, ornate corbels, coat rail and central ceiling light. A door from here continues into the front facing reception room.

LOUNGE 4.17m max x 2.92m max (13'8" max x 9'7" max)
This has a broad PVC double glazed bay window to the front, a feature fireplace with period style inset, double panelled central heating radiator, ornate cornice into the ceiling and a central ceiling light. This opens directly into the dining room.

DINING ROOM 3.86m max x 3.05m max (12'8" max x 10'0" max)
This has a PVC double glazed window to the rear, a central heating radiator, wall mounted timber over mantel, ornate cornicing to the ceiling, central ceiling light and a part glazed door which leads into the kitchen.

KITCHEN 4.83m x 2.54m (15'10" x 8'4")
This is all beautifully fitted with a range of modern high and low level units finished with a deep blue cabinet door, a contrasting oak coloured work surface. There is a four ring gas and glass hob, integrated double oven, plumbing for automatic washing machine, tumble drier and room for a tall fridge/freezer. One and half bowl composite type sink with mixer tap, a PVC double glazed window with an outlook into the property's rear garden, tiled flooring, inset spotlighting to the ceiling, double panelled central heating radiator and a composite type double glazed door which gives access into the rear garden. A further door leads down into the cellar accommodation.

CELLAR
Steps lead down to a cellar this divides and creates two different areas, there is a cold shelf, light, electric and gas meters.

FIRST FLOOR LANDING
This has a spindle banister rail, an access via an alternate tread staircase which leads up into a boarded and lined storage attic.

STORAGE ATTIC
This has a double glazed Velux window and light laid on.

BEDROOM 1 3.96m max x 3.61m max (13'0" max x 11'10" max)
A beautiful large double bedroom, it has a range of fitted bedroom furniture, two PVC double glazed windows to the front, central ceiling light and a double panelled central heating radiator.

BEDRO0M 2 3.89m max x 2.46m max (12'9" max x 8'1" max)
A good sized second double bedroom it has a PVC double glazed window to the rear, a central heating radiator and central ceiling light.

BEDROOM 3 2.51m max x 2.16m (8'3" max x 7'1" )
A comfortable single sized bedroom, it has a PVC double glazed window, a central heating radiator, central ceiling light and a corner cupboard which houses a gas fired combination type boiler which supplies the domestic water and central heating systems.

SHOWER ROOM
A contemporary shower room all beautifully finished with a modern theme which includes a walk-in style shower enclosure with a glazed shower screen, mains plumbed thermostatic shower including rainfall shower head, wash basin and low flush W/C inset to bathroom furniture. A PVC double glazed window, extractor fan, contemporary style towel rail/radiator and water proof style ceiling within inset spotlighting and feature display niches.

OUTSIDE
To the front of the property there is unrestricted on street car parking.

REAR GARDEN
To the rear there is a beautiful well maintained court yard style garden, this has walling fencing to the perimeters. It has all been paved and there is an artificial lawn and seating areas and a pedestrian gate on to the rear lane.

AGENTS NOTES:
TENURE - FREEHOLD.

SERVICES - All mains services are connected.

DOUBLE GLAZING - PVC double glazing, where stated. Age of units TBC.

HEATING - Gas radiator central heating. Age of Boiler; 5 Years, with full annual service history.

COUNCIL TAX - Band A

BROADBAND - Ultrafast broadband is available with download speeds of up to 1,000 mbps and upload speeds of up to 1,000 mbps.

MOBILE COVERAGE - Coverage is available with EE, Three, 02 and Vodafone.

VIEWING - By prior telephone appointment with horton knights estate agents.

MEASUREMENTS - Please note all measurements are approximate and for guidance purposes only, with a six inch tolerance. Therefore please do NOT rely upon them for carpet measurements, furniture and the like. Similarly, the floor plan is designed as a visual reference and is NOT a scale drawing.

PROPERTY PARTICULARS - We endeavour to make our property particulars accurate and reliable, however if there is a point that is especially important to you, please contact ourselves prior to exchange of contracts, so that we may further clarify that point. We DO NOT give any warranty to the suitability of any part, including fixtures and fittings of this property, prospective buyers are kindly asked to take specific advice from their professional advisors.

OPENING HOURS - Monday - Friday 9:00 - 5:30 Saturday 9:00 - 3:00 Sunday www.hortonknights.co.uk

INDEPENDENT MORTGAGE ADVICE - With so many mortgage options to choose from, how do you know your getting the best deal? Quite simply...YOU DON'T. Talk to an expert. We offer uncomplicated impartial advice. Call us today: 01302 760322.

FREE VALUATIONS - If you need to sell a house then please take advantage of our FREE VALUATION service, contact our Doncaster Office (01302) 760322 for a prompt and efficient service.

Floor Plans

EPC

Request Further Details

Or arrange a viewing

Recent Blog Posts

Latest news and updates

Best Estate Agents Doncaster 30th September Sales

Best Estate Agents Doncaster

Who are the best estate agents Doncaster There are plenty of estate agents to choose from. Both high street estate agents and…

Read More
Easter Opening Hours 6th April News

Easter Opening Hours

🐰Hoping everyone has an egg-stra special Easter.🐰 We are now closed from Good Friday through to Easter Monday. We will open as…

Read More