Search Properties

Albany Road, Doncaster

Doncaster

£75,000 Offers Over

3 x 1 x 1 x
Department:
Sales
Reference:
LK
Postcode:
DN4 0QN
Type:
Mid Terrace
Availability:
Sold STC
Receptions:
1
Tenure:
Freehold
Council Tax Band:
A

Summary

3 BEDROOM BAY FRONTED TERRACE / IN NEED OF A REFURB / SPACIOUS ACCOMMODATION OVER 2 FLOORS / GCH / PVC DG / ON STREET PARKING / CLOSE TO CITY CENTRE / NO CHAIN VIEWING ESSENTIAL //

Details

A superb project for someone, yes it needs work, but has been priced accordingly. It's a typical large 3 bedroom terraced house with tall ceilings, and lots of potential. It has a gas central heating system, PVC double glazing and briefly comprises: Long entrance hall with stairs to the first floor, lounge and a dining/ living room, good sized kitchen ( with access to a double cellar), a utility room & pantry store off. First floor landing, 3 bedrooms and a bathroom. Outside there is a rear yard (needs cutting back) and a garage. Very popular location for landlords, speculators and investors or young families. No upward chain priced to sell therefore early viewing is recommended.

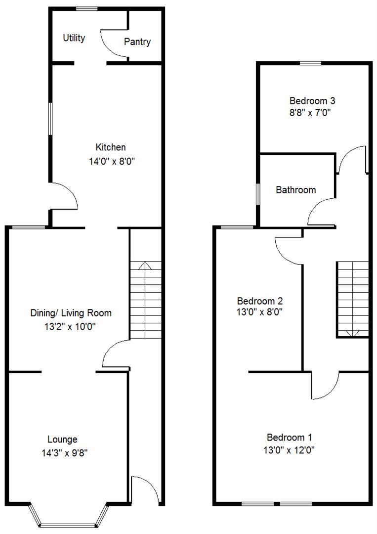
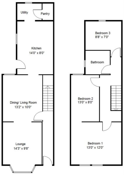
ACCOMMODATION
There is a pvc double glazed entrance door which leads into the property's entrance hall.

ENTRANCE HALL
This has stairs to the first floor accommodation, central heating radiator, ceiling light and a door leads into an open plan lounge and dining room.

LOUNGE 4.34m x 2.95m (14'3" x 9'8")
The lounge is situated towards the front, there is a broad pvc double glazed bay window to the front, central heating radiator, and an ornamental fire place.

DINING ROOM / LIVING ROOM 4.01m x 3.05m (13'2" x 10'0")
This has a PVC double glazed window to the rear, period style fireplace, central heating radiator, coving, ceiling light, and a door to the kitchen.

KITCHEN 4.27m x 2.44m (14'0" x 8'0")
This has a range of based and walled units, there is a PVC double glazed window to the side, single drain stainless steel sink unit, four ring gas hob, integrated oven, timber casement door, ceiling light, tiled floor, central heating radiator and door to the cellar. A second doorway continues to a utility room.

UTILITY ROOM
This has two PVC double glazed windows, central heating boiler which supplies domestic hot water and central heating systems, single drainer stainless steel sink unit, plumbing for washing machine and a pantry style store cupboard off.

FIRST FLOOR LANDING
This has a spindle banister rail, and access point into the loft space with doors to the bedrooms and bathroom.

BEDROOM 1 3.96m x 3.66m (13'0" x 12'0")
This has two pvc double glazed windows to the front, central heating radiator and a ceiling light.

BEDROOM 2 3.96m x 2.44m (13'0" x 8'0")
This has an interconnecting doorway from bedroom 1. There is a PVC double glazed window central heating radiator and a ceiling light.

BEDROOM 3 3.96m x 2.44m (13'0" x 8'0")
This has a PVC double glazed window to the rear, central heating radiator, and a ceiling light.

HOUSE BATHROOM
This has a suite that comprises of an original cast panel bath, wash hand basin, low flush W/C, PVC double glazed window and a ceiling light.

REAR GARDEN
Outside to the rear of the property there is a rear courtyard style garden, (overgrown and will need cutting back) it has a brick built garage. There are brick walls to the perimeters and a pedestrian gate onto a wide rear lane.

AGENTS NOTES:
FIXTURES AND FITTINGS - The property is sold as seen, any remaining fixtures and fittings will be left, they have not been tested and therefore their working condition cannot be guaranteed.

TENURE - FREEHOLD.

SERVICES - All mains services are connected.

DOUBLE GLAZING - PVC double glazing, where stated. Age of units various.

HEATING - Gas radiator central heating. Age of boiler unknown.

COUNCIL TAX - Band A.

BROADBAND - Ultrafast broadband is available with download speeds of up to 1000 mbps and upload speeds of up to 1000 mbps.

MOBILE COVERAGE - Coverage is available with EE, Three, 02 and Vodafone.

VIEWING - By prior telephone appointment with horton knights estate agents.

MEASUREMENTS - Please note all measurements are approximate and for guidance purposes only, with a six inch tolerance. Therefore please do NOT rely upon them for carpet measurements, furniture and the like. Similarly, the floor plan is designed as a visual reference and is NOT a scale drawing.

PROPERTY PARTICULARS - We endeavour to make our property particulars accurate and reliable, however if there is a point that is especially important to you, please contact ourselves prior to exchange of contracts, so that we may further clarify that point. We DO NOT give any warranty to the suitability of any part, including fixtures and fittings of this property, prospective buyers are kindly asked to take specific advice from their professional advisors.

OPENING HOURS - Monday - Friday 9:00 - 5:30 Saturday 9:00 - 3:00 Sunday www.hortonknights.co.uk

INDEPENDENT MORTGAGE ADVICE - With so many mortgage options to choose from, how do you know your getting the best deal? Quite simply...YOU DON'T. Talk to an expert. We offer uncomplicated impartial advice. Call us today: 01302 760322.

FREE VALUATIONS - If you need to sell a house then please take advantage of our FREE VALUATION service, contact our Doncaster Office (01302) 760322 for a prompt and efficient service.

Floor Plans

EPC

Request Further Details

Or arrange a viewing

Recent Blog Posts

Latest news and updates

Best Estate Agents Doncaster 30th September Sales

Best Estate Agents Doncaster

Who are the best estate agents Doncaster There are plenty of estate agents to choose from. Both high street estate…

Read More
Easter Opening Hours 6th April News

Easter Opening Hours

🐰Hoping everyone has an egg-stra special Easter.🐰 We are now closed from Good Friday through to Easter Monday. We will…

Read More