Search Properties

Aviemore Road, Doncaster

Doncaster

£260,000 Guide Price

4 x 1 x
Department:
Sales
Reference:
LK
Type:
Detached House
Availability:
For Sale
Receptions:
1
Tenure:
Freehold
Council Tax Band:
C

Summary

**** GUIDE PRICE £260,000 - £270,000 ****

JUST LISTED !!! IMMACULATE 4 BEDROOM DETACHED HOUSE / BEAUTIFUL SOUTHERLY FACING REAR GARDEN / OPEN PLAN LIVING ACCOMMODATION / CONTEMPORARY GREY KITCHEN WITH INTEGRATED APPLIANCES / INTEGRAL GARAGE / LOVELY QUIET CUL DE SAC //

Details

Located within this popular quiet cul-de-sac an immaculate and meticulously maintained 4 Bedroom detached house. The property has a gas central heating via a combi type boiler (5 yrs old), pvc double glazing, modern composite doors approx (3 years old). The accommodation comprises: Entrance hall, smart ground floor wc, spacious open plan lounge and dining area with door to rear garden, modern grey kitchen with integrated appliances to include, oven, hob, extractor, dishwasher and fridge freezer. First floor landing, 4 bedrooms and a modern white bathroom. Equally well maintained gardens with ample off road parking for 2 cars, and a gorgeous sunny southerly facing rear garden. Well placed with access to local amenities including shops, schools and access to the A1 and motorway networks. PRICED TO SELL. EARLY VIEWING ESSENTIAL.

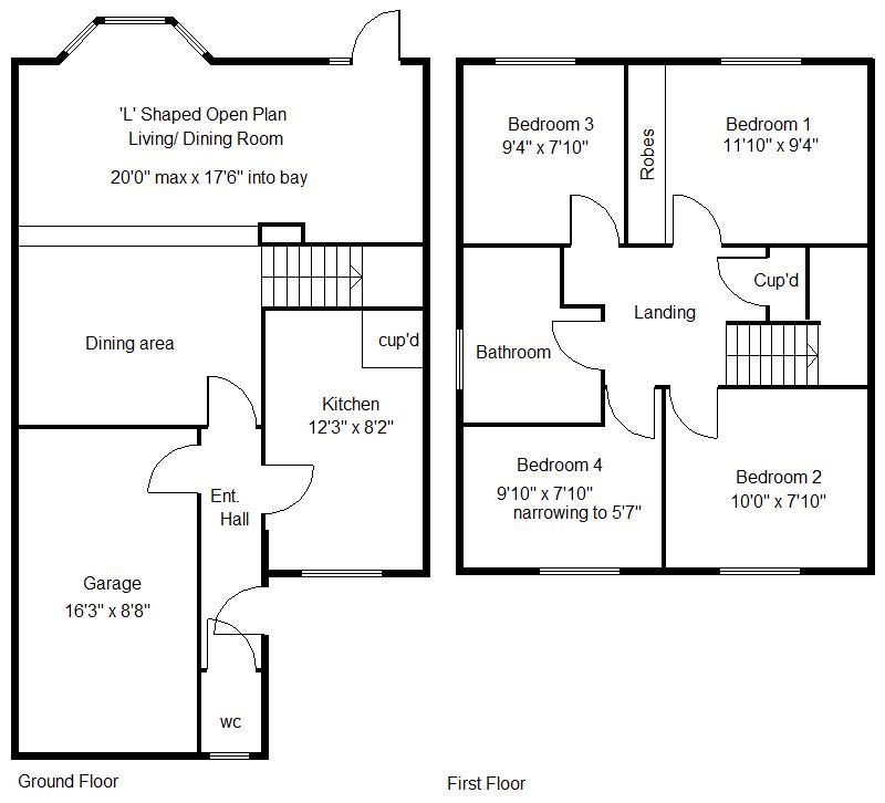
ACCOMMODATION
A grey composite coloured double glazed entrance door leads into the property’s entrance hall.

ENTRANCE HALL
This is all smartly finished with a tiled floor covering, a central heating radiator, and an oak interior door which gives access into a smart ground floor wc . To the far end of the hallway a door gives access into a large open plan L-shaped lounge and dining room.

GROUND FLOOR WC
Finished with a contemporary white suite which comprises of a low flush wc, floating wash hand basin, a continuation of the tiled flooring, coordinated tiled walls, contemporary style towel rail/radiator, pvc double glazed window and a central ceiling light

FITTED KITCHEN 3.73m x 2.49m (12'3" x 8'2")
This is fitted with a range of modern high and low level units, finished with a light grey cabinet door and a contrasting oak coloured work surface, a 4 ring electric hob, extractor hood and an integrated double oven, there is also an integrated dishwasher and integrated fridge freezer, plus a porcelain type sink with a mixer tap. A contemporary style central heating radiator, ceramic tiled flooring and feature wall tiles. It has a built-in understairs storage cupboard and inset spot lighting to the ceiling.

LARGE OPEN PLAN LOUNGE & DINING ROOM 6.10m max x 5.33m into bay (20'0" max x 17'6" into
Within the lounge area there is a feature pvc double glazed bay window to the rear and further pvc double glazed door which gives access into the rear garden, a feature fireplace, coving to the ceiling, 2 ceiling lights and 2 central heating radiators.

Within the dining area there is a central heating radiator, coving and a central ceiling light. From here a staircase leads to the first floor accommodation.

FIRST FLOOR LANDING
There is a deep built-in storage cupboard, an access point into the loft space, central heating radiator and doors to the bedrooms and bathroom.

BEDROOM 1 3.61m x 2.84m (11'10" x 9'4")
A good sized double bedroom it has a pvc double glazed window to the rear, central heating radiator, painted boarded floors, ceiling light and a walk-in style wardrobe with hanging and shelves.

BEDROOM 2 3.05m x 2.39m (10'0 x 7'10")
A good size second double bedroom, it has a pvc double glazed window to the rear, a central heating radiator and a ceiling light.

BEDROOM 3 2.84m x 2.39m (9'4" x 7'10")
This has a pvc double glazed window to the front, a central heating radiator and a ceiling light.

BEDROOM 4 3.00m x 2.39m narrowing to 1.70m (9'10" x 7'10" na
Again, a comfortable single bedroom it has a pvc double glazed window to the front, central heating radiator and a central ceiling light.

BATHROOM
This is all smartly finished, it has a shower style bath with glazed shower screen, wash basin and a low flush wc. There is tiling to the 4 walls with decorative dado tile, coordinating floor tiles, contemporary style towel rail/radiator, pvc double glazed window and a ceiling light.

GARAGE 4.95m x 2.64m (16'3" x 8'8")
From the hall a door gives access into an integral garage which has a wall mounted gas fired combination type boiler, which supplies the domestic water and central heating systems. There is further plumbing for automatic washing machine, room for tumble driers and fridge/freezers etc, with light and shelving laid on.

OUTSIDE
The property stands on an attractive plot, the front is all well planned with ornamental lawn including a decorative flower bed with space for ornamental pots etc. A double width driveway provides standing for 2 cars side-by-side and in turn leads to an integral garage which has power and light laid on and continues into the utility part of the garage.

REAR GARDEN
This enjoys a lovely Southerly sunny aspect, it is all enclosed with fencing to the perimeters. There is a paved patio which extends across the rear elevation and leads onto a lawn with shaped flower beds and borders stocked with a variety of shrubs and plants.

AGENTS NOTES:
TENURE - FREEHOLD

SERVICES - All mains services are connected.

DOUBLE GLAZING - PVC double glazing, where stated. Age of units 2023

HEATING - Gas radiator central heating. Age of boiler 2021

COUNCIL TAX - Band C

BROADBAND - Fibre broadband is available with download speeds of up to 76 mbps and upload speeds of up to 15 mbps.

MOBILE COVERAGE - Coverage is available with EE, Three, 02 and Vodafone.

VIEWING - By prior telephone appointment with horton knights estate agents.

MEASUREMENTS - Please note all measurements are approximate and for guidance purposes only, with a six inch tolerance. Therefore please do NOT rely upon them for carpet measurements, furniture and the like. Similarly, the floor plan is designed as a visual reference and is NOT a scale drawing.

PROPERTY PARTICULARS - We endeavour to make our property particulars accurate and reliable, however if there is a point that is especially important to you, please contact ourselves prior to exchange of contracts, so that we may further clarify that point. We DO NOT give any warranty to the suitability of any part, including fixtures and fittings of this property, prospective buyers are kindly asked to take specific advice from their professional advisors.

OPENING HOURS - Monday - Friday 9:00 - 5:30 Saturday 9:00 - 3:00 Sunday www.hortonknights.co.uk

INDEPENDENT MORTGAGE ADVICE - With so many mortgage options to choose from, how do you know your getting the best deal? Quite simply...YOU DON'T. Talk to an expert. We offer uncomplicated impartial advice. Call us today: 01302 760322.

FREE VALUATIONS - If you need to sell a house then please take advantage of our FREE VALUATION service, contact our Doncaster Office (01302) 760322 for a prompt and efficient service.

Floor Plans

Request Further Details

Or arrange a viewing

Recent Blog Posts

Latest news and updates

Best Estate Agents Doncaster 30th September Sales

Best Estate Agents Doncaster

Who are the best estate agents Doncaster There are plenty of estate agents to choose from. Both high street estate agents and…

Read More
Easter Opening Hours 6th April News

Easter Opening Hours

🐰Hoping everyone has an egg-stra special Easter.🐰 We are now closed from Good Friday through to Easter Monday. We will open as…

Read More