Search Properties

Bawtry Road, Bessacarr, Doncaster

Doncaster

£600,000 Guide Price

5 x 3 x
Department:
Sales
Reference:
FH/NM
Type:
Detached House
Availability:
For Sale
Receptions:
2
Tenure:
Freehold
Council Tax Band:
G

Summary

****GUIDE PRICE £600,000 - £650,000****
STUNNING CONTEMPORARY STYLED 5 BEDROOM DETACHED / PRIVATE ELECTRIC GATED COMPLEX OF 3 HOUSES/ SPACIOUS DESIGN OVER 3 FLOORS WITH STUNNING GALLERIED HALL & LANDINGS / GORGEOUS OPEN PLAN ISLAND KITCHEN INTO OPEN ORANGERY AREA / ENCLOSED GARDENS, 5 CAR PARKING SPACES / VIEWING ESSENTIAL //

Details

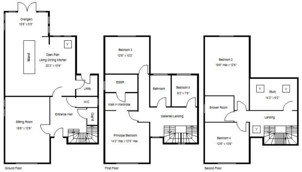
An individually designed electric gated complex of only 3 houses, this was the largest of all 3, constructed by the builder for himself. Architecturally the build looks very contemporary with a modern white rendered finish, stone detailing around black framed feature double glazed windows, very much a stand out design. A full height 3 storey hall, with galleried landings creates an imposing entrance, attractive front facing sitting room, a large open plan living/ dining/ island kitchen with the extended breakfast island set into a deep 'orangery style' area, separate utility room and a ground floor wc. On the first floor there are 3 large bedrooms, the principal bedroom has a dressing area and and en-suite shower room, plus a beautiful house bathroom, whilst on the top floor there are two further large doubles, a shower room plus a home office. Outside are attractive gardens, ample parking for 5 cars plus a carport to the rear for sheltered parking if preferred.

ACCOMMODATION
A substantial double glazed oak door leads into the property's entrance hall.

ENTRANCE HALL
A beautiful and very stylish full height 3 storey entrance hall with a staircase leading to the first and second floor accommodation. There is ornate cornicing, inset spotlighting to the ceiling, tiled flooring, a deep understairs storage cupboard and a door to the ground floor cloaks W/C.

GROUND FLOOR CLOAKS W/C
Smartly finished with a modern 2 piece white suite comprising of a low flush W/C, a bracketed wash hand basin, a central heating radiator, a double glazed window, an extractor fan and a central ceiling pendant light.

SITTING ROOM 5.64m x 3.81m (18'6" x 12'6")
A beautiful front facing reception room, it has decorative stone framed windows to the front and side elevations, ornate cornicing, 2 central ceiling pendant lights and 2 central heating radiators.

LARGE OPEN PLAN LIVING DINING KITCHEN 6.17m x 4.80m (20'3" x 15'9")
This is a large open plan ' L shaped' contemporary styled living space with direct access into the rear garden. The kitchen is comprehensively fitted with a range of high and low level units finished in a 'cherry wood' cabinet door, and is probably better demonstrated by the floor plan and photographs. It certainly has a wow factor, having a large breakfast island which seats six. Integrated appliances include a four ring ceramic hob with a chimney style extractor hood above, twin matching ovens side by side plus a combination type microwave and a warming drawers. An integrated fridge freezer and dishwasher. The breakfast island sits into a full glazed orangery area which incorporates double doors which lead into the rear garden. There are 2 central heating radiators, a double glazed velux window, inset spotlighting to the ceiling, smoke and heat alarms, a feature recess with lighting inset, a matching contemporary style dresser and a door leading into a separate utility room.

UTILITY ROOM
This is fitted with a range of base units, there is a single drainer stainless steel sink unit with a mixer tap, a central heating radiator, plumbing for an automatic washing machine and a wall mounted gas fired combination type boiler which supplies domestic hot water and central heating systems. There is a barn style PVC double double glazed door, a central heating radiator and a continuation of the tiled flooring.

FIRST FLOOR GALLERIED LANDING
This has a double glazed window to the front, spotlighting inset to the ceiling, a staircase continuing to the upper floor and doors to the bedrooms and bathroom.

BEDROOM 1 4.32m x 3.78m max (14'2" x 12'5" max)
A large principal bedroom suite, this has double glazed windows to the front, fitted wardrobes concealing hanging rail and storage plus room for a flat screen television, a central heating radiator and a central ceiling pendant light. This opens to a walk in wardrobe area.

WALK IN WARDROBE
With hanging rail, storage, inset spotlighting and continues into the en suite shower room.

EN SUITE SHOWER ROOM
All beautifully finished with modern tiling there is a walk in shower enclosure, a mains plumbed thermostatic shower with a rainfall style shower head, a floating wash hand basin, a low flush W/C, a contemporary style towel rail/ radiator, a double glazed window, an extractor fan and inset spotlighting to the ceiling.

BEDROOM 3 3.81m x 3.10m (12'6" x 10'2")
This has a double glazed window to the rear with decorative shuttering, a central heating radiator and a central ceiling light.

BEDROOM 5 2.82m x 2.29m (9'3" x 7'6")
A comfortable bedroom, it has a double glazed window with an outlook to the rear, a double panel central heating radiator, inset spotlighting to the ceiling and a modern laminate floor covering.

CONTEMPORARY BATHROOM
All beautifully finished with a contemporary style free standing bath with a mixer shower and hand rinse, there is a floating wash hand basin, a low flush W/C, feature tiling including coordinating floor tiles, a double glazed window and inset spotlighting to the ceiling.

SECOND FLOOR LANDING
With a double glazed velux window and doors leading off to the remaining accommodation.

BEDROOM 2 5.94mmax x 3.81m (19'6"max x 12'6")
This has a double glazed velux window with an outlook over the property's rear garden, a double panel central heating radiator, a central ceiling pendant light and access into the loft space.

BEDROOM 4 3.81m x 3.20m (12'6" x 10'6")
A double bedroom with a double glazed window to the front, a central heating radiator and a central ceiling pendant light.

HOME OFFICE 4.32m x 2.79m (14'2" x 9'2")
A large office area, this has 2 double glazed velux windows to the rear, a fitted desktop and work space, a central heating radiator and inset spotlighting to the ceiling.

SHOWER ROOM
All beautifully finished with a modern suite comprising of a shower enclosure with a thermostatic shower, a wash hand basin, a low flush W/C, vinyl flooring, inset spotlighting to the ceiling, a double glazed window and an extractor fan.

OUTSIDE
The property is approached via an electric security gate with cctv monitoring, which gives access to the the front of the property where there is parking for 5 cars. The driveway continues around to the side with access to a glass covered carport. The front garden is enclosed with a black coated metal fence and an ornamental Laurel hedge which surrounds a lawn. A pedestrian path leads to the front door.

REAR GARDEN
The rear garden has a stone paved patio and sitting area which leads onto a central artificial lawn with raised planters and borders stocked with a variety of shrubs and plants. There is also external lighting and a side gate. There is maintenance free composite style fence providing screening and privacy. To the far end, there is a glass and aluminium car port however this is gated and used for storage at the present time but could easily be reinstated.

AGENTS NOTES:
TENURE - FREEHOLD.

SERVICES - All mains services are connected.

DOUBLE GLAZING - Black coated aluminium framed double glazing. Age of units 2007.

HEATING - Gas radiator central heating, age of boiler unknown.

COUNCIL TAX - Band G.

BROADBAND - Ultrafast broadband is available with download speeds of up to 1139 mbps and upload speeds of up to 1000 mbps.

MOBILE COVERAGE - Coverage is available with EE, Three, 02 and Vodafone.

VIEWING - By prior telephone appointment with horton knights estate agents.

MEASUREMENTS - Please note all measurements are approximate and for guidance purposes only, with a six inch tolerance. Therefore please do NOT rely upon them for carpet measurements, furniture and the like. Similarly, the floor plan is designed as a visual reference and is NOT a scale drawing.

PROPERTY PARTICULARS - We endeavour to make our property particulars accurate and reliable, however if there is a point that is especially important to you, please contact ourselves prior to exchange of contracts, so that we may further clarify that point. We DO NOT give any warranty to the suitability of any part, including fixtures and fittings of this property, prospective buyers are kindly asked to take specific advice from their professional advisors.

OPENING HOURS - Monday - Friday 9:00 - 5:30 Saturday 9:00 - 3:00 Sunday www.hortonknights.co.uk

FREE VALUATIONS - If you need to sell a house then please take advantage of our FREE VALUATION service, contact our Doncaster Office (01302) 760322 for a prompt and efficient service.

Floor Plans

EPC

Request Further Details

Or arrange a viewing

Recent Blog Posts

Latest news and updates

Best Estate Agents Doncaster 30th September Sales

Best Estate Agents Doncaster

Who are the best estate agents Doncaster There are plenty of estate agents to choose from. Both high street estate agents and…

Read More
Easter Opening Hours 6th April News

Easter Opening Hours

🐰Hoping everyone has an egg-stra special Easter.🐰 We are now closed from Good Friday through to Easter Monday. We will open as…

Read More