Search Properties

Beckett Road, Doncaster

Doncaster

£165,000 Offers Over

3 x 1 x 1 x
Department:
Sales
Reference:
LK
Postcode:
DN2 4BA
Type:
Semi-Detached House
Availability:
For Sale
Receptions:
1
Tenure:
Freehold
Council Tax Band:
A

Summary

JUST REDUCED……….AN EXTENDED & VERY WELL PRESENTED 3 BEDROOM SEMI / SPACIOUS LIVING ACCOMMODATION THROUGHOUT / LARGE EXTENSION ACROSS THE REAR / MUCH BIGGER KITCHEN / SECOND SITTING AREA / OFF ROAD PARKING & GARAGE / PRETTY REAR GARDEN / VERY POPULAR RESIDENTIAL AREA //

Details

An internal inspection is recommended to appreciate the extra space offered by this extended 3 bed semi-detached house. It offers attractive ready to move into living with gas central heating via a combination type boiler, PVC double glazing and briefly comprises: Entrance hall with stairs to first floor, spacious extended lounge/ dining/ sitting area, extended kitchen, ground floor W/C, first floor landing, three good sized bedrooms and a modern bathroom with shower. Outside are front and rear gardens, the rear is enclosed with decked patio and sitting area, large detached garage with adjacent workshop. Well placed with access to the city including good amenities, schools, shops etc. Early viewing recommended.

ACCOMMODATION
A composite double glazed entrance door leads into the property's entrance hall.

ENTRANCE HALL
This has a staircase leading to the first floor accommodation, a PVC double glazed window, central heating radiator, coving, ceiling light, vinyl flooring and deep built-in storage cupboard. There is a further deep understairs storage cupboard this houses a wall mounted gas fired combination type boiler and also a GROUND FLOOR W/C with a wash hand basin. A door from the entrance hall leads through to a now extended through lounge, dining and sitting area.

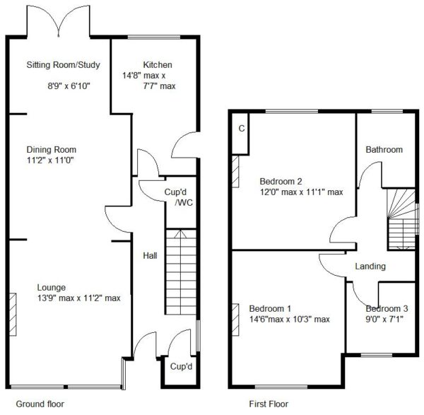
LOUNGE 4.19m max x 3.40m max (13'9" max x 11'2" max)
This is positioned towards the front of the property and has a broad PVC double glazed bay window, a central heating radiator, coving, a central ceiling light, feature fireplace with an electric fire inset and a broad opening continues in to the dining area.

DINING AREA 3.61m x 3.40m (11'10" x 11'2")
This has an ornamental fireplace, central heating radiator, coving and central ceiling light and abroad opening into a sitting area.

SITTING ROOM 2.67m x 2.08m (8'9" x 6'10")
This overlooks the garden courtesy of two PVC double glazed double opening doors, central heating radiator, coving and central ceiling light.

EXTENDED KITCHEN 4.47m max x 2.31m max (14'8" max x 7'7" max)
This also benefits from the extension, it is fitted with a range of high and low level units with a work surface over. There is a single drainer composite style sink with mixer tap, a recess suitable for an electric cooker and space for domestic appliances. There is a PVC double glazed window to the rear, double panelled central heating radiator, tiled flooring and a PVC double glazed exterior door.

FIRST FLOOR LANDING
PVC double glazed window to the side, an access point to the loft space and doors to the bedrooms and bathroom.

BEDROOM 1 FRONT 4.42m max x 3.12m max (14'6" max x 10'3" max)
A good sized double bedroom it has a deep PVC double glazed bay window to the front, a central ceiling light and a central heating radiator.

BEDROOM 2 3.66m max x 3.38m max (12'0" max x 11'1" max)
This has a PVC double glazed window to the rear, built-in cupboards concealing hanging rail and storage, a central heating radiator and a central ceiling light.

BEDROOM 3 2.74m x 2.16m (9'0" x 7'1")
A comfortable sized third bedroom, it has a PVC double glazed window to the front, central heating radiator and central ceiling light.

HOUSE BATHROOM 2.29m x 1.75m (7'6" x 5'9")
All smartly finished with a modern white suite that comprises of a bath with shower over including a rainfall style shower head, a pedestal wash hand basin and low flush W/C. There is a PVC double glazed window, tiling to the four walls, contemporary style towel rail/radiator, vinyl flooring and inset spot lighting to the ceiling.

OUTSIDE
To the front of the property there is a hard landscaped area that has been pebbled and now provides additional off road parking, there is a shared driveway which continues along the side of this and neighbouring property which in turn gives access to a detached garage where there is a metal up and over door, personnel side door and a further attached store and workshop with power and light laid on.

REAR GARDEN
The rear garden has been fenced and provides privacy, is mainly lawned with a deck patio and sitting area extending across the rear elevation.

AGENTS NOTES:
TENURE - FREEHOLD.

SERVICES - All mains services are connected.

DOUBLE GLAZING - PVC double glazing, where stated. Age of units TBC.

HEATING - Gas radiator central heating. Age of boiler TBC.

COUNCIL TAX - Band A

BROADBAND - Ultrafast broadband is available with download speeds of up to 1800 mbps and upload speeds of up to 1000 mbps.

MOBILE COVERAGE - Coverage is available with EE, Three, 02 and Vodafone.

VIEWING - By prior telephone appointment with horton knights estate agents.

MEASUREMENTS - Please note all measurements are approximate and for guidance purposes only, with a six inch tolerance. Therefore please do NOT rely upon them for carpet measurements, furniture and the like. Similarly, the floor plan is designed as a visual reference and is NOT a scale drawing.

PROPERTY PARTICULARS - We endeavour to make our property particulars accurate and reliable, however if there is a point that is especially important to you, please contact ourselves prior to exchange of contracts, so that we may further clarify that point. We DO NOT give any warranty to the suitability of any part, including fixtures and fittings of this property, prospective buyers are kindly asked to take specific advice from their professional advisors.

OPENING HOURS - Monday - Friday 9:00 - 5:30 Saturday 9:00 - 3:00 Sunday www.hortonknights.co.uk

INDEPENDENT MORTGAGE ADVICE - With so many mortgage options to choose from, how do you know your getting the best deal? Quite simply...YOU DON'T. Talk to an expert. We offer uncomplicated impartial advice. Call us today: 01302 760322.

FREE VALUATIONS - If you need to sell a house then please take advantage of our FREE VALUATION service, contact our Doncaster Office (01302) 760322 for a prompt and efficient service.

Floor Plans

EPC

Request Further Details

Or arrange a viewing

Recent Blog Posts

Latest news and updates

Best Estate Agents Doncaster 30th September Sales

Best Estate Agents Doncaster

Who are the best estate agents Doncaster There are plenty of estate agents to choose from. Both high street estate…

Read More
Easter Opening Hours 6th April News

Easter Opening Hours

🐰Hoping everyone has an egg-stra special Easter.🐰 We are now closed from Good Friday through to Easter Monday. We will…

Read More