Search Properties

Bentley Road, Bentley, Doncaster

Doncaster

£109,995 Offers Over

2 x 1 x 2 x
Department:
Sales
Reference:
LK
Postcode:
DN5 9TJ
Type:
Mid Terrace
Availability:
Sold STC
Receptions:
2
Tenure:
Freehold
Council Tax Band:
A

Summary

SURPRISINGLY SPACIOUS 2 DOUBLE BEDROOM TERRACED HOUSE / FIRST FLOOR BATHROOM / ATTRACTIVE KITCHEN / SEPARATE EXTERNAL UTILITY ROOM / GAS CENTRAL HEATING & PVC DG / LONG REAR GARDEN WITH SPACE FOR CAR PARKING / EASY ACCESS TO CITY CENTRE / NO CHAIN//

Details

An attractive and good sized, 2 double bedroom terraced house is located close to the city centre. It has gas central heating, pvc double glazing and briefly comprises: Front facing lounge, separate living/ dining room, fitted kitchen, plus access to an external utility room. First floor landing, 2 double bedrooms and a modern white bathroom. outside there is a forecourt garden and a lovely long rear garden with possible car parking if preferred. Bentley Road offers access to the city centre or Bentley main street for amenities, including shops, schools and access to the staition. PRICED TO SELL. EARLY VIEWING ESSENTIAL.

ACCOMMODATION
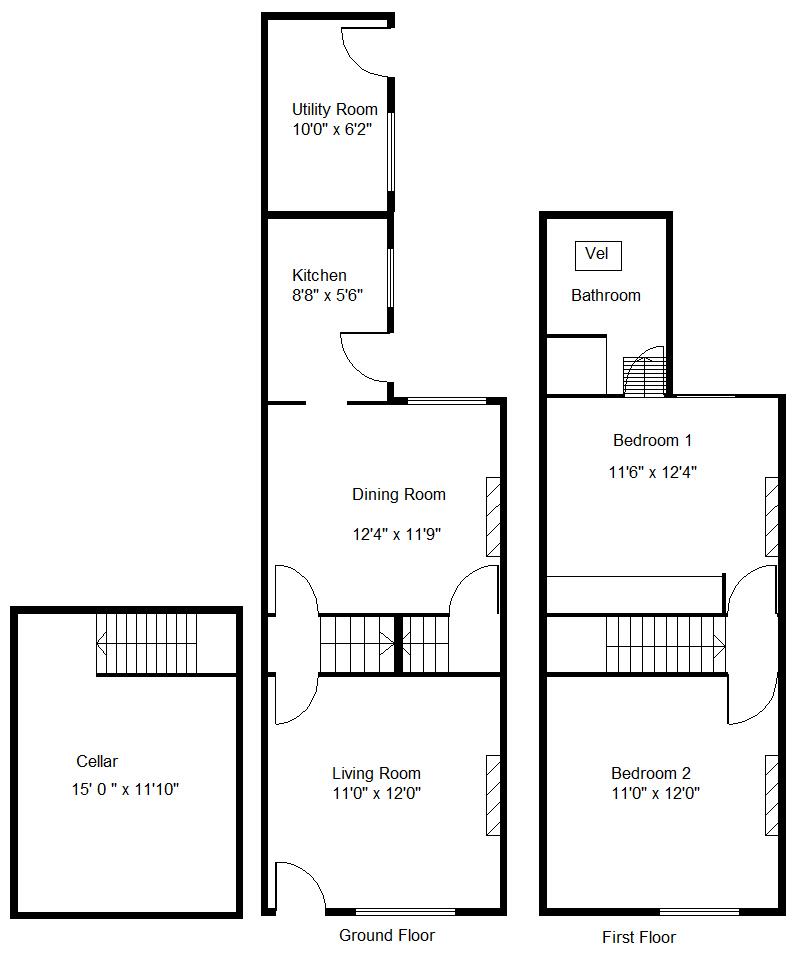
A PVC double glazed entrance door leads into the property’s lounge.

LOUNGE 3.35m x 3.66m (11'0" x 12'0")
This is an attractive front facing reception room, it has a PVC double glazed window to the front, fireplace with an electric fire inset, ornate cornicing, wall frieze, ceiling light and door into the inner lobby.

INNER LOBBY
This has a staircase to the first-floor accommodation, ceiling light and a door into the dining/living room.

DINING/LIVING ROOM 3.76m x 3.58m (12'4" x 11'9")
A rear facing reception room with a PVC double glazed window, central heating radiator, coving to the ceiling and a pendant light fitting. From here a door gives access to the cellar top and steps down into the cellar., perfect for additional storage.

FITTED KITCHEN 2.59m x 1.68m (8'6" x 5'6")
All Smartly finished with a range of modern high and low level units finished with a work surface over. There is a recess for a gas cooker with gas laid on, modern tiled splash back, single drainer single bowl stainless steel sink unit with a mixer tap. A wall mounted gas fired boiler supplies the domestic water and central heating systems. There is space for an under counter fridge, PVC double glazed window, PVC double glazed exterior door, ceiling light and an extractor fan.

UTILITY ROOM
Adjoined to the kitchen but accessed externally this has a range of base and wall units, a single drainer stainless steel sink, plumbing for automatic washing machine, space for a fridge/freezer, tumble drier etc, two timber casement windows and a ceiling light.

FIRST FLOOR LANDING
There is a ceiling light and door to;

BEDROOM 1 3.35m x 3.66m (11'0" x 12'0")
A good-sized double bedroom with PVC double glazed window to the front, a central heating radiator, feature fireplace, built in wardrobe and a second cupboard gives access to a ladder and in-turn leads into the boarded attic. Useful storage space with power and light laid on.

BEDROOM 2 3.51m x 3.76m (11'6" x 12'4")
A second double bedroom it has a PVC double glazed window to the rear, central heating radiator, a range of fitted wardrobes concealing hanging and storage and an ornate fireplace. From here a door leads into the bathroom.

BATHROOM 1.78m x 2.44m (5'10" x 8'0")
This is fitted with a white suite that comprises of a panelled bath with shower mixer, floating wash hand basin and a low flush WC. There is a contemporary style towel rail/radiator, built in cupboard which houses a hot water cylinder with linen storage above, double glazed Velux style window, ceiling light and a vinyl flooring.

OUTSIDE
To the front of the property there is a forecourt garden, this has a wrought iron pedestrian gate which gives access into the garden, several ornamental trees and shrubs.

REAR GARDEN
This is a particularly good size, all enclosed with fencing and hedging to the perimeters, a gate gives access on to a wide rear lane and therefore could provide off-road parking if required. Several neighbouring properties have built garages the same could be done here.

AGENTS NOTES:
TENURE - FREEHOLD.

SERVICES - All mains services are connected.

DOUBLE GLAZING - PVC double glazing, where stated. Age of units various.

HEATING - Gas radiator central heating. Age of boiler TBC.

COUNCIL TAX - Band A

BROADBAND - Ultrafast broadband is available with download speeds of up to 1800 mbps and upload speeds of up to 220 mbps.

MOBILE COVERAGE - Coverage is available with EE, Three, 02 and Vodafone.

VIEWING - By prior telephone appointment with horton knights estate agents.

MEASUREMENTS - Please note all measurements are approximate and for guidance purposes only, with a six inch tolerance. Therefore please do NOT rely upon them for carpet measurements, furniture and the like. Similarly, the floor plan is designed as a visual reference and is NOT a scale drawing.

PROPERTY PARTICULARS - We endeavour to make our property particulars accurate and reliable, however if there is a point that is especially important to you, please contact ourselves prior to exchange of contracts, so that we may further clarify that point. We DO NOT give any warranty to the suitability of any part, including fixtures and fittings of this property, prospective buyers are kindly asked to take specific advice from their professional advisors.

OPENING HOURS - Monday - Friday 9:00 - 5:30 Saturday 9:00 - 3:00 Sunday www.hortonknights.co.uk

INDEPENDENT MORTGAGE ADVICE - With so many mortgage options to choose from, how do you know your getting the best deal? Quite simply...YOU DON'T. Talk to an expert. We offer uncomplicated impartial advice. Call us today: 01302 760322.

FREE VALUATIONS - If you need to sell a house then please take advantage of our FREE VALUATION service, contact our Doncaster Office (01302) 760322 for a prompt and efficient service.

Floor Plans

EPC

Request Further Details

Or arrange a viewing

Recent Blog Posts

Latest news and updates

Best Estate Agents Doncaster 30th September Sales

Best Estate Agents Doncaster

Who are the best estate agents Doncaster There are plenty of estate agents to choose from. Both high street estate…

Read More
Easter Opening Hours 6th April News

Easter Opening Hours

🐰Hoping everyone has an egg-stra special Easter.🐰 We are now closed from Good Friday through to Easter Monday. We will…

Read More