Search Properties

Bracken Way, Harworth, Doncaster

Doncaster

£185,000

3 x 1 x 1 x
Department:
Sales
Reference:
LK/42 Bracken Way
Postcode:
DN11 8SB
Type:
Semi-Detached House
Availability:
For Sale
Receptions:
1
Tenure:
Leasehold
Leasehold Remaining:
980 years
Council Tax Band:
B

Summary

***LEGAL FEE INCENTIVE***
JUST LISTED.......NICELY PROPORTIONED 4 BEDROOM 3 STOREY FAMILY HOME / LOW MAINTENANCE LANDSCAPED REAR GARDEN / ATTACHED GARAGE & PARKING / FITTED DINING KITCHEN / LOUNGE / DOWNSTAIRS WC / 4 BEDROOMS ONE WITH EN-SUITE SHOWER ROOM / FAMILY BATHROOM / GOOD ACCESS TO LOCAL AMENITIES INCLUDING THE A1 / VIEWING HIGHLY RECOMMENDED //

Details

Tucked away at the end of this cul-de-sac in the well served village of Harworth south of Doncaster, is this really nicely proportioned family home which benefits from pvc double glazing and gas fired central heating. Laid out over 3 floors it comprises: Entrance hall, ground floor wc, fitted kitchen, lounge, first floor landing, with 3 bedrooms to the first floor and the family bathroom, a second floor landing with the main bedroom and an en-suite shower room. Outside the property has off-street parking, an attached garage and a landscaped, low maintenance rear garden. The location of the property means good access to amenities all round, including the A1 and local amenities within the village, including schools, bus routes etc. Viewing is highly recommended to appreciate all this property has to offer.

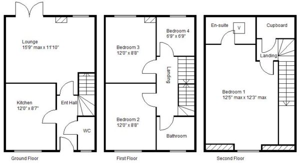
ACCOMMODATION
A double glazed composite style door gives access to the entrance hall.

ENTRANCE HALL
This has a central heating radiator, stairs rising to the first floor, engineered wood floor and doors leading off to the ground floor accommodation.

GROUND FLOOR WC
Fitted with a white low flush wc, a pedestal wash hand basin with tiled splashback and matching tiled windowsill, central heating radiator and marble style ceramic tiled floor.

FITTED DINING KITCHEN 3.66m x 2.62m (12'0" x 8'7")
This is smartly presented and has a range of cream coloured high gloss wall mounted cupboards and base units with an oak block work surface incorporating a one and a half bowl porcelain sink unit with mixer tap. There is tiling to the splashback areas and one of the cupboards houses the gas combination boiler. It has an integrated 4 ring gas hob with electric double oven as well as plumbing for a washing machine with appliance recess, pvc double glazed window to the front, ceramic tiled floor, double panel radiator and due to the size of the kitchen there is room for a table as well.

LOUNGE 4.80m x 3.61m (15'9" x 11'10")
Situated at the rear of the property this is a nice size room extending to the full width of the house with pvc double glazed french style doors giving access into the rear garden and a further pvc double glazed window, 2 central heating radiators and wood style laminated flooring.

FIRST FLOOR LANDING
Doors lead off to the first floor accommodation, central heating radiator.

BEDROOM 2 3.66m x 2.64m (12'0" x 8'8")
A double sized bedroom with a pvc double glazed window to the front elevation and a central heating radiator.

BEDROOM 3 3.66m x 2.64m (12'0" x 8'8")
A further double bedroom with a pvc double glazed window to the rear elevation and a central heating radiator.

BEDROOM 4 2.06m x 2.06m (6'9" x 6'9")
A single sized bedroom with a double glazed window to the rear elevation and a central heating radiator.

FAMILY BATHROOM
This is fitted with a 3 piece white suite comprising of low flush wc, pedestal wash hand basin and panel bath. There is tiling to the bathing and splashback areas with a chrome wall mounted heated towel rail, coving to the ceiling, tile effect laminated floor covering, extractor fan and pvc double glazed window to the front elevation.

SECOND FLOOR LANDING
With a pvc double glazed window to the side, central heating radiator, a large walk-in cupboard offering great storage and door leading to bedroom 1.

BEDROOM 1 3.78m max x 3.73m max (12'5" max x 12'3" max)
This is a good size large double bedroom with a pvc double glazed window to the front, central heating radiator and wood style laminated flooring.

EN-SUITE SHOWER ROOM
Fitted with a 3 piece suite comprising of a low flush wc, pedestal wash hand basin and shower cubicle with marble effect panelling. There is also marble effect ceramic tiled floor with further tiling to the splashbacks, central heating radiator and double glazed velux style window to the rear elevation.

OUTSIDE
To the front of the property there is an open plan lawned garden with tarmac driveway providing off-street parking for 2 vehicles.

GARAGE
The attached garage is brick built and has a pitched roof with up and over door to the front and light and power supplied.

REAR GARDEN
This is all nicely landscaped with a good size paved patio, steps up to a slate chipped border with a central lawned area finished with artificial grass.

AGENTS NOTES:
TENURE - Leasehold - Terms of Lease 999 years from 2007. Ground Rent £150.00 pa. TBC

SERVICES - All mains services are connected.

DOUBLE GLAZING - PVC double glazing, where stated. Age of units various.

HEATING - Gas radiator central heating. Age of boiler TBC.

COUNCIL TAX - Band B

BROADBAND - Ultrafast broadband is available with download speeds of up to 2000 mbps and upload speeds of up to 2000 mbps.

MOBILE COVERAGE - Coverage is available with EE, Three, 02 and Vodafone.

VIEWING - By prior telephone appointment with horton knights estate agents.

MEASUREMENTS - Please note all measurements are approximate and for guidance purposes only, with a six inch tolerance. Therefore please do NOT rely upon them for carpet measurements, furniture and the like. Similarly, the floor plan is designed as a visual reference and is NOT a scale drawing.

PROPERTY PARTICULARS - We endeavour to make our property particulars accurate and reliable, however if there is a point that is especially important to you, please contact ourselves prior to exchange of contracts, so that we may further clarify that point. We DO NOT give any warranty to the suitability of any part, including fixtures and fittings of this property, prospective buyers are kindly asked to take specific advice from their professional advisors.

OPENING HOURS - Monday - Friday 9:00 - 5:30 Saturday 9:00 - 3:00 Sunday www.hortonknights.co.uk

FREE VALUATIONS - If you need to sell a house then please take advantage of our FREE VALUATION service, contact our Doncaster Office (01302) 760322 for a prompt and efficient service.

Floor Plans

Request Further Details

Or arrange a viewing

Recent Blog Posts

Latest news and updates

Best Estate Agents Doncaster 30th September Sales

Best Estate Agents Doncaster

Who are the best estate agents Doncaster There are plenty of estate agents to choose from. Both high street estate…

Read More
Easter Opening Hours 6th April News

Easter Opening Hours

🐰Hoping everyone has an egg-stra special Easter.🐰 We are now closed from Good Friday through to Easter Monday. We will…

Read More