Search Properties

Bracken Way, Harworth, Doncaster

Doncaster

£260,000

4 x 2 x 1 x
Department:
Sales
Reference:
LK/40 Bracken Way
Postcode:
DN11 8SB
Type:
Detached House
Availability:
For Sale
Receptions:
1
Tenure:
Leasehold
Leasehold Remaining:
980 years
Ground Rent:
£150

Summary

***LEGAL FEE INCENTIVE***
JUST LISTED………IMMACULATE 4 BEDROOM DETACHED FAMILY HOME / FANTASTIC ORANGERY OVERLOOKING LANDSCAPED REAR GARDEN / DOUBLE LENGTH DRIVEWAY & DETACHED GARAGE / ULTRA MODERN FITTED KITCHEN /LARGE SPACIOUS S LOUNGE / DOWNSTAIRS WC / EN-SUITE SHOWER ROOM / SECOND CONTEMPORARY SHOWER ROOM / GOOD ACCESS TO LOCAL AMENITIES INCLUDING THE A1 / VIEWING HIGHLY RECOMMENDED //

Details

Viewing is highly recommended on this immaculate, extended ‘turn key style’ 4 bedroom detached family house. It has a gas central heating system, pvc double glazing and comprises: Entrance hall, ground floor wc, spacious full width lounge which opens into a large orangery, ultra modern fitted kitchen and a separate utility room. First floor landing, 4 bedrooms, the main bedroom has a contemporary en-suite shower room and plus a modern second shower room. Outside, to the rear is a double length driveway leading to a detached garage, with electric door, and a very smart modern landscaped rear garden. The location of the property means good access to amenities all round, including the A1 and local amenities within the village, including schools, bus routes etc. PRICED TO SELL.

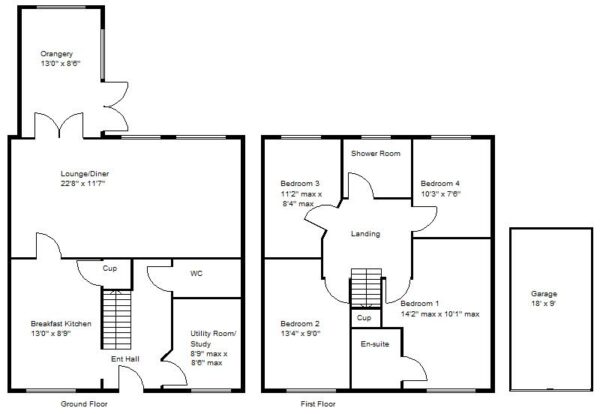
ACCOMMODATION
A composite type double glazed entrance door leads into the property’s entrance hall.

ENTRANCE HALL 3.96m max x 3.23m max (13'0" max x 10'7" max)
The entrance hall is all smartly finished and sets a theme for the remainder of the house. There is a staircase to the first floor accommodation, laminate flooring, ceiling light, central heating radiator and door to ground floor wc.

GROUND FLOOR WC
This is fitted with a modern 2 piece white suite comprising of a low flush wc, wash hand basin, pvc double glazed window, ceiling light, central heating radiator and a vinyl floor covering.

LOUNGE 6.91m x 3.53m (22'8" x 11'7")
This is a good sized room, it extends the full width of the house, it has a two pvc double glazed windows, a further set of double doors which lead into the orangery, laminate flooring, central heating radiator and two central ceiling lights.

ORANGERY 3.96m x 2.59m (13'0" x 8'6")
The orangery is a more recent addition which is all beautifully finished including a lantern style roof, inset spotlighting to the ceiling, laminate flooring, two pvc double glazed double opening doors which give access into the rear garden.

ULTRA MODERN KITCHEN 3.96m x 2.67m (13'0" x 8'9")
The kitchen is fitted with a range of modern high and low level units finished with a white handleless style cabinet door, a coordinating work surface and incorporates a five ring ceramic hob with glass splashback and an extractor hood above. There is double integrated oven with an integrated dishwasher and integrated fridge. There is a pvc double glazed window with an outlook to the front, a composite style single drainer sink with a chrome style tap over, it is all finished with a tiled floor covering, central heating radiator, spotlight fitment and a door to an understairs storage cupboard.

UTILITY ROOM 2.67m x 2.26m (8'9" x 7'5")
This has matching kitchen cabinets, plumbing for an automatic washing machine, room for under counter fridge freezers etc. There is a continuation of the laminate flooring, central heating radiator, pvc double glazed window and a central ceiling light fitment.

FIRST FLOOR LANDING
This has an access point into the loft space, central heating radiator and doors leading to the bedrooms and bathroom.

BEDROOM 1 4.32m max x 3.07m max (14'2" max x 10'1" max)
This is a large double bedroom which has a pvc double glazed window to the front, central heating radiator and a central ceiling light.

EN-SUITE SHOWER ROOM
This is all beautifully presented with a modern suite which comprises of a walk-in shower with rainfall shower head, wash basin set onto a vanity top and a low flush wc. There is tiling to the four walls, matching floor tiles, a contrasting black radiator, pvc double glazed window, extractor fan and inset spotlighting to a waterproof ceiling.

BEDROOM 2 4.06m x 2.74m (13'4" x 9'0")
This has a pvc double glazed window to the front, central heating radiator, central ceiling light, built-in cupboard which houses a gas fired combination type boiler which supplies the domestic hot water and central heating systems.

BEDROOM 3 3.40m x 2.54m (11'2" x 8'4")
This has a pvc double glazed window to the rear, central heating radiator and a central ceiling light.

BEDROOM 4 3.15m x 2.29m (10'4" x 7'6")
This has a pvc double glazed window to the rear, central heating radiator and a central ceiling light.

CONTEMPORARY SHOWER ROOM
This has been remodelled over the years to create a beautiful contemporary space, it has a walk-in shower with modern waterproof walling, wash hand basin and a low flush wc set into bathroom furniture There is tiling, vinyl flooring, pvc double glazed window, extractor fan and a central heating radiator.

OUTSIDE
The property stands on a corner plot, to the front is mainly lawned, there is a paved pedestrian pathway to the front door.

REAR GARDEN
Again, this is all nicely enclosed, it has brick walling and fencing to the perimeters, it has all been hard landscaped and designed for easier and lower maintenance. It has a paved patio and sitting area with central artificial lawn, further shaped flower bed, a gate in the rear boundary gives access to a double length driveway which in turn leads to a detached brick garage approx 18’0 x 9’0 which has an electric roller shutter door, power and light laid on.

AGENTS NOTES:
TENURE - LEASEHOLD - Terms of lease 999 years from 2007. Ground Rent £ 150.00 pa tbc.

SERVICES - All mains services are connected.

DOUBLE GLAZING - PVC double glazing, where stated. Age of units various.

HEATING - Gas radiator central heating. Age of boiler TBC.

COUNCIL TAX - Band C

BROADBAND - Ultrafast broadband is available with download speeds of up to 2000 mbps and upload speeds of up to 2000 mbps.

MOBILE COVERAGE - Coverage is available with EE, Three, 02 and Vodafone.

VIEWING - By prior telephone appointment with horton knights estate agents.

MEASUREMENTS - Please note all measurements are approximate and for guidance purposes only, with a six inch tolerance. Therefore please do NOT rely upon them for carpet measurements, furniture and the like. Similarly, the floor plan is designed as a visual reference and is NOT a scale drawing.

PROPERTY PARTICULARS - We endeavour to make our property particulars accurate and reliable, however if there is a point that is especially important to you, please contact ourselves prior to exchange of contracts, so that we may further clarify that point. We DO NOT give any warranty to the suitability of any part, including fixtures and fittings of this property, prospective buyers are kindly asked to take specific advice from their professional advisors.

OPENING HOURS - Monday - Friday 9:00 - 5:30 Saturday 9:00 - 3:00 Sunday www.hortonknights.co.uk

FREE VALUATIONS - If you need to sell a house then please take advantage of our FREE VALUATION service, contact our Doncaster Office (01302) 760322 for a prompt and efficient service.

Floor Plans

Request Further Details

Or arrange a viewing

Recent Blog Posts

Latest news and updates

Best Estate Agents Doncaster 30th September Sales

Best Estate Agents Doncaster

Who are the best estate agents Doncaster There are plenty of estate agents to choose from. Both high street estate…

Read More
Easter Opening Hours 6th April News

Easter Opening Hours

🐰Hoping everyone has an egg-stra special Easter.🐰 We are now closed from Good Friday through to Easter Monday. We will…

Read More