Search Properties

Brander Close, Woodfield Plantation, Doncaster

Doncaster

£360,000 Guide Price

4 x 3 x
Department:
Sales
Reference:
ES
Type:
Detached House
Availability:
Sold STC
Receptions:
2
Tenure:
Freehold
Council Tax Band:
D

Summary

***GUIDE PRICE £360,000 - £375,000***

IMMACULATE 4 BEDROOM, 3 BATHROOM DETACHED HOUSE / LARGE GARDEN ROOM EXTENSION / CONTEMPORARY OPEN PLAN KITCHEN / AMPLE PARKING & INTEGRAL GARAGE / LOVELY CUL DE SAC POSITION / INTERNAL VIEWING HIGHLY RECOMMENDED //

Details

Buyers will not be disappointed, it is absolutely immaculate and offers ready to move into living. It has a gas central heating system, pvc double glazing and briefly comprises: Large entrance hall, ground floor wc, separate lounge, open plan kitchen with a more informal sitting area off and a dining conservatory. On the first floor there are 4 good sized bedrooms, 2 with en-suites and a lovely house bathroom. outside the property is nicely positioned in the cul de sac, with ample parking and an integral garage. Enclosed rear garden with a large patio & sitting area, plus a large timber store. Very popular development with access to local amenities including a 24hr Tesco, shops, pub and eateries.

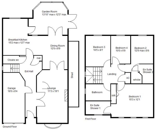
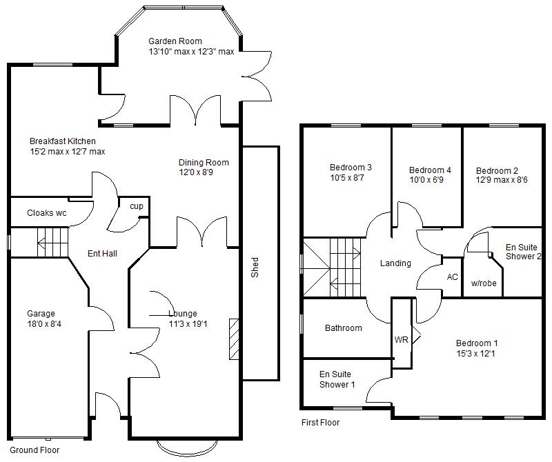
ACCOMMODATION
A canopy gives shelter to a double glazed entrance door which leads into the property's entrance hall.

ENTRANCE HALL
This is a large welcoming space, it has a modern laminate floor covering, a central heating radiator, a staircase to the first floor accommodation, ornate cornicing to the ceiling, 2 ceiling lights, a corner cupboard and doors leading to;

GROUND FLOOR WC
All beautifully finished with a modern white 2 piece suite comprising of a low flush wc and wash hand basin. There is modern tiling, modern decorations, pvc double glazed window, radiator, a continuation of laminate flooring, ornate cornicing and a ceiling light.

SEPARATE LOUNGE 5.64m x 3.40m (18'6" x 11'2")
This is an attractive front facing reception room, it has a broad pvc double glazed bow window to the front, 2 central heating radiators, a feature fireplace with electric fire inset, ornate cornicing and 2 ceiling lights.

OPEN PLAN LIVING & KITCHEN 7.32m max x 5.79m max (24' max x 19' max)
This is better demonstrated by the floor plan and photographs. There is an informal sitting area which has pvc double glazed double opening doors which lead into a dining/conservatory. A modern laminate floor covering, ornate cornicing, central ceiling light and opens directly into a large kitchen. This is fitted with a range of modern high and low level units finished with a marble effect work surface, a hand made style tiled splashback. There is a deep recess suitable for a range style cooker with a matching extractor hood above, plus an integrated dishwasher and fridge. A single drainer one and half bowl stainless steel sink unit with mixer tap, laminate flooring, a double panelled central heating radiator, inset spot lighting to the ceiling, a pvc double glazed window and a double glazed door giving access into the dining conservatory.

DINING CONSERVATORY
Which is finished with pvc double glazing including a insulated light weight roofing system, laminate flooring, a central heating radiator, 2 pvc double glazed double opening doors which give access into the rear garden and fitted blinds to all the windows.

FIRST FLOOR LANDING 4.27m x 2.06m (14'0" x 6'9")
There is a pvc double glazed window to the side, an access point in to the loft space, central heating radiator and deep built-in storage cupboard.

BEDROOM 1 4.67m max x 4.01m max (15'4" max x 13'2" max)
A beautiful large principle bedroom it has 3 feature windows to the front elevation, a central heating radiator, ornate cornicing, central ceiling light and in-built wardrobes. A door leads into an en-suite shower room.

EN-SUITE SHOWER ROOM
All smartly finished with modern tiling and includes a shower enclosure with mains plumbed thermostatic shower, a pedestal wash hand basin, low flush wc, modern laminate flooring, central heating radiator and a ceiling light.

BEDROOM 2 3.91m max x 2.92m max (12'10" max x 9'7" max)
A good sized second double bedroom, it has a pvc double glazed window to the rear, a central heating radiator, a walk in wardrobe which has light laid on, hanging rail and storage and a separate door gives access into a second en-suite.

EN-SUITE SHOWER ROOM
This has a beautiful modern white suite comprising of a shower enclosure, wash hand basin set on to a vanity top, a low flush wc, a towel rail/radiator, modern tiled flooring, matching wall tiles, extractor fan, coving to the ceiling, pvc double glazed window and a ceiling light.

BEDROOM 3 3.05m x 2.64m (10'0" x 8'8" )
A good size third double bedroom, it has a pvc double glazed window, a central heating radiator, fitted wardrobes, coving to the ceiling and a ceiling light.

BEDROOM 4 3.05m x 2.08m (10'0" x 6'10" )
Presently displayed as a dressing room but a comfortable fourth bedroom. It has a pvc double glazed window with an outlook to the rear, a central heating radiator, coving and a ceiling light.

MODERN BATHROOM
This is fitted with a corner style bath with mixer shower over, a pedestal wash hand basin and a low flush wc. There is tiling to half wall height, laminate flooring, central heating radiator, pvc double glazed window, extractor fan, coving and a ceiling light.

OUTSIDE
The property stands on an attractive end plot. There is a tarmac driveway which provides car standing for several cars, the remainder has been hard landscaped and therefore, offers additional off-road parking if required, it has several ornamental trees and shrubs etc and a side access point.

REAR GARDEN
This enjoys a south-westerly aspect, there is concrete posts and timber fencing to the perimeters, a paved patio and sitting area which extends on to a lawn where there is further decked patio and sitting enjoying the afternoon and evening sun. To the side of the property there is a long timber shed.

AGENTS NOTES:
TENURE - Freehold

SERVICES - All mains services are connected.

DOUBLE GLAZING - PVC double glazing, where stated. Age of units various.

HEATING - Gas radiator central heating via combination type boiler. Age of boiler TBC.

COUNCIL TAX - Band D

BROADBAND - Ultrafast broadband is available with download speeds of up to 1600 mbps and upload speeds of up to 115 mbps.

MOBILE COVERAGE - Coverage is available with EE, Three, 02 and Vodafone.

VIEWING - By prior telephone appointment with horton knights estate agents.

MEASUREMENTS - Please note all measurements are approximate and for guidance purposes only, with a six inch tolerance. Therefore please do NOT rely upon them for carpet measurements, furniture and the like. Similarly, the floor plan is designed as a visual reference and is NOT a scale drawing.

PROPERTY PARTICULARS - We endeavour to make our property particulars accurate and reliable, however if there is a point that is especially important to you, please contact ourselves prior to exchange of contracts, so that we may further clarify that point. We DO NOT give any warranty to the suitability of any part, including fixtures and fittings of this property, prospective buyers are kindly asked to take specific advice from their professional advisors.

FREE VALUATIONS - If you need to sell a house then please take advantage of our FREE VALUATION service, contact our Doncaster Office (01302) 760322 for a prompt and efficient service.

Floor Plans

Request Further Details

Or arrange a viewing

Recent Blog Posts

Latest news and updates

Best Estate Agents Doncaster 30th September Sales

Best Estate Agents Doncaster

Who are the best estate agents Doncaster There are plenty of estate agents to choose from. Both high street estate agents and…

Read More
Easter Opening Hours 6th April News

Easter Opening Hours

🐰Hoping everyone has an egg-stra special Easter.🐰 We are now closed from Good Friday through to Easter Monday. We will open as…

Read More