Search Properties

Brook Way, Arksey, Doncaster

Doncaster

£195,000 Guide Price

3 x 1 x
Department:
Sales
Reference:
FH/NM
Type:
Semi-Detached House
Availability:
For Sale
Receptions:
1
Tenure:
Freehold

Summary

**** GUIDE PRICE £195,000 - 215,000 ****

EXTENDED 3 BEDROOM SEMI DETACHED HOUSE / LARGE KITCHEN EXTENSION TO THE REAR / LARGER THAN AVERAGE GARDENS / GCH VIA MODERN COMBI BOILER / PVC DOUBLE GLAZING / SPACIOUS GROUND FLOOR LIVING / NO CHAIN / EARLY VIEWING ESSENTIAL //

Details

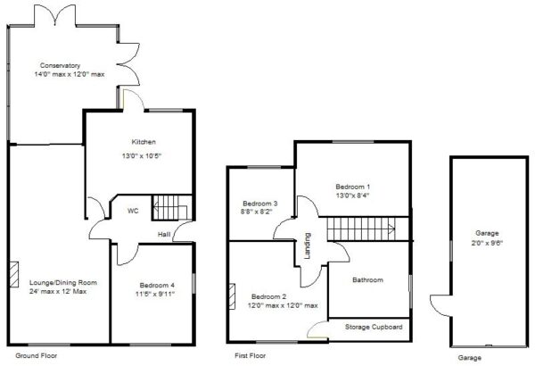
Well located on this popular raodway, an extended 3 bedroom semi detached house offering larger more open plan living in equally good sized gardens. The property benefits from gas central heating via a modern combination type boiler, pvc double glazing and briefly comprises: Entrance hall large open plan living and dining rooms and an extended kitchen. First floor landing 3 bedrooms, 2 doubles. and a single, plus a modern shower room. Outside the property stands in larger than average gardens, a long side driveway and a garage base in the rear. Arksey is a popular village on the North side of Doncaster and is served by village amenities including a popular school. NO CHAIN. EARLY VIEWING ESSENTIAL.

ACCOMMODATION
A PVC double glazed entrance door with matching side screen leads into property's entrance hall.

ENTRANCE HALL
This has a staircase leading to first floor accommodation, central heating radiator, central ceiling light and a door into an extended open plan lounge and dining room.

OPEN PLAN LOUNGE & DINING ROOM 5.36m x 2.54m max (17'7" x 8'4" max )
A particularly good-sized room which has a broad PVC double glazed window to the front, a feature central fireplace, central heating radiator, coving and wall lights. This opens into a dining and sitting area where there are two double glazed PVC windows, a further central heating radiator, two ceiling lights, coving and a cupboard giving access to the understairs cupboard where there is a gas fired combination type boiler which supplies the domestic water and central heating systems. A door from here leads into the extended kitchen.

EXTENDED KITCHEN 4.11m x 2.44m (13'6" x 8'0" )
This is a particularly good size it has a range of base and wall units with a work surface over, there is a four-ring gas hob with extractor hood above and integrated oven beneath. There is space for a tall fridge/freezer, plumbing for automatic washing machine, single drainer stainless steel sink unit, two PVC double glazed windows, extractor fan, ceiling light, PVC double glazed door.

FIRST FLOOR LANDING
This has a PVC double glazed window to the side, access point into the loft space and doors to the bedrooms and shower room.

BEDROOM 1 3.30m x 3.66m (10'10" x 12'0")
A good sized double bedroom, it has a range of fitted wardrobes, a PVC double glazed window to front, central heating radiator, coving and central ceiling light.

BEDROOM 2 3.30m max x 3.05m max (10'10" max x 10'0" max)
Another good sized second double bedroom it has PVC double glazed window to the rear, central heating radiator, coving and ceiling light.

BEDROOM 3 1.98m x 2.74m max (6'6" x 9'0" max)
A comfortable third bedroom with a built-in wardrobe style cupboard, PVC double glazed window, central heating radiator, coving and a ceiling light.

BATHROOM
This has been reconfigured over the years to create a modern contemporary style shower room, this has a walk-in shower enclosure with mains plumbed shower including rainfall shower head, floating wash hand basin and matching WC. there is a PVC double glazed window, inset spotlighting, extractor fan a contemporary style towel rail/radiator.

OUTSIDE
The property stands on one of the larger gardens, the front has a paved driveway which continues along the side of the property and leads into the rear garden. This has a concrete base suitable for a garage if so required (STP). The remainder of the garden is hard landscaped with decorative stones, shaped flowerbeds and borders.

REAR GARDEN
The rear garden has been designed for easier and lower maintenance there is paved areas, decorative stones, patios and to the far end a cultivated garden bed suitable for shrubs, plants etc. It is all nicely fenced with concrete posts and timber fencing to the perimeters.

AGENTS NOTES:
TENURE - FREEHOLD.

SERVICES - All mains services are connected.

DOUBLE GLAZING - PVC double glazing, where stated. Age of units various.

HEATING - Gas radiator central heating. Age of boiler TBC

COUNCIL TAX - Band B

BROADBAND - Ultrafast broadband is available with download speeds of up to 1000 mbps and upload speeds of up to 100 mbps.

MOBILE COVERAGE - Coverage is available with EE, Three, 02 and Vodafone.

VIEWING - By prior telephone appointment with horton knights estate agents.

MEASUREMENTS - Please note all measurements are approximate and for guidance purposes only, with a six inch tolerance. Therefore please do NOT rely upon them for carpet measurements, furniture and the like. Similarly, the floor plan is designed as a visual reference and is NOT a scale drawing.

PROPERTY PARTICULARS - We endeavour to make our property particulars accurate and reliable, however if there is a point that is especially important to you, please contact ourselves prior to exchange of contracts, so that we may further clarify that point. We DO NOT give any warranty to the suitability of any part, including fixtures and fittings of this property, prospective buyers are kindly asked to take specific advice from their professional advisors.

OPENING HOURS - Monday - Friday 9:00 - 5:30 Saturday 9:00 - 3:00 Sunday www.hortonknights.co.uk

INDEPENDENT MORTGAGE ADVICE - With so many mortgage options to choose from, how do you know your getting the best deal? Quite simply...YOU DON'T. Talk to an expert. We offer uncomplicated impartial advice. Call us today: 01302 760322.

FREE VALUATIONS - If you need to sell a house then please take advantage of our FREE VALUATION service, contact our Doncaster Office (01302) 760322 for a prompt and efficient service.

Floor Plans

EPC

Request Further Details

Or arrange a viewing

Recent Blog Posts

Latest news and updates

Best Estate Agents Doncaster 30th September Sales

Best Estate Agents Doncaster

Who are the best estate agents Doncaster There are plenty of estate agents to choose from. Both high street estate agents and…

Read More
Easter Opening Hours 6th April News

Easter Opening Hours

🐰Hoping everyone has an egg-stra special Easter.🐰 We are now closed from Good Friday through to Easter Monday. We will open as…

Read More