Search Properties

Burghwallis, Doncaster

Doncaster

£775,000 Offers Over

3 x 2 x 4 x
Department:
Sales
Reference:
LJ/The Old Cottage
Postcode:
DN6 9JN
Type:
Cottage
Availability:
For Sale
Receptions:
4
Tenure:
Freehold
Council Tax Band:
F

Summary

STUNNING DETACHED PERIOD PROPERTY / BEAUTIFUL LARGE GARDENS, PARKING & DOUBLE GARAGE / OLD VILLAGE STREET SETTING / SYMPATHETICALLY & TASTEFULLY RENOVATED & RESTORED / SPACIOUS & CHARACTERFUL GROUND FLOOR LIVING / HIGH QUALITY BESPOKE KITCHEN / PRINCIPAL BEDROOM WITH EN- SUITE / A GORGEOUS TURN KEY PROPERTY WORTHY OF AN INTERNAL INSPECTION //

Details

The Old Cottage is a beautiful character property sat in large manicured gardens in the middle of the village's conservation area. It was originally sold in the 1960’s as a 16th century little country house with ancillary attached farm stores. Whilst the age has never been verified, it is believed to be one of the oldest properties in the village. Now with several successive ambitious owners, it appears as a beautiful country home of manageable proportions befitting of any country house magazine.

The property is approached by a period gated entrance into beautiful large maturing gardens, very well tended and a gorgeous backdrop to the dwelling house. A long driveway offers parking and continues to a large detached double garage. The house improvements have been thoughtful and careful, meticulous in design with the addition of clever heating systems, including the integration of a solar system with battery storage all done very sympathetically.

The main entrance to the house is on the East elevation. A decorative brick arched entrance into the hall, which continues through to a large sitting room with a feature fireplace, log burner and beams and creates a cosy relaxing space, a beautiful winters evening retreat. From here a small lobby leads to a large more formal dining room with bespoke panelling. A separate bright lounge which ingeniously opens courtesy of a wall of German glass ā€˜turn & slide’ doors into a conservatory with an outlook over the gardens. The breakfast kitchen was fully fitted by a bespoke Derbyshire firm, hand crafted with high quality cabinets, finished with Quartz/ granite work surfaces including a feature 4 oven Aga, and many other integrated appliances. There is a home office or snug and a ground floor wc. On the first floor, a long landing gives access to a large main bedroom suite which includes a contemporary en-suite shower room. There are 2 additional large double bedrooms and a large 4 piece bathroom. Outside, a walk through the garden will not fail to impress, full of interest and colour with enough tree cover to offer privacy and a shaded spot or two. A large patio offers a place to entertain with a beautiful vantage point overlooking the garden, plus a few additional tucked away spaces too.

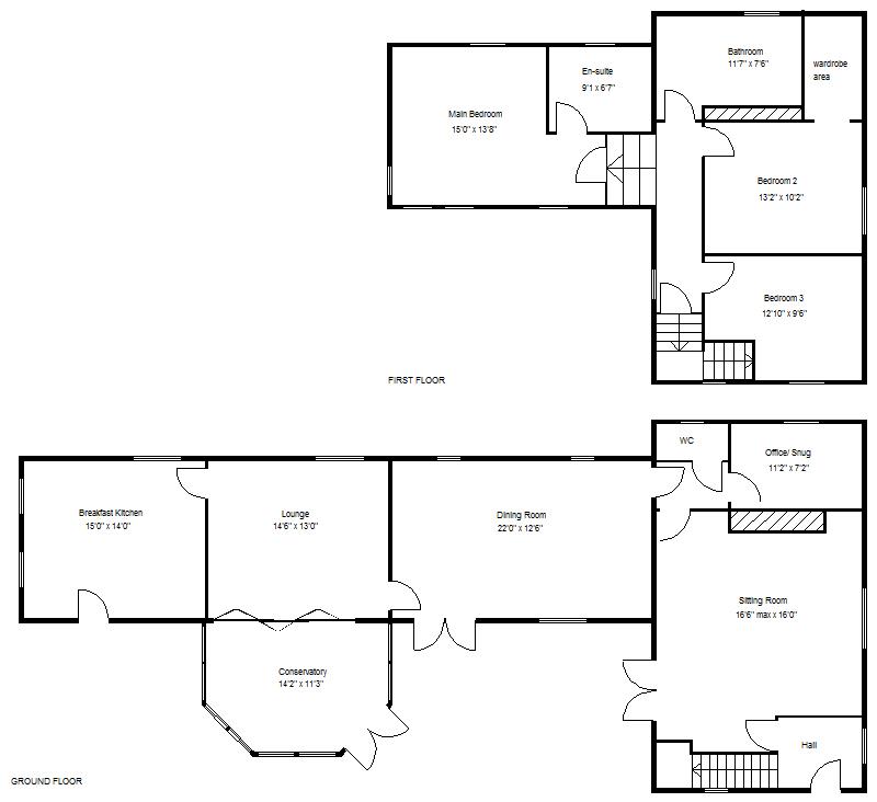
ACCOMMODATION
A traditional arched timber door leads into the entrance hall.

ENTRANCE HALL
This has a Yorkshire sliding sash window to the side and further double glazed window to the front, a double panel central heating radiator, central ceiling light, ornamental beams and an arched interior door which leads into a beautiful sitting room.

SITTING ROOM 5.03m max x 4.88m (16'6" max x 16'0")
This is probably better demonstrated by the photographs, its a large square shaped room with a feature central fireplace incorporating a log burner set on to a stone hearth with matching stone fireplace. It has double glazed double opening doors which give access on to the patio, a Yorkshire sliding sash window to the side, ornamental beams on display, a double panel central heating radiator and wall lights. Access to the cellar. A door from here leads into an inner lobby.

INNER LOBBY
This has a central heating radiator, beamed ceiling, central ceiling light and doors into a office/snug and a ground floor wc.

OFFICE/ SNUG 3.40m x 2.18m (11'2" x 7'2")
A very useful additional living space. It has a Yorkshire sliding sash double glazed window to the rear, a central heating radiator and an ornamental beamed ceiling.

GROUND FLOOR WC
Smartly finished and fitted with a low flush floating wc, a contemporary style wash hand basin set onto a vanity top, feature tiling, a pvc double glazed window, beamed ceiling, feature wall light and a contemporary style towel rail/radiator.

DINING ROOM 6.71m x 3.81m (22'0" x 12'6")
A beautiful statement room, it has feature panelling which covers the full length of one wall concealing radiators, 2 pvc double glazed double opening French style doors, which lead onto the patio and garden, a further pvc double glazed window, ornamental beamed ceiling and 2 feature arched windows.

LOUNGE 4.42m x 3.96m (14'6" x 13'0")
A large square shaped room, it has a feature fireplace with a contemporary styled log effect gas fire creating a focal point. The opposite wall has a full length 'German designer style slide and turn glazed doors' that open directly into a dining conservatory Amtico LVT style flooring.

CONSERVATORY 4.32m x 3.43m (14'2" x 11'3")
A beautiful bright sitting area with an uninterrupted view of the garden, it is finished with double glazing, including a pitched glass roof with feature lighting, central heating radiators and Amtico LVT flooring.

BREAKFAST KITCHEN 4.57m x 4.52m (15'0" x 14'10")
This is fitted with a range of bespoke cabinets manufactured by Derbyshire firm, to a particularly high standard. The cabinets are finished with tulip wood interiors, and a quartz work surface which incorporates an under mounted sink and matching splashback. Within the design there are full height larder style cabinets, with feature LED cabinet lighting, built-in cupboards concealing washing machines etc. with appropriate plumbing laid on, further matching tall cabinets. There is a large 150 Aga with 4 ovens, a warming plate and 2 hotplates and twin extractor fans above. There is additional space for an American style fridge/freezer, recess and plumbing for dishwasher and an integrated wine cooler. A stable type door giving direct access into the gardens, 4 pvc double glazed windows, a porcelain tiled floor, inset spot-lighting to the ceiling.

From the entrance hall stairs lead to the;

FIRST FLOOR LANDING
This is a long landing. There is a pvc double glazed window to the side, traditional cottage style doors throughout and a further small staircase giving access into the main bedroom.

MAIN BEDROOM 4.57m x 4.17m (15'0" x 13'8")
A beautiful large bedroom it has fitted wardrobes, with matching bedroom furniture, 5 pvc double glazed windows to the front side and rear elevations, inset spot-lighting to the ceiling, 2 double panel central heating radiators and door to the en-suite shower room.

EN-SUITE SHOWER ROOM 2.77m x 2.01m (9'1" x 6'7")
All beautifully finished with a contemporary theme which comprises of a walk-in shower enclosure with mains plumbed thermostatic shower including a rainfall shower head, a Vernon Tutbury floating wash hand basin and low flush wc. There is Travetine tiling to the walls, a coordinating floor tile, central heating radiator plus a heated towel rail, inset spot lighting to the ceiling and an extractor fan. From here there is an access point into the loft space.

BEDROOM 2 4.01m x 3.10m (13'2" x 10'2")
A beautiful large second double bedroom it has a double glazed Yorkshire sliding sash window, central heating radiator, inset spot lighting to the ceiling and a deep walkway leading into an additional area perfect for a walk-in wardrobe. This has lighting laid on and a central heating radiator.

BEDROOM 3 3.91m x 2.90m (12'10" x 9'6")
Another large double bedroom (as evidenced by the room measurements). It has a Yorkshire sliding sash, double glazed window to the front, a central heating radiator, inset spot lighting to the ceiling and built-in over stair cupboard.

HOUSE BATHROOM 3.53m x 2.29m (11'7" x 7'6")
A large bathroom, fitted with a 4 piece white suite that comprises of a panelled bath, a separate shower enclosure, wash hand basin and a low flush wc. It has tiling to the four 4 walls, coordinating floor tile, a period style radiator, inset spot lighting to the ceiling and an extractor fan.

GARDENS & GARAGE
The property stands in large maturing and meticulously maintained walled gardens, approached by a brick and decorative iron gateway off Old Village Street. It is well stocked with ornamental maturing trees, maturing shrubs and plants laid out around a large central lawn, offering a wide variety and an abundance of colour throughout the year. A large patio gives an outlook over the garden, with additional more intimate hidden seating areas. The garden offers external lighting, power and water. A long drive provides ample parking and in turn leads to a detached double garage with power and light laid on.

AGENTS NOTES:
TENURE - Freehold.

SERVICES - All mains services are connected.

DOUBLE GLAZING - PVC and timber casement double glazing, where stated. Age of units various.

HEATING - The primary source of heating is a conventional gas radiator central heating system with a supplementary smartlink system from the Log burner. Age of gas boiler 5 years.

SOLAR PANELS & BATTERY STORAGE - The property has owned solar panels capable of generating 4.8 Kwh, and battery storage of 6.2 kwh.

COUNCIL TAX - Band F.

BROADBAND - Ultrafast broadband is available with download speeds of up to 1000 mbps and upload speeds of up to 1000 mbps.

MOBILE COVERAGE - Coverage is available with EE, Three, 02 and Vodafone.

VIEWING - By prior telephone appointment with horton knights estate agents.

MEASUREMENTS - Please note all measurements are approximate and for guidance purposes only, with a six inch tolerance. Therefore please do NOT rely upon them for carpet measurements, furniture and the like. Similarly, the floor plan is designed as a visual reference and is NOT a scale drawing.

PROPERTY PARTICULARS - We endeavour to make our property particulars accurate and reliable, however if there is a point that is especially important to you, please contact ourselves prior to exchange of contracts, so that we may further clarify that point. We DO NOT give any warranty to the suitability of any part, including fixtures and fittings of this property, prospective buyers are kindly asked to take specific advice from their professional advisors.

OPENING HOURS - Monday - Friday 9:00 - 5:30 Saturday 9:00 - 3:00 Sunday www.hortonknights.co.uk

FREE VALUATIONS - If you need to sell a house then please take advantage of our FREE VALUATION service, contact our Doncaster Office (01302) 760322 for a prompt and efficient service.

Floor Plans

EPC

Request Further Details

Or arrange a viewing

Recent Blog Posts

Latest news and updates

Best Estate Agents Doncaster 30th September Sales

Best Estate Agents Doncaster

Who are the best estate agents Doncaster There are plenty of estate agents to choose from. Both high street estate…

Read More
Easter Opening Hours 6th April News

Easter Opening Hours

🐰Hoping everyone has an egg-stra special Easter.🐰 We are now closed from Good Friday through to Easter Monday. We will…

Read More