Search Properties

Butterfly Way, New Rossington, Doncaster

Doncaster

£375,000

4 x 2 x 1 x
Department:
Sales
Reference:
LK
Postcode:
DN11 0DX
Type:
Detached House
Availability:
For Sale
Receptions:
1
Tenure:
Freehold
Council Tax Band:
D

Summary

IMMACULATE 4 DOUBLE BEDROOM DETACHED HOUSE / INCLUDES MANY BUILDER UPGRADES / LESS THAN 2 YEARS OLD / PREMIUM FITTED OPEN PLAN DINING KITCHEN / INTEGRATED APPLIANCES / SEPARATE UTILITY ROOM / CONTEMPORARY EN-SUITE & BATHROOM / DOUBLE WIDTH DRIVEWAY & INTEGRAL GARAGE / EARLY VIEWING ESSENTIAL //

Details

An exceptional, show home standard, 4 double bedroom detached property, offering upgraded, energy-efficient living on the highly desirable De Maulay Manor development. At under 2 years old, this outstanding Shelford design offers the perfect blend of modern style, high-end finishes, and practical family living, all ready to move straight into.

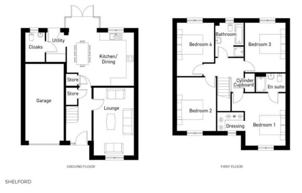
ACCOMMODATION

GROUND FLOOR: From the moment you enter the spacious hallway, the sense of quality is clear. The elegant lounge, accessed via glazed internal doors, provides a stylish yet comfortable space to relax or entertain. Across the rear there is a stunning open plan kitchen and dining area, the hub of everyday life. Featuring a contemporary Symphony kitchen with full suite of integrated Bosch and Zanuzzi appliances, this space effortlessly combines design and functionality. French doors open directly onto the garden, creating a seamless indoor-outdoor flow ideal for entertaining and family living alike. Separate utility room keeps the day-to-day essentials neatly tucked away, while the large downstairs cloakroom and integral garage add further convenience.

FIRST FLOOR: On the first floor the property continues to impress with 4, well proportioned double bedrooms. The principal bedroom suite is complete with a dressing area and a sleek en-suite shower room. The remaining bedrooms are served by a modern family bathroom featuring both a bath and separate shower, perfect for busy households.

OUTSIDE: Attractive front and rear gardens, an integral single garage and private driveway providing off-street parking for two vehicles and an EV charge point.

ROOMS & DIMENSIONS

ENTRANCE HALL

LOUNGE 5.26m x 3.15m (17'3" x 10'4")

OPEN PLAN DINING KITCHEN
DINING AREA 4.17m x 2.56m (13'7" x 8'4")

KITCHEN AREA 4.17m x 2.68m (13'7" x 8'9")

UTILITY ROOM 2.29m x 1.50m (7'6" x 4'11)

CLOAK/WC

FIRST FLOOR LANDING

BEDROOM 1 4.17m x 4.06m (13'8" x 13'4")

EN-SUITE 2.29m x 1.40m (7'6" x 4'7")

BEDROOM 2 4.17m x 3.02m (13'8" x 9'11")

BEDROOM 3 3.89m x 3.15m (12'9" x 10'4")

BEDROOM 4 4.17m x 2.90m (13'8" x 9'6")

HOUSE BATHROOM 2.67m x 2.18m (8'9 x 7'2")

OUTSIDE

REAR GARDEN

GARAGE

AGENTS NOTES:
TENURE - FREEHOLD - Estate Charge - TBC

SERVICES - Mains electricity, water and drainage are the connected to the property.

DOUBLE GLAZING - PVC double glazing. Age of units 2024

HEATING - Radiator central heating via an Air Source Heat Pump. Date of Install 2024

COUNCIL TAX - Band D.

BROADBAND - Ultrafast broadband is available with download speeds of up to 100 mbps and upload speeds of up to 100 mbps.

MOBILE COVERAGE - Coverage is available with EE, Three, 02 and Vodafone.

VIEWING - By prior telephone appointment with horton knights estate agents.

MEASUREMENTS - Please note all measurements are approximate and for guidance purposes only, with a six inch tolerance. Therefore please do NOT rely upon them for carpet measurements, furniture and the like. Similarly, the floor plan is designed as a visual reference and is NOT a scale drawing.

PROPERTY PARTICULARS - We endeavour to make our property particulars accurate and reliable, however if there is a point that is especially important to you, please contact ourselves prior to exchange of contracts, so that we may further clarify that point. We DO NOT give any warranty to the suitability of any part, including fixtures and fittings of this property, prospective buyers are kindly asked to take specific advice from their professional advisors.

OPENING HOURS - Monday - Friday 9:00 - 5:30 Saturday 9:00 - 3:00 Sunday www.hortonknights.co.uk

INDEPENDENT MORTGAGE ADVICE - With so many mortgage options to choose from, how do you know your getting the best deal? Quite simply...YOU DON'T. Talk to an expert. We offer uncomplicated impartial advice. Call us today: 01302 760322.

FREE VALUATIONS - If you need to sell a house then please take advantage of our FREE VALUATION service, contact our Doncaster Office (01302) 760322 for a prompt and efficient service.

Floor Plans

EPC

Request Further Details

Or arrange a viewing

Recent Blog Posts

Latest news and updates

Best Estate Agents Doncaster 30th September Sales

Best Estate Agents Doncaster

Who are the best estate agents Doncaster There are plenty of estate agents to choose from. Both high street estate…

Read More
Easter Opening Hours 6th April News

Easter Opening Hours

🐰Hoping everyone has an egg-stra special Easter.🐰 We are now closed from Good Friday through to Easter Monday. We will…

Read More