Search Properties

Challenger Drive, Sprotbrough, Doncaster

Doncaster

£210,000 Offers Over

3 x 1 x 2 x
Department:
Sales
Reference:
ES
Postcode:
DN5 7RY
Type:
House
Availability:
For Sale
Receptions:
2
Tenure:
Freehold
Council Tax Band:
B

Summary

3 BEDROOM SEMI DETACHED HOUSE / MODERN FITTED OPEN PLAN DINING KITCHEN / PVC CONSERVATORY/ MODERN BATHROOM WITH SHOWER BATH / ENCLOSED REAR GARDEN / OFF ROAD PARKING TO THE FRONT / WELL REGARDED RESIDENTIAL AREA/ PRICED TO SELL //

Details

Located in this very well regarded residential area, a modern 3 bedroom semi detached house with a large PVC conservatory to the rear. Attractive Oak coloured pvc windows, gas radiator central heating and briefly comprises: Entrance hall with stairs off, attractive lounge, open plan dining kitchen with integrated cooking appliances, pvc conservatory, first floor landing, 3 bedrooms and a modern white bathroom with a shower. Outside there is parking to the front for two cars, and an enclosed rear garden. Good access to local amenities including a very popular school, local shops etc. plus access to the A1 and motorway networks. EARLY VIEWING RECOMMENDED.

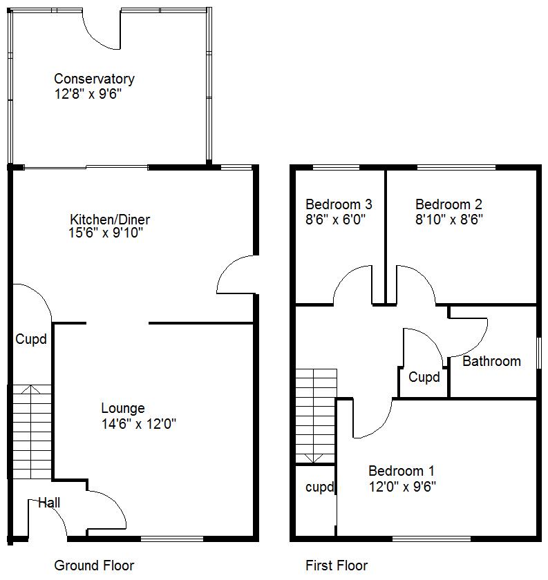
ACCOMMODATION
An oak coloured pvc double glazed entrance door leads into the property's entrance hall.

ENTRANCE HALL
This is finished with a real wood floor covering, there is a staircase to the first floor accommodation, central heating radiator, coving and a ceiling light. An oak interior door ( which can be found throughout the remainder of the property), leads through into the lounge.

LOUNGE 4.42m x 3.66m (14'6" x 12'0")
An attractive room it has a deep pvc double glazed bay window to the front, a double panel central heating radiator, contemporary style fire place, coving and a central ceiling light. A broad opening leads through into an open plan dining kitchen.

OPEN PLAN DINING KITCHEN 4.72m x 3.00m (15'6" x 9'10")
This is fitted with a range of modern high and low level units finished with a mid grey handleless door with a contrasting oak style work surface over. There is a composite single drainer sink with mixer tap, integrated appliances include a four ring hob, double oven, recess suitable for tall fridge/freezer, real wood flooring which continues through into the dining area, where there is a sliding patio door which gives access into the conservatory, two central heating radiators, pendant light fitting, oak door giving access to understairs storage and there is a further exterior pvc double glazed door.

CONSERVATORY 3.86m x 2.90m (12'8" x 9'6")
PVC double glazed with a PVC double glazed door giving access to the rear garden, a lean-to style roof and laminate flooring.

FIRST FLOOR LANDING
There is an access point in to the loft space, ceiling light, built-in cupboard and doors to bedrooms and bathroom.

BEDROOM 1 3.66m x 2.90m (12'0" x 9'6")
A large double bedroom it has a pvc double glazed window to the front, central heating radiator, coving, ceiling light and a large walk-in style wardrobe with hanging rail.

BEDROOM 2 2.69m x 2.59m (8'10" x 8'6")
This has a pvc double glazed window with an outlook to the rear, central heating radiator, coving and central ceiling light.

BEDROOM 3 2.59m x 1.83m (8'6" x 6")
This has a pvc double glazed window to the rear, central heating radiator laminate flooring, coving and a ceiling light.

BATHROOM
This is fitted with a white suite comprising of a shower style bath with shower over including a rainfall style shower head, wash hand basin inset into a vanity top with cupboards beneath and matching low flush wc. There is modern tiling to the walls, pvc double glazed window, vinyl flooring, inset spot lighting and extractor fan.

OUTSIDE
To the front of the property there is a large patterned concrete drive and parking.

REAR GARDEN
The rear garden is enclosed, designed for easier and lower maintenance with artificial grass, sitting areas and attractive flower borders.

AGENTS NOTES:
TENURE - Freehold

SERVICES - All mains services are connected.

DOUBLE GLAZING - PVC double glazing, where stated. Age of units TBC.

HEATING - Gas radiator central heating. Age of boiler TBC

COUNCIL TAX - Band B

BROADBAND - Ultrafast broadband is available with download speeds of up to 1800 mbps and upload speeds of up to 200 mbps.

MOBILE COVERAGE - Coverage is available with EE, Three, 02 and Vodafone.

VIEWING - By prior telephone appointment with horton knights estate agents.

MEASUREMENTS - Please note all measurements are approximate and for guidance purposes only, with a six inch tolerance. Therefore please do NOT rely upon them for carpet measurements, furniture and the like. Similarly, the floor plan is designed as a visual reference and is NOT a scale drawing.

PROPERTY PARTICULARS - We endeavour to make our property particulars accurate and reliable, however if there is a point that is especially important to you, please contact ourselves prior to exchange of contracts, so that we may further clarify that point. We DO NOT give any warranty to the suitability of any part, including fixtures and fittings of this property, prospective buyers are kindly asked to take specific advice from their professional advisors. Please note in this instance, the sellers (not horton knights) will charge offerors an admin fee of £49.00 plus VAT per person to conduct AML/ID checks.

OPENING HOURS - Monday - Friday 9:00 - 5:30 Saturday 9:00 - 3:00 Sunday www.hortonknights.co.uk

INDEPENDENT MORTGAGE ADVICE - With so many mortgage options to choose from, how do you know your getting the best deal? Quite simply...YOU DON'T. Talk to an expert. We offer uncomplicated impartial advice. Call us today: 01302 760322.

FREE VALUATIONS - If you need to sell a house then please take advantage of our FREE VALUATION service, contact our Doncaster Office (01302) 760322 for a prompt and efficient service.

Floor Plans

EPC

Request Further Details

Or arrange a viewing

Recent Blog Posts

Latest news and updates

Best Estate Agents Doncaster 30th September Sales

Best Estate Agents Doncaster

Who are the best estate agents Doncaster There are plenty of estate agents to choose from. Both high street estate…

Read More
Easter Opening Hours 6th April News

Easter Opening Hours

🐰Hoping everyone has an egg-stra special Easter.🐰 We are now closed from Good Friday through to Easter Monday. We will…

Read More