Search Properties

Daw Lane, Bentley, Doncaster

Doncaster

£110,000 Offers Over

3 x 1 x 1 x
Department:
Sales
Reference:
ES
Postcode:
DN5 0PD
Type:
Terraced House
Availability:
Sold STC
Receptions:
1
Tenure:
Freehold
Council Tax Band:
A

Summary

3 LARGE DOUBLE BEDROOMS TERRACED HOUSE / SPACIOUS ROOMS / MODERN KITCHEN / MODERN FIRST FLOOR BATHROOM / GF WC / PVC DOUBLE GLAZING / GCH / VIEWING RECOMMENDED TO APPRECIATE THE ACCOMMODATION ON OFFER //

Details

A very spacious and well presented 3 double bedrooms terraced house on this popular well established roadway. Perfect for a first time buyer or investor, it has a gas central heating system via a modern combination type boiler. PVC double glazing and comprises: Entrance hall, 2 reception rooms, a large fitted kitchen and a ground floor wc. On the first floor there are 3 bedrooms and a large 3 piece bathroom. All newly fitted carpets fitted on the stairs and bedrooms. Outside to the rear there is an enclosed courtyard garden with store, plus access onto a rear lane. Well placed with access to local amenities, including a local supermarket, shops and schools. EARLY VIEWING RECOMMENDED.

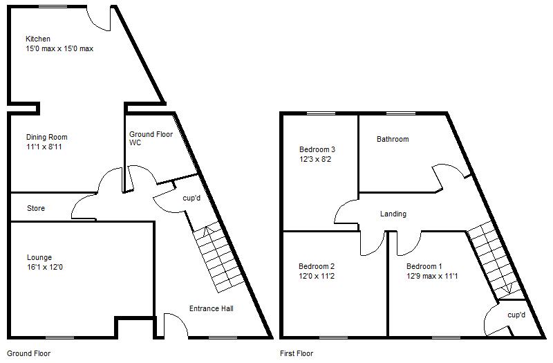
ACCOMMODATION
A new pvc door gives access through into the properties entrance hall.

HALLWAY
The hallway has laminate flooring, two large storage cupboards, central ceiling light, stairs leading to the first floor and doors off to the ground floor living accommodation.

DOWNSTAIRS WC
This comprises of a 2 piece white suite, low flush wc, wash hand basin, central heating radiator, vinyl style flooring and a central ceiling light.

LIVING ROOM 5.052 x 3.556 (16'6" x 11'7")
A bright light spacious room, front facing with a pvc double glazed window, central heating radiator and central ceiling light.

DINING KITCHEN 4.57m max x 4.57m max (15'0" max x 15'0" max)
The extended kitchen comprises of a smart range of high and low base wall units, integrated fridge and freezer, space for a washing machine, a four ring ceramic hob with an electric oven and a complimentary stainless steel chimney style extractor hood, splashback tiling and a black marble effect rolled work surface over, 1½ bowl stainless steel sink with matching mixer tap.
The dining area, again this is of a good size and has a pvc double glazed window, double glazed door leading to the rear of the property, slate effect tiled floor, central heating radiator and a central ceiling light.

FIRST FLOOR LANDING
This has a cupboard and doors leading to the bedrooms and family bathroom.

BATHROOM 2.330 x 1.772 (7'7" x 5'9" )
This comprises of a white 3 piece suite, low flush wc, wash hand basin and corner jacuzzi style bath, complimentary splashback tiling halfway on all four walls, laminate flooring, pvc double glazed window, central heating radiator and a central ceiling light.

BEDROOM 1 4.090 x 3.562 (13'5" x 11'8")
This is a really good size room and has a storage cupboard which houses the combination type boiler, pvc double glazed window, central heating radiator and a central ceiling light.

BEDROOM 2 FRONT 3.56 x 3.410 (11'8" x 11'2")
This is a really good size bedroom, pvc double glazed, central heating radiator and a central ceiling light.

BEDROOM 3 REAR 3.751 x 2.513 (12'3" x 8'2")
A good size second double bedroom with a pvc double glazed, central heating radiator and a central ceiling light.

OUTSIDE
To the front of the property there is a walled garden area with timber gates.

REAR GARDEN
This has a small courtyard area with a seating area.

AGENTS NOTES:
TENURE - FREEHOLD

SERVICES - All mains services are connected.

DOUBLE GLAZING - PVC double glazing, where stated. Age of units various.

HEATING - Gas radiator central heating. Age of boiler TBC.

COUNCIL TAX - Band A

BROADBAND - Ultrafast broadband is available with download speeds of up to 1800 mbps and upload speeds of up to 220 mbps.

MOBILE COVERAGE - Coverage is available with EE, Three, 02 and Vodafone.

VIEWING - By prior telephone appointment with horton knights estate agents.

MEASUREMENTS - Please note all measurements are approximate and for guidance purposes only, with a six inch tolerance. Therefore please do NOT rely upon them for carpet measurements, furniture and the like. Similarly, the floor plan is designed as a visual reference and is NOT a scale drawing.

PROPERTY PARTICULARS - We endeavour to make our property particulars accurate and reliable, however if there is a point that is especially important to you, please contact ourselves prior to exchange of contracts, so that we may further clarify that point. We DO NOT give any warranty to the suitability of any part, including fixtures and fittings of this property, prospective buyers are kindly asked to take specific advice from their professional advisors.

OPENING HOURS - Monday - Friday 9:00 - 5:30 Saturday 9:00 - 3:00 Sunday www.hortonknights.co.uk

INDEPENDENT MORTGAGE ADVICE - With so many mortgage options to choose from, how do you know your getting the best deal? Quite simply...YOU DON'T. Talk to an expert. We offer uncomplicated impartial advice. Call us today: 01302 760322.

FREE VALUATIONS - If you need to sell a house then please take advantage of our FREE VALUATION service, contact our Doncaster Office (01302) 760322 for a prompt and efficient service.

Floor Plans

EPC

Request Further Details

Or arrange a viewing

Recent Blog Posts

Latest news and updates

Best Estate Agents Doncaster 30th September Sales

Best Estate Agents Doncaster

Who are the best estate agents Doncaster There are plenty of estate agents to choose from. Both high street estate…

Read More
Easter Opening Hours 6th April News

Easter Opening Hours

🐰Hoping everyone has an egg-stra special Easter.🐰 We are now closed from Good Friday through to Easter Monday. We will…

Read More