Search Properties

Fern Close, Wheatley Hills, Doncaster

Doncaster

£175,000 Offers Over

3 x 1 x 1 x
Department:
Sales
Reference:
LJ/08 Fern Close
Postcode:
DN2 5PH
Type:
Semi-Detached House
Availability:
For Sale
Receptions:
1
Tenure:
Freehold
Council Tax Band:
B

Summary

1960'S BUILT SEMI-DETACHED HOUSE OFFERING PEACE AND TRANQUILITY IN THIS SORT AFTER LOCATION / 3 BEDROOMS / LOUNGE / OPEN PLAN L-SHAPED KITCHEN/DINING ROOM / 2 DOUBLE BEDROOMS AND A SINGLE / BATHROOM / GAS FIRED CENTRAL HEATING / PARTIAL DOUBLE GLAZING / GARAGE AND OFF STREET PARKING FOR SEVERAL CARS / FRONT AND REAR GARDENS / CLOSE TO AMENITIES / VIEWING HIGHLY RECOMMENDED //

Details

This 1960's built semi-detached house sits in this wonderful, peaceful, cul-de-sac in the sort after residential area of Wheatley Hills not far from Doncaster City Centre. The accommodation benefits from gas fired central heating, partial pvc double glazing and comprises: entrance hall, lounge, large open plan L-shaped dining kitchen, first floor landing, 3 bedrooms including 2 doubles and a good size single and a bathroom. Outside the property has front and rear gardens with a long driveway for several vehicles and a brick built garage. The location of the property offers peace and tranquility whilst at the same time being really well located for amenities in both Edenthorpe and the city centre including schools, bus routes supermarkets and a host of others. This is an excellent opportunity to purchase a sensibly priced home with no onward chain. Viewing is highly recommended.

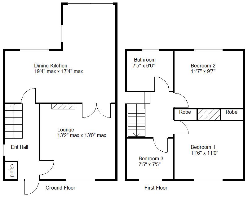
ACCOMMODATION
Timber and glazed door with single glaze side screen gives access to entrance hall.

ENTRANCE HALL
With built in original style cupboard, single glazed window to the side elevation, central heating radiator and wood style laminated flooring, stairs rising to the first floor and doors leading off to the ground floor accommodation.

LOUNGE 4.01m max x 3.96m max (13'2" max x 13'0" max)
Having a pvc double glazed window to the front, a double panel central heating radiator and a decorative fire surround incorporating a living flame gas fire with a marble style inset and hearth and wood style laminated flooring. Double timber and glazed doors to the right of the fireplace lead to an open plan L-shaped dining kitchen.

OPEN PLAN L-SHAPED DINING KITCHEN 5.89m max x 5.28m max (19'4" max x 17'4" max)
The kitchen area is finished with a range of cream coloured high gloss units with a block effect rolled edge work surface incorporating a one and half bowl stainless steel sink unit with mixer tap, an integrated electric fan assisted oven finished in brush stainless steel with a matching 4 ring gas hob and extractor hood above. There is space for further appliances including for a tall fridge/freezer and washing machine, wood style laminated flooring, spot lights inset to ceiling, 2 central heating radiators and a pvc double glazed window to the rear. A breakfast bar extends into the dining area which itself has been extended and has a newly fitted double panel radiator with single glazed window to the side and double glazed sliding patio doors giving access into the rear garden.

FIRST FLOOR LANDING
Single glazed window to the side elevation, access to the loft and doors leading off to the remaining accommodation.

BEDROOM 1 3.51m x 3.35m (11'6" x 11'0")
Having a pvc double glazed window to the front, double panel radiator and built-in wardrobe providing hanging rail and over head storage.

BEDROOM 2 3.53m x 2.92m (11'7" x 9'7")
This has a pvc double glazed window to the rear elevation, central heating radiator, wood style laminate flooring and built-in wardrobe.

BEDROOM 3 2.26m x 2.26m (7'5" x 7'5")
This is a good size for a third bedroom and has a pvc double glazed window to the front, central heating radiator and wood style laminated flooring.

BATHROOM 2.26m x 1.98m (7'5" x 6'6")
Having a white suite with low flush wc, pedestal wash hand basin and a panelled bath with wall mounted electric shower above, central heating radiator, spot lights to the ceiling and a pvc double glazed window to the rear.

OUTSIDE
To the front of the property there is a well kept open plan lawn with concrete driveway providing off street parking for several vehicles, the driveway leads to a timber gate which gives access on to the side of the property and onto the garage.

GARAGE
The garage has a metal up and over door to the front and is of brick construction.

REAR GARDEN
The rear garden is enclosed and is laid mainly to lawn with a selection of mature shrubs and bushes with some timber fencing to the boundary. There is an external wall with tap attached to the rear elevation of the house.

AGENTS NOTES:
TENURE - Freehold.

SERVICES - All mains services are connected.

DOUBLE GLAZING - PVC double glazing, where stated. Age of units various.

HEATING - Gas radiator central heating. Age of boiler...

COUNCIL TAX - Band B

BROADBAND - Ultrafast broadband is available with download speeds of up to 1800 mbps and upload speeds of up to 1000 mbps.

MOBILE COVERAGE - Coverage is available with EE, Three, 02 and Vodafone.

VIEWING - By prior telephone appointment with horton knights estate agents.

MEASUREMENTS - Please note all measurements are approximate and for guidance purposes only, with a six inch tolerance. Therefore please do NOT rely upon them for carpet measurements, furniture and the like. Similarly, the floor plan is designed as a visual reference and is NOT a scale drawing.

PROPERTY PARTICULARS - We endeavour to make our property particulars accurate and reliable, however if there is a point that is especially important to you, please contact ourselves prior to exchange of contracts, so that we may further clarify that point. We DO NOT give any warranty to the suitability of any part, including fixtures and fittings of this property, prospective buyers are kindly asked to take specific advice from their professional advisors.

OPENING HOURS - Monday - Friday 9:00 - 5:30 Saturday 9:00 - 3:00 Sunday www.hortonknights.co.uk

INDEPENDENT MORTGAGE ADVICE - With so many mortgage options to choose from, how do you know your getting the best deal? Quite simply...YOU DON'T. Talk to an expert. We offer uncomplicated impartial advice. Call us today: 01302 760322.

FREE VALUATIONS - If you need to sell a house then please take advantage of our FREE VALUATION service, contact our Doncaster Office (01302) 760322 for a prompt and efficient service.

Floor Plans

EPC

Request Further Details

Or arrange a viewing

Recent Blog Posts

Latest news and updates

Best Estate Agents Doncaster 30th September Sales

Best Estate Agents Doncaster

Who are the best estate agents Doncaster There are plenty of estate agents to choose from. Both high street estate…

Read More
Easter Opening Hours 6th April News

Easter Opening Hours

🐰Hoping everyone has an egg-stra special Easter.🐰 We are now closed from Good Friday through to Easter Monday. We will…

Read More