Search Properties

Glastonbury Gate, Cusworth, Doncaster

Doncaster

£260,000 Guide Price

4 x 2 x
Department:
Sales
Reference:
LJ/09 Glastonbury Gate
Type:
Semi-Detached House
Availability:
For Sale
Receptions:
2
Tenure:
Freehold
Council Tax Band:
B

Summary

****GUIDE PRICE £260,000 - £270,000****

EXTENDED 4 BEDROOM SEMI DETACHED HOUSE / WITH A LARGE SIDE & REAR EXTENSION / SOUTH FACING REAR GARDEN / FANTASTIC FAMILY HOUSE / LARGE CONTEMPORARY OPEN PLAN LIVING DINING KITCHEN / AMPLE OFF ROAD PARKING / VIEWING ESSENTIAL //

Details

An internal inspection is highly recommended to fully appreciate the space, style and layout of this large 4 bedroom semi detached house. With the benefit of a side & rear extension it makes a large very versatile family house. It has a gas central heating system, pvc double glazing and briefly comprises: Entrance hall, lounge, large open plan living/ dining/ kitchen, utility room, a further ground floor reception room which could be used a Bed 5 plus a shower room. On the first floor there is long landing with access to a full boarded storage loft, 4 bedrooms and a family bathroom. The rear enjoys a lovely garden with a South facing aspect, plus ample off road parking to the front. Very popular family area with access to local schools, shops etc plus access to the A1 and motorway networks.

ACCOMMODATION
A pvc double glazed entrance door leads into the properties entrance hall.

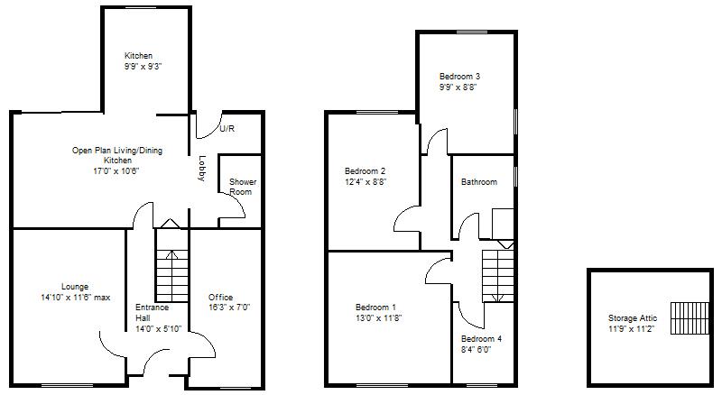
ENTRANCE HALL 4.27m x 1.78m max (14'0" x 5'10" max)
The entrance hall has a staircase to the first floor accommodation with a spindled banister rail, parkay style flooring, coving, ceiling light and a tall built-in storage cupboard.

FRONT FACING LOUNGE 4.52m x 3.51m (14'10" x 11'6")
This is an attractive and a good size room, it has a broad pvc double glazed window to the front, central heating radiator, coving and a ceiling light.

OPEN PLAN LIVING/DINING KITCHEN 7.32m x 4.22m (24'0" x 13'10")
This is probably better demonstrated by the floor plan and photographs. It has a pvc double glazed, sliding patio door which gives access directly into the garden, there are 2 contemporary tall radiators, modern laminate flooring, coving and 2 ceiling lights. This opens directly into the kitchen which has been refitted with a range of modern high and low level units finished with a high gloss cabinet door, a contrasting work surface and acrylic splashback. There is a single drainer 1½ bowl stainless steel sink unit with a mixer tap. There is also a deep recess suitable for a range style cooker with an extractor hood above and further domestic appliances recesses. From the kitchen a door gives access into a side lobby for which gives access into the utility room.

UTILITY AREA
This has plumbing for an automatic washing machine, there is room for a tumble dryer, additional storage, pvc double glazed window and a pvc double glazed exterior door. There is a tiled floor covering and 2 ceiling lights. A further good leads into a ground floor shower room.

SHOWER ROOM/WC
This is fitted with modern white suite which comprises of a low flush wc, wash hand basin and a shower enclosure with a mains plumbed thermostatic shower.

HOME OFFICE/GROUND FLOOR BEDROOM 4.95m x 2.01m (16'3" x 6'7")
This is a particularly good size, it has a pvc double glazed window to the front, central heating radiator, built-in understairs storage cupboard, an access point into the loft space and a ceiling light.

FIRST FLOOR LANDING
From here there is a pvc double glazed window to the side, a built-in cupboard which houses a gas fired combination type boiler which supplies the domestic hot water and central heating systems, ceiling light, smoke alarm and a staircase up into a storage attic.

STORAGE ATTIC 3.58m x 3.40m (11'9" x 11'2")
This is all boarded, plaster boarded and lined, light laid on making a perfect storage area.

BEDROOM 1 3.96m x 3.35m[2.44m (13'0" x 11'[8")
This is a large front facing double bedroom, it has a broad pvc double glazed window to the front, central heating radiator, central ceiling light and feature reading lights.

BEDROOM 2 3.76m x 2.64m (12'4" x 8'8")
This has a pvc double glazed window to the rear, central heating radiator and a central ceiling light.

BEDROOM 3 2.97m x 2.64m (9'9" x 8'8")
Again, this has a pvc double glazed window to the rear, central heating radiator and a central ceiling light.

BEDROOM 4 2.54m x 1.83m (8'4" x 6'0")
This is single size bedroom has a pvc double glazed window to the front, central heating radiator,a built-in storage over the stairs bulk and a ceiling light.

HOUSE BATHROOM
This is fitted with a white suite that comprises of a panelled bath, pedestal wash hand basin and a low flush wc. There is tiling to the 4 walls with a decorative dado tile, independent electric shower over the bath with a glazed shower screen, a contemporary style towel rail/radiator, pvc double glazed window, waterproof style ceiling and a central ceiling light.

OUTSIDE
To the front of the property there is an enclosed garden, this has a double width driveway which provides car standing for two car side by side with further decorative side garden etc.

REAR GARDEN
This is all nicely enclosed, it has concrete post and timber fencing to the perimeters, it enjoys a Southerly aspect. There is a paved patio extending across the rear elevation, lawns onto a cultivated flower garden where there are additional storage timber sheds.

AGENTS NOTES:
TENURE - FREEHOLD

SERVICES - All mains services are connected.

DOUBLE GLAZING - PVC double glazing, where stated. Age of units various.

HEATING - Gas radiator central heating system via a combination type boiler. Age of boiler 2024

COUNCIL TAX - Band B

BROADBAND - Ultrafast broadband is available with download speeds of up to 1800 mbps and upload speeds of up to 220 mbps.

MOBILE COVERAGE - Coverage is available with EE, Three, 02 and Vodafone.

VIEWING - By prior telephone appointment with horton knights estate agents.

MEASUREMENTS - Please note all measurements are approximate and for guidance purposes only, with a six inch tolerance. Therefore please do NOT rely upon them for carpet measurements, furniture and the like. Similarly, the floor plan is designed as a visual reference and is NOT a scale drawing.

PROPERTY PARTICULARS - We endeavour to make our property particulars accurate and reliable, however if there is a point that is especially important to you, please contact ourselves prior to exchange of contracts, so that we may further clarify that point. We DO NOT give any warranty to the suitability of any part, including fixtures and fittings of this property, prospective buyers are kindly asked to take specific advice from their professional advisors.

OPENING HOURS - Monday - Friday 9:00 - 5:30 Saturday 9:00 - 3:00 Sunday www.hortonknights.co.uk

INDEPENDENT MORTGAGE ADVICE - With so many mortgage options to choose from, how do you know your getting the best deal? Quite simply...YOU DON'T. Talk to an expert. We offer uncomplicated impartial advice. Call us today: 01302 760322.

FREE VALUATIONS - If you need to sell a house then please take advantage of our FREE VALUATION service, contact our Doncaster Office (01302) 760322 for a prompt and efficient service.

Floor Plans

EPC

Request Further Details

Or arrange a viewing

Recent Blog Posts

Latest news and updates

Best Estate Agents Doncaster 30th September Sales

Best Estate Agents Doncaster

Who are the best estate agents Doncaster There are plenty of estate agents to choose from. Both high street estate agents and…

Read More
Easter Opening Hours 6th April News

Easter Opening Hours

🐰Hoping everyone has an egg-stra special Easter.🐰 We are now closed from Good Friday through to Easter Monday. We will open as…

Read More