Search Properties

Granby Crescent, Bennetthorpe, Doncaster

Doncaster

£265,000 Offers Over

4 x 2 x
Department:
Sales
Reference:
LJ
Type:
Semi-Detached House
Availability:
For Sale
Receptions:
1
Tenure:
Freehold
Council Tax Band:
B

Summary

A UNIQUE 4/5 BEDROOM EXTENDED SEMI DETACHED HOUSE / VERSATILE LAYOUT WITH A GROUND FLOOR BEDROOM OR STUDIO ROOM / COULD SUPPORT MULTI GENERATIONAL LIVING / HAIR STYLIST OR SIMILAR, SUBJECT TO CONSENTS / EXTENDED KITCHEN & CONSERVATORY / INTERNAL VIEWING ESSENTIAL//

Details

An exceptional 4/5 bedroom semi detached house, located on this attractive roadway in Bennetthorpe, all within walking of the city centre. The house offers space in abundance, extended over the years to offer some 200m2 of very versatile living. It has a gas central heating system, pvc double glazing and briefly comprises: Entrance hall, lounge, open plan dining kitchen, conservatory and a utility room plus an annexe to the side creating additional living space with an en-suite shower room off. Could suit hair stylist or similar or support multi generational living. First floor landing, 3 bedrooms and a bathroom plus a spiral staircase to a top floor bedroom 4. Outside are smallish gardens, a large store, and off road parking if preferred. Very popular location with access to the city centre, Lakeside retail and leisure, plus major road networks. PRICED TO SELL, EARLY VIEWING ESSENTIAL.

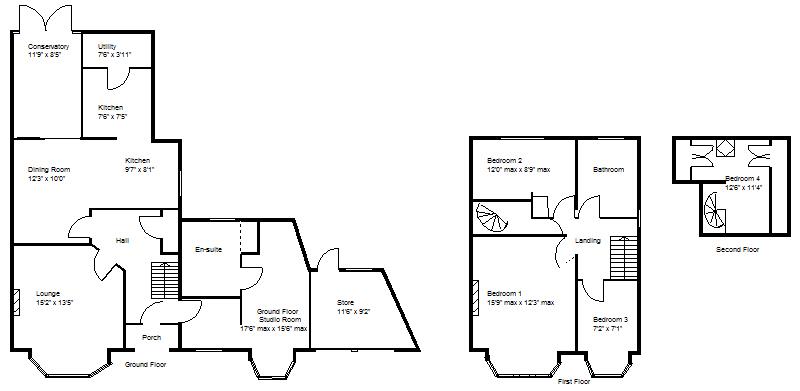
ACCCOMMODATION
A decorative brick portico gives shelter to a double glazed entrance door which leads into the property’s entrance hall.

ENTRANCE HALL
This has an exposed timber staircase with a glass balustrade, coordinating real wood flooring, radiator behind a radiator grill, ceiling light, smoke alarm, a deep built-in understairs storage cupboard.

LOUNGE 4.62m max x 4.09m max (15'2" max x 13'5" max)
This is an attractive front facing reception room, it has a broad pvc double glazed bay window to the front, a feature period style fireplace with log burner inset onto a paved slab, a continuation of the real wood flooring, double panelled central heating radiator, central ceiling light and matching wall lights.

OPEN PLAN DINING KITCHEN 6.02m max x 5.99m max (19'9" max x 19'8" max)
The open plan kitchen benefits from an extension, creating a ā€˜L’ shaped room it has a pvc double glazed window to the side, a range of fitted cabinets with a work surface over. Within the kitchen area there is a tiled floor covering and the dining area has a continuation of the real wood flooring, two central heating radiators, 1½ bowl composite style sink, a range style cooker with an extractor hood above, plus an integrated dishwasher, inset spotlighting to the ceiling and door to a utility room.

CONSERVATORY 3.58m x 2.57m (11'9" x 8'5")
This gives access into the rear garden, it has a radiator behind a decorative cover and laminate flooring.

From the entrance hall a door leads to;

UTILITY ROOM 2.29m x 1.19m (7'6" x 3'11")
This has a wall mounted gas fired combination type boiler which supplies domestic hot water and central heating systems. It also has space and plumbing for a washing machine, tumble dryer etc.

GROUND FLOOR STUDIO ROOM 5.33m max x 5.28m max (17'6" max x 17'4" max)
This has been used as a bedroom but could easily be used as a playroom, additional sitting room, or even a hairstylists studio (subject to any consents, enquire with Doncaster City Council) . The room has en-suite facilities along with a pvc double glazed window, central heating radiator, real wood flooring, inset spotlighting.

EN-SUITE SHOWER ROOM
This has a walk-in shower enclosure, wash basin and low flush wc inset to bathroom furniture plus a timber framed sauna cabinet.

FIRST FLOOR LANDING
This has a matching glass balustrade with an exposed timber banister rail, pvc double glazed window, central heating radiator and doors to the bedrooms and bathroom. From the landing there is a spiral staircase which gives access up into Bedroom 4

BEDROOM 1 4.80m max x 3.73m max (15'9" max x 12'3" max)
This is a large double bedroom, it has a broad pvc double glazed window to the front, central heating radiator, a range of fitted cabinets spanning the length of one wall, and real wood flooring.

BEDROOM 2 3.66m max x 2.67m max (12'0" max x 8'9" max)
This has a pvc double glazed window to the rear, central heating radiator, fitted wardrobes, ceiling light and real wood flooring.

BEDROOM 3 2.18m x 2.13m (7'2" x 7'0")
There is a pvc double glazed window to the front, central heating radiator, real wood flooring and wall lights.

BATHROOM
This has a modern 3 piece suite comprising of a shower style bath with shower over, wash basin inset to a vanity unit with further fitted bathroom furniture including open shelving and a low flush wc. There are 2 pvc double glazed windows, extractor fan, mains plug, shower with a rainfall style shower head, inset spotlighting to the ceiling and a contemporary towel rail/radiator.

BEDROOM 4 3.81m max x 3.45m max (12'6" max x 11'4" max)
This has two double glazed velux windows, 2 ceiling lights, central heating radiator and eaves storage.

OUTSIDE
To the front of the property there is a walled garden, a dropped kerb gives access to a pebbled frontage which provides off road parking. It should be noted there is unrestricted street parking as well.
To the rear there is an enclosed courtyard style garden.

STORE ROOM
Attached brick store with a roller shutter door, a personnel door into the rear garden.

AGENTS NOTES:
TENURE - Freehold

SERVICES - All mains services are connected.

DOUBLE GLAZING - PVC double glazing, where stated. Age of units various.

HEATING - Gas radiator central heating system via a combination type boiler. Age of boiler TBC.

COUNCIL TAX - Band B

BROADBAND - Ultrafast broadband is available with download speeds of up to 1800 mbps and upload speeds of up to 1000 mbps.

MOBILE COVERAGE - Coverage is available with EE, Three, 02 and Vodafone.

VIEWING - By prior telephone appointment with horton knights estate agents.

MEASUREMENTS - Please note all measurements are approximate and for guidance purposes only, with a six inch tolerance. Therefore please do NOT rely upon them for carpet measurements, furniture and the like. Similarly, the floor plan is designed as a visual reference and is NOT a scale drawing.

PROPERTY PARTICULARS - We endeavour to make our property particulars accurate and reliable, however if there is a point that is especially important to you, please contact ourselves prior to exchange of contracts, so that we may further clarify that point. We DO NOT give any warranty to the suitability of any part, including fixtures and fittings of this property, prospective buyers are kindly asked to take specific advice from their professional advisors.

OPENING HOURS - Monday - Friday 9:00 - 5:30 Saturday 9:00 - 3:00 Sunday www.hortonknights.co.uk

INDEPENDENT MORTGAGE ADVICE - With so many mortgage options to choose from, how do you know your getting the best deal? Quite simply...YOU DON'T. Talk to an expert. We offer uncomplicated impartial advice. Call us today: 01302 760322.

FREE VALUATIONS - If you need to sell a house then please take advantage of our FREE VALUATION service, contact our Doncaster Office (01302) 760322 for a prompt and efficient service.

Floor Plans

EPC

Request Further Details

Or arrange a viewing

Recent Blog Posts

Latest news and updates

Best Estate Agents Doncaster 30th September Sales

Best Estate Agents Doncaster

Who are the best estate agents Doncaster There are plenty of estate agents to choose from. Both high street estate agents and…

Read More
Easter Opening Hours 6th April News

Easter Opening Hours

🐰Hoping everyone has an egg-stra special Easter.🐰 We are now closed from Good Friday through to Easter Monday. We will open as…

Read More