Search Properties

Grenville Road, Balby, Doncaster

Doncaster

£170,000 Guide Price

3 x 1 x
Department:
Sales
Reference:
FH/NM
Type:
Semi-Detached House
Availability:
Sold STC
Receptions:
1
Tenure:
Freehold
Council Tax Band:
B

Summary

***GUIDE PRICE £170,000 - £180,000***

3 BEDROOM SEMI DETACHED HOUSE / NOT OVERLOOKED FROM THE REAR / REAR GARDEN ROOM TYPE EXTENSION / OFF ROAD PARKING / GCH/ DG/ OWNED SOLARS/ 3 GOOD SIZED BEDROOMS / POPULAR ROADWAY / NO CHAIN/ VIEWING ESSENTIAL //

Details

Enjoying a favourable position on this popular roadway, not overlooked from the rear a good sized 3 bedroom semi detached house with a garden room style extension to the rear. It has a gas central heating system, double glazing and owned solar panels. The accommodation briefly comprises: Entrance porch., into a larger entrance hall, open plan lounge and dining room, garden room, fitted breakfast kitchen, first floor landing, 3 bedrooms, bathroom and a separate wc. outside are good sized gardens, the rear feels very private as not overlooked, side driveway, and car port parking. Good access to Doncaster City centre the A1 and motorway networks. CHAIN FREE. EARLY VIEWING ESSENTIAL.

ACCOMMODATION
A pvc double glazed door leads into the entrance porch, this has pvc double glazing, a central heating radiator and a timber casement door which leads into the property's hall.

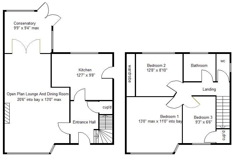
ENTRANCE HALL 2.67m x 2.57m (8'9" x 8'5")
This has a staircase to the first floor accommodation with a built in understairs storage cupboard, a central heating radiator, ceiling light and door to:

LARGE OPEN PLAN LOUNGE & DINING ROOM 6.15m max x 3.96m max (20'2" max x 13'0" max)
This has a timber casement double glazed bay window to the front, a feature stone fireplace with a gas fire inset, 2 central heating radiators, coving and 2 ceiling lights. A door from here leads into a garden room.

GARDEN ROOM 2.97m x 2.84m (9'9" x 9'4")
This is pvc double glazed, it has modern laminate flooring, a wall mounted heater, 2 wall lights and pvc double glazed double opening doors which lead onto the property's rear garden.

KITCHEN 3.66m max x 2.69m max (12'0" max x 8'10" max )
This is fitted with a range of high and low level units to include a 4 ring electric hob, integrated double oven, deep recess suitable for a tall fridge freezer, plumbing for an automatic washing machine, single drainer 1½ bowl stainless steel sink unit and a work surface with coordinating breakfast bar. There is a timber casement door, a double panelled central heating radiator, tiling to 4 walls and a ceiling light.

FIRST FLOOR LANDING
Pvc double glazed window to the side, an access point into the loft space, central ceiling light and doors to bedrooms and bathroom.

BEDROOM 1 3.96m x 3.35m (13'0" x 11'0")
A large double room, it has a timber casement double glazed bay window to the front, fitted wardrobes concealing hanging rail and storage with ceiling to floor sliding doors, a central heating radiator and a ceiling light.

BEDROOM 2 3.86m x 2.69m (12'8" x 8'10")
This is a good size second double room, it has a timber casement double glazed window to the rear, central heating radiator, coving, fitted wardrobes and matching bedroom furniture.

BEDROOM 3 2.82m x 1.98m (9'3" x 6'6")
A comfortable sized single bedroom, it has timber casement double glazed window to the front, central heating radiator, coving, a deep built-in wardrobe style cupboard and a central heating radiator.

HOUSE BATHROOM
This is fitted with a white suite comprising of panelled bath, wash basin set on a vanity top, single panel central heating radiator, laminate flooring, timber casement double glazed window.

SEPARATE WC
This has a low flush wc, pvc double glazed window, laminate floor and a central ceiling light.

OUTSIDE
To the front of the property there are attractive gardens, the front is well laid out and well stocked with a good variety of maturing shrubs and plants providing a good variety of colour during the Summer months. The side drive provides car standing and leads to a car port which continues along the side of the property and in turn leads to the rear garden.

REAR GARDEN
This has fencing to the perimeters, again well stocked with a good variety of maturing shrubs and plants. There is a large paved patio and sitting area to the centre of the garden, it should be noted the rear enjoys a more outlook over fields, and therefore feels very private.

AGENTS NOTES:
TENURE - FREEHOLD.

SERVICES - All mains services are connected.

DOUBLE GLAZING - Timber casement & PVC double glazed windows. Age of units various.

HEATING - Gas radiator central heating. Age of boiler TBC.

SOLAR PANELS - Owned outright with ownership and feed in tariff passing to the buyer.

COUNCIL TAX - Band B

BROADBAND - Ultrafast broadband is available with download speeds of up to 1800 mbps and upload speeds of up to 1000 mbps.

MOBILE COVERAGE - Coverage is available with EE, Three, 02 and Vodafone.

VIEWING - By prior telephone appointment with horton knights estate agents.

MEASUREMENTS - Please note all measurements are approximate and for guidance purposes only, with a six inch tolerance. Therefore please do NOT rely upon them for carpet measurements, furniture and the like. Similarly, the floor plan is designed as a visual reference and is NOT a scale drawing.

PROPERTY PARTICULARS - We endeavour to make our property particulars accurate and reliable, however if there is a point that is especially important to you, please contact ourselves prior to exchange of contracts, so that we may further clarify that point. We DO NOT give any warranty to the suitability of any part, including fixtures and fittings of this property, prospective buyers are kindly asked to take specific advice from their professional advisors.

OPENING HOURS - Monday - Friday 9:00 - 5:30 Saturday 9:00 - 3:00 Sunday www.hortonknights.co.uk

INDEPENDENT MORTGAGE ADVICE - With so many mortgage options to choose from, how do you know your getting the best deal? Quite simply...YOU DON'T. Talk to an expert. We offer uncomplicated impartial advice. Call us today: 01302 760322.

FREE VALUATIONS - If you need to sell a house then please take advantage of our FREE VALUATION service, contact our Doncaster Office (01302) 760322 for a prompt and efficient service.

Floor Plans

Request Further Details

Or arrange a viewing

Recent Blog Posts

Latest news and updates

Best Estate Agents Doncaster 30th September Sales

Best Estate Agents Doncaster

Who are the best estate agents Doncaster There are plenty of estate agents to choose from. Both high street estate agents and…

Read More
Easter Opening Hours 6th April News

Easter Opening Hours

🐰Hoping everyone has an egg-stra special Easter.🐰 We are now closed from Good Friday through to Easter Monday. We will open as…

Read More