Search Properties

Hill Top Crescent, Doncaster

Doncaster

£210,000

3 x 2 x 3 x
Department:
Sales
Reference:
ES
Postcode:
DN2 5SX
Type:
Semi-Detached House
Availability:
Sold STC
Receptions:
3
Tenure:
Freehold
Council Tax Band:
B

Summary

EXTENDED 3 BEDROOM SEMI DETACHED HOUSE / LARGE REAR GARDEN / OFF ROAD PARKING & GARAGE / EXTENDED GROUND FLOOR / LOVELY CUL DE SAC POSITION / VIEWING ESSENTIAL //

Details

This extended 3 bedroom semi detached house has a large rear garden and is perfect for a family or keen gardener. The extension is to the ground floor and creates a larger living room and a utility/ ground floor wc. It has a gas radiator central heating system, pvc double glazing and comprises: Entrance hall, lounge, extended living/ dining room, fitted kitchen, utility & GFWC plus a side lobby. On the first floor there are 3 bedrooms and a bathroom. Outside there is off road parking to the front, a garage to the side and a large rear garden. All well placed in this very desirable residential area with good access to amenities and therefore early viewing is recommended.

ACCOMMDATION
A brick portico gives shelter to a pvc double glazed entrance door with matching side screens.

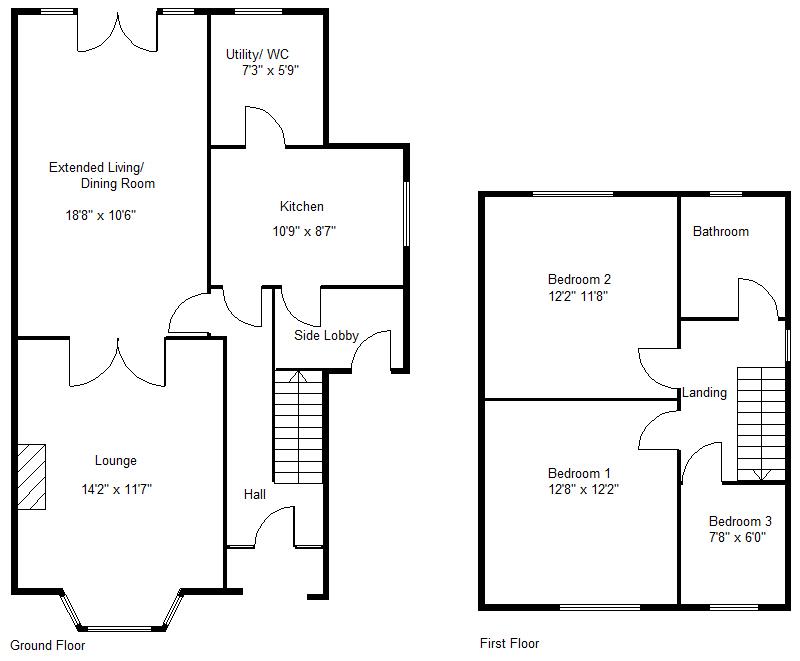
ENTRANCE HALL 4.14m x 1.83m (13'7" x 6'0")
This is all smartly finished, it has a traditional staircase with LED feature lighting, coving, a ceiling light, panelling to half wall height and a modern laminate floor covering.

LOUNGE 4.32m x 3.53m (14'2" x 11'7")
An attractive reception room, it has a deep pvc double glazed bay window to the front, a feature fireplace with a living flame gas fire inset, coving to the ceiling, a central ceiling light and a double panel central heating radiator. There are double doors which lead into a separate extended living/ dining room.

EXTENDED LIVING/ DINING ROOM 5.69m x 3.20m (18'8" x 10'6")
This is a particularly good size, it has been extended over the years. It has two pvc double glazed double opening doors which lead out into the property's rear garden. There is a continuation of the laminate flooring, coving, 2 ceiling lights, a double panel central heating radiator. This room can be accessed also independently from the entrance hall.

KITCHEN 3.28m x 2.62m (10'9" x 8'7" )
This is fitted with a range of high and low level units finished with an oak fronted cabinet door, a contrasting work surface with a composite style sink with mixer tap. There is a recess suitable for a gas cooker, plumbing and space for a dishwasher, a pvc double glazed window to the side, vinyl flooring and tiling.

UTILITY/ WC 2.21m x 1.75m (7'3" x 5'9")
This is a useful space. It has plumbing for an automatic washing machine, room for a tumble dryer over the top. There is a central heating radiator, a floor standing gas fired boiler which supplies the domestic hot water and central heating systems. There is also a fitted low flush wc, and wash basin inset to the bathroom furniture, a ceiling light and a continuation of the vinyl flooring.

SIDE LOBBY 1.93m x 1.09m (6'4" x 3'7")
This has a pvc double glazed exterior door, a ceiling light and vinyl floor covering.

FIRST FLOOR LANDING
This has a central ceiling light, coving to the ceiling, panelling to half wall height, built-in cupboard over the top of the stair bulkhead and doors to bedrooms and bathroom.

BEDROOM 1 FRONT 3.86m x 3.56m (12'8" x 11'8")
A large double bedroom, it has a pvc double glazed window to the front, a range of fitted wardrobes and bedroom furniture, a ceiling light and coving.

BEDROOM 2 REAR 3.71m x 3.56m (12'2" x 11'8")
A good size second double bedroom, it has a pvc double glazed window to the rear, a central heating radiator, coving and ceiling light.

BEDROOM 3 2.34m x 1.83m (7'8" x 6'0")
It single sized bedroom, it has a pvc double glazed window to the front, a central heating radiator, access point into the loft space and a ceiling light.

HOUSE BATHROOM
This is fitted with a suite that comprises of a panelled bath with a mixer shower over and separate electric shower, pedestal wash hand basin and a low flush wc. There is vinyl flooring, double panel central heating radiator, pvc double glazed window and a ceiling light.

OUTSIDE
The property stands on a good sized plot, it actually opens and gets wider towards the rear creating a large garden. The front has been block paved to provide car parking for two cars side by side. There is an access down the side of the property which leads into the garage and rear garden.

GARAGE
There is a side drive which continues to a sectional garage which has a metal up and over door, personnel side door and a timber casement window, perfect for storage of bicycles, motorbikes etc.

REAR GARDEN
This is a good size, as it gets wider to the rear, great for families. It has fencing to the perimeters, it is principally lawned, with a paved patio and sitting area, external lighting and external water.

AGENTS NOTES:
TENURE - FREEHOLD.

SERVICES - All mains services are connected.

DOUBLE GLAZING - PVC double glazing, where stated. Age of units various TBC.

HEATING - Gas radiator central heating. Age of boiler TBC.

COUNCIL TAX - Band B

BROADBAND - Ultrafast broadband is available with download speeds of up to 1800 mbps and upload speeds of up to 1000 mbps.

MOBILE COVERAGE - Coverage is available with EE, Three, 02 and Vodafone.

VIEWING - By prior telephone appointment with horton knights estate agents.

MEASUREMENTS - Please note all measurements are approximate and for guidance purposes only, with a six inch tolerance. Therefore please do NOT rely upon them for carpet measurements, furniture and the like. Similarly, the floor plan is designed as a visual reference and is NOT a scale drawing.

PROPERTY PARTICULARS - We endeavour to make our property particulars accurate and reliable, however if there is a point that is especially important to you, please contact ourselves prior to exchange of contracts, so that we may further clarify that point. We DO NOT give any warranty to the suitability of any part, including fixtures and fittings of this property, prospective buyers are kindly asked to take specific advice from their professional advisors.

OPENING HOURS - Monday - Friday 9:00 - 5:30 Saturday 9:00 - 3:00 Sunday www.hortonknights.co.uk

INDEPENDENT MORTGAGE ADVICE - With so many mortgage options to choose from, how do you know your getting the best deal? Quite simply...YOU DON'T. Talk to an expert. We offer uncomplicated impartial advice. Call us today: 01302 760322.

FREE VALUATIONS - If you need to sell a house then please take advantage of our FREE VALUATION service, contact our Doncaster Office (01302) 760322 for a prompt and efficient service.

Floor Plans

Request Further Details

Or arrange a viewing

Recent Blog Posts

Latest news and updates

Best Estate Agents Doncaster 30th September Sales

Best Estate Agents Doncaster

Who are the best estate agents Doncaster There are plenty of estate agents to choose from. Both high street estate…

Read More
Easter Opening Hours 6th April News

Easter Opening Hours

🐰Hoping everyone has an egg-stra special Easter.🐰 We are now closed from Good Friday through to Easter Monday. We will…

Read More