Search Properties

Leinster Avenue, Doncaster

Doncaster

£235,000

3 x 1 x
Department:
Sales
Reference:
LK
Type:
Semi-Detached House
Availability:
For Sale
Receptions:
1
Tenure:
Freehold
Council Tax Band:
B

Summary

EXTENDED 3 BEDROOM SEMI DETACHED HOUSE / IMMACULATE CONDITION THROUGHOUT / EXTENDED MODERN KITCHEN WITH APPLIANCES / CONTEMPORARY WHITE BATHROOM WITH SHOWER / WIDER DRIVEWAY WITH LARGE GARAGE TO THE REAR / VERY POPULAR LOCATION / NO UPWARD CHAIN / EARLY VIEWING ESSENSTIAL //

Details

Located in this popular residential area, close to the hospital, an extended 3 bedroom semi detached house. The property is pristine inside and finished with modern decor to include oak interior doors, a beautiful oak kitchen with granite work surfaces and a modern gas radiator central heating system, pvc double glazing and briefly comprises: Entrance hall with stairs to first floor, lounge with a feature bay window, extended dining room, extended breakfast kitchen with a range style cooker. First floor landing, 3 good sized bedrooms and a modern contemporary white bathroom with shower. Outside are good size gardens, a long driveway to a large detached garage. This is a popular residential area with easy access to local amenities including local shops and schools. Motivated Seller. EARLY VIEWING RECOMMENDED.

ACCOMMODATION
A composite double glazed entrance door leads into the property’s entrance hall.

ENTRANCE HALL
Finished with a feature ā€˜oak and glass’ staircase giving access to the first floor, a pvc double glazed window to the side, modern laminate flooring, central heating radiator concealed behind a radiator grill, smoke alarm, ceiling light and an oak interior door which can found throughout the remainder of the property leads through into a front facing lounge.

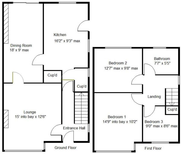
FRONT FACING LOUNGE 4.57m max x 3.81m max (15'0" max x 12'6" max)
An attractive and good size room which has a broad pvc double glazed bay window to the front, a feature fireplace with a gas fire inset, central heating radiator, coving, central ceiling light and a door giving access into a now extended dining room.

EXTENDED DINING ROOM 5.49m x 2.74m max (18'0" x 9'0" max)
This is a particularly good size, it has a high level double glazed velux window, further pvc double glazed, double opening doors, inset spotlighting to the ceiling, central heating radiator and a door leading into the extended kitchen.

EXTENDED KITCHEN 4.93m max x 2.82m max (16'2" max x 9'3" max)
Absolutely immaculate and finished with a range of modern high and low level units fronted with an oak cabinet door and a contrasting diamante style granite work surface. An inset 1½ bowl stainless steel sink unit with a mixer tap, a deep recess suitable for a range style cooker with an extractor hood above. Further integrated appliances include a dishwasher and a fridge freezer. The work surface extends provide a breakfast bar. A recess with plumbing for an automatic washing machine, two pvc double glazed windows, a high level velux window, a tall contemporary style radiator, inset spotlighting to a waterproof style ceiling and a deep storage cupboard which has tiling, shelving and light laid on.

As previously described the staircase from the entrance hall leads to the first floor landing.

FIRST FLOOR LANDING
There is an oak and glass balustrade, a pvc double glazed window, an access point into the loft space and doors to the bedrooms and bathroom.

BEDROOM 1 4.50m max x 3.10m max (14'9" max x 10'2" max)
This is a large double bedroom, it has a range of fitted bedroom furniture including matching bedside cabinets, a pvc double glazed bay window to the front, double panel central heating radiator, coving and a central ceiling light.

BEDROOM 2 3.84m max x 2.95m max (12'7" max x 9'8" max)
This is a good size second double bedroom which has a pvc double glazed window with an outlook to the rear, central heating radiator, coving and a ceiling light.

BEDROOM 3 2.74m x 2.59m (9'0" x 8'6")
A comfortable third bedroom as evidence by the room measurements. There is a pvc double glazed window to the front, central heating radiator, built-in storage over the stair bulkhead, coving and a ceiling light.

HOUSE BATHROOM
This is all beautifully finished with a contemporary style white suite that comprises of a shower style bath with a mixer shower over, wash basin inset into a floating vanity unit and a low flush wc. There are two pvc double glazed windows, contemporary style chrome radiator/towel rail, an extractor fan, vinyl flooring and inset spotlighting to a waterproof ceiling.

OUTSIDE
The property stands on an attractive end plot, therefore slightly wider than average. To the front there is a dropped kerb which gives access onto a a wide side drive which continues along the side of the property and leads to a large detached garage with an up and over door, power and light laid on. There is an artificial lawn, fencing and brick walling to the front perimeter.

REAR GARDEN
The rear garden enjoys a South Westerly aspect and is all nicely enclosed, there is concrete post and timber fencing to the perimeters, an artificial lawn with block paved patio and sitting areas along with a useful timber shed.

AGENTS NOTES:
TENURE - FREEHOLD, further details are available from the selling agent.

SERVICES - All mains services are connected.

DOUBLE GLAZING - PVC double glazing, where stated. Age of units TBC.

HEATING - Gas radiator central heating system via a combination type boiler. Age of boiler TBC.

COUNCIL TAX - Band B.

BROADBAND - Ultrafast broadband is available with download speeds of up to 1800 mbps and upload speeds of up to 1000 mbps.

MOBILE COVERAGE - Coverage is available with EE, Three, 02 and Vodafone.

VIEWING - By prior telephone appointment with horton knights estate agents.

MEASUREMENTS - Please note all measurements are approximate and for guidance purposes only, with a six inch tolerance. Therefore please do NOT rely upon them for carpet measurements, furniture and the like. Similarly, the floor plan is designed as a visual reference and is NOT a scale drawing.

PROPERTY PARTICULARS - We endeavour to make our property particulars accurate and reliable, however if there is a point that is especially important to you, please contact ourselves prior to exchange of contracts, so that we may further clarify that point. We DO NOT give any warranty to the suitability of any part, including fixtures and fittings of this property, prospective buyers are kindly asked to take specific advice from their professional advisors.

OPENING HOURS - Monday - Friday 9:00 - 5:30 Saturday 9:00 - 3:00 Sunday www.hortonknights.co.uk

INDEPENDENT MORTGAGE ADVICE - With so many mortgage options to choose from, how do you know your getting the best deal? Quite simply...YOU DON'T. Talk to an expert. We offer uncomplicated impartial advice. Call us today: 01302 760322.

FREE VALUATIONS - If you need to sell a house then please take advantage of our FREE VALUATION service, contact our Doncaster Office (01302) 760322 for a prompt and efficient service.

Floor Plans

EPC

Request Further Details

Or arrange a viewing

Recent Blog Posts

Latest news and updates

Best Estate Agents Doncaster 30th September Sales

Best Estate Agents Doncaster

Who are the best estate agents Doncaster There are plenty of estate agents to choose from. Both high street estate agents and…

Read More
Easter Opening Hours 6th April News

Easter Opening Hours

🐰Hoping everyone has an egg-stra special Easter.🐰 We are now closed from Good Friday through to Easter Monday. We will open as…

Read More