Search Properties

Lonsdale Avenue, Intake, Doncaster

Doncaster

£140,000

3 x 1 x
Department:
Sales
Reference:
LJ
Type:
End of Terrace House
Availability:
For Sale
Receptions:
1
Tenure:
Freehold
Council Tax Band:
A

Summary

3 BEDROOM END TOWN HOUSE / EXCELLENT GARDENS WITH AMPLE PARKING / SPACIOUS ROOMS / MODERN KITCHEN WITH INTEGRATED APPLIANCES / 3 LARGE BEDROOMS / LOVELY ASPECT TO THE FRONT / NO CHAIN / VIEWING ESSENTIAL //

Details

Enjoying a lovely corner position with much larger than average gardens a spacious 3 bedroom end town house. The property has pvc triple & double glazing to the main dwelling, a gas central heating system via a combination type boiler and briefly comprises: Entrance hall, lounge, separate dining area, modern fitted kitchen with integrated appliances, rear lobby, several attached stores and a gf wc. First floor landing, 3 good sized bedrooms and a bathroom with a shower. Outside are large corner gardens with ample off road parking plus space to extend if required subject to necessary consents. Great position with a more open outlook to the front, close to the city centre, lakeside retail and leisure and amenities. Early viewing recommended.

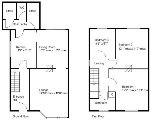
ACCOMMODATION
A triple glazed pvc door with a matching screen leads into the property's entrance hall.

ENTRANCE HALL
This has a staircase to the first floor accommodation, a central heating radiator, central ceiling light and doors into the lounge and kitchen.

LOUNGE 4.52m max x 3.66m (14'10" max x 12'0")
An attractive room it has a broad triple glazed pvc bay window to the front, a feature fireplace with gas fire inset, coving to the ceiling, central ceiling light, 2 central heating radiators and a walkway into a separate dining area.

DINING AREA 3.12m max x 3.12m max (10'3" max x 10'3" max)
This has double glazed sliding patio doors which gives access into the property's rear garden, a fireplace with a gas fire inset, a double panelled central heating radiator, coving and a central ceiling light. From here a doorway leads into the kitchen.

FITTED KITCHEN 3.53m x 2.39m (11'7" x 7'10")
This is fitted with a range of modern high and low level units finished in light grey shaker style cabinet doors with a contrasting work surface over. There is a 4 ring gas hob with extractor hood above and integrated oven beneath, plumbing and recess for washing machine and a further space for fridge/freezers etc. A wall mounted gas fired combination style boiler supplies the domestic water and central heating systems, there is a pvc triple glazed window to the side elevation, tiled flooring, ceiling light and door to the rear lobby.

REAR LOBBY
From here there is a pvc double glazed door which gives access out on to the side and rear gardens, plus internal doors to a large store with a timber casement window, a further separate wc alongside and an old coal store with light laid on.

GROUND FLOOR WC
This has a low flush wc and a timber casement window.

FIRST FLOOR LANDING
There is a pvc triple glazed window to the side elevation, an access point into the loft space with pull down ladder which is part boarded providing storage.

BEDROOM 1 3.84m max x 3.68m max (12'7" max x 12'1" max)
A large double bedroom, it has a pvc triple glazed window to the front, a central heating radiator, fitted wardrobes concealing hanging rail and storage with floor to ceiling sliding mirrored doors, coving to the ceiling, built in bedroom furniture incorporating a recess with bedside cabinets etc.

BEDROOM 2 3.68m max x 3.15m max (12'1" max x 10'4" max)
A good sized second double bedroom it has a pvc triple glazed window, a central heating radiator, coving and ceiling light.

BEDROOM 3 2.62m x 2.44m (8'7" x 8'0")
A comfortable third bedroom as evidenced by the room measurements, there is a pvc triple glazed window, a central heating radiator, coving to the ceiling and a central ceiling pendant light.

BATHROOM
This is fitted with a white suite that comprises of a panelled bath with electric shower over including a glazed shower screen, a pedestal wash hand basin and a low flush wc. There is tiling to the bathing area and splashbacks, a central heating radiator and a deep built-in linen style storage cupboard.

OUTSIDE
The property stands on a good sized corner plot, it has brick walling to the front perimeter with a dropped kerb giving access on to a front driveway which provides car standing and continues along the side of the property. It is paved with decorative flowers and borders stocked with a variety of maturing shrubs and plants.

REAR GARDEN
This has concrete posts and timber fencing to the perimeters, it is all nicely laid out with a feature lawn, flower beds and borders and a patio/ sitting area.

AGENTS NOTES:
TENURE - Freehold

SERVICES - All mains services are connected.

DOUBLE GLAZING - PVC triple glazing to majority of windows, double glazed patio window and timber casement windows to the exterior stores and outbuildings. Age of units various.

LOFT INSULATION - There is sprayed foam loft insulation - certification on file.

HEATING - Gas radiator central heating. Age of boiler TBC.

COUNCIL TAX - Band A.

BROADBAND - Ultrafast broadband is available with download speeds of up to 1,600 mbps and upload speeds of up to 115 mbps.

MOBILE COVERAGE - Coverage is available with EE, Three, 02 and Vodafone.

VIEWING - By prior telephone appointment with horton knights estate agents.

MEASUREMENTS - Please note all measurements are approximate and for guidance purposes only, with a six inch tolerance. Therefore please do NOT rely upon them for carpet measurements, furniture and the like. Similarly, the floor plan is designed as a visual reference and is NOT a scale drawing.

PROPERTY PARTICULARS - We endeavour to make our property particulars accurate and reliable, however if there is a point that is especially important to you, please contact ourselves prior to exchange of contracts, so that we may further clarify that point. We DO NOT give any warranty to the suitability of any part, including fixtures and fittings of this property, prospective buyers are kindly asked to take specific advice from their professional advisors.

OPENING HOURS - Monday - Friday 9:00 - 5:30 Saturday 9:00 - 3:00 Sunday www.hortonknights.co.uk

INDEPENDENT MORTGAGE ADVICE - With so many mortgage options to choose from, how do you know your getting the best deal? Quite simply...YOU DON'T. Talk to an expert. We offer uncomplicated impartial advice. Call us today: 01302 760322.

FREE VALUATIONS - If you need to sell a house then please take advantage of our FREE VALUATION service, contact our Doncaster Office (01302) 760322 for a prompt and efficient service.

Floor Plans

EPC

Request Further Details

Or arrange a viewing

Recent Blog Posts

Latest news and updates

Best Estate Agents Doncaster 30th September Sales

Best Estate Agents Doncaster

Who are the best estate agents Doncaster There are plenty of estate agents to choose from. Both high street estate agents and…

Read More
Easter Opening Hours 6th April News

Easter Opening Hours

🐰Hoping everyone has an egg-stra special Easter.🐰 We are now closed from Good Friday through to Easter Monday. We will open as…

Read More