Search Properties

Manse Close, Doncaster

Doncaster

£235,000 Offers Over

3 x 1 x
Department:
Sales
Type:
Semi-Detached House
Availability:
Sold STC
Receptions:
2
Tenure:
Freehold
Council Tax Band:
B

Summary

3 DOUBLE BEDROOM SEMI DETACHED HOUSE / ATTACHED GARAGE & UTILITY STORE / WELL PROPORTIONED ROOMS / OPEN PLAN DINING KITCHEN/ LOVELY GARDENS / SOUGHT AFTER RESIDENTIAL LOCATION / NO CHAIN / EARLY VIEWING ESSENTIAL //

Details

This is definitely one to view, a large well proportioned 3 double bedroom semi detached house with an attached garage & a utility/ store. PVC double glazing, gas central heating it briefly comprises: Entrance hall, ground floor wc, separate lounge, large open plan dining kitchen opening onto the rear garden, landing, 3 double bedrooms and a white bathroom. Outside are attractive mature gardens, a long driveway, garage with a utility type store and a beautiful enclosed rear garden. Well placed with access to local amenities including local shops schools, and access to Lakeside retail and leisure. VIEWERS WILL NOT BE DISAPPOINTED.

ACCOMMODATION
A pvc double glazed entrance door with a matching side screen leads into an entrance porch. A further door continues into the property's entrance hall.

ENTRANCE HALL
This has a staircase leading to the first floor accommodation, a central heating radiator, a storage cupboard, stairs to the first floor, 2 ceiling lights, a smoke alarm and a door to the ground floor wc.

GROUND FLOOR WC
This is all smartly finished with a modern white suite that comprises of a low flush wc, a wash basin inset to vanity unit, timber casement window, ceiling light and a central heating radiator.

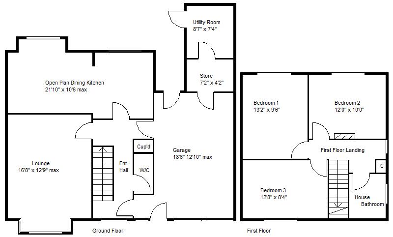
LOUNGE 5.08m max x 3.89m (16'8" max x 12'9")
An attractive front facing reception room, it has a deep pvc double glazed bay window to the front elevation, a feature fireplace with an electric fire inset, 2 central ceiling lights, a central heating radiator and double doors which continue through into a dining kitchen.

OPEN PLAN DINING KITCHEN 6.65mmax x 3.20m max (21'10"max x 10'6" max)
The dining area has a pvc double glazed sliding patio door which gives access onto the rear garden, a double panel central heating radiator and a central ceiling light. This opens directly into the kitchen which is fitted with a range of high and low level units finished with a roll edge work surface. There is a single drainer stainless steel unit, a recess suitable for a gas cooker, a tall recess suitable for a fridge freezer, central ceiling light, vinyl flooring, a broad pvc double glazed window which gives an outlook to the rear and a heat/smoke alarm.

FIRST FLOOR LANDING
There is a central ceiling light, a pvc double glazed window to the side, a tall built-in cupboard which houses a wall mounted gas fired combination type boiler which supplies domestic hot water and central heating systems.

BEDROOM 1 REAR 4.01m x 2.90m (13'2" x 9'6")
This is a good sized double bedroom, it has a pvc double glazed window with an outlook to the rear, a central heating radiator and a central ceiling light.

BEDROOM 2 FRONT 3.66m x 3.05m (12'0" x 10'0")
This again is a good sized second double bedroom, it has a pvc double glazed window to the front, a central heating radiator and a central ceiling light.

BEDROOM 3 3.86m x 2.54m (12'8" x 8'4")
A third double bedroom, it has a pvc double glazed window to the rear, a central ceiling light and a central heating radiator.

BATHROOM
This is fitted with a white suite that comprises of a panelled bath, pedestal wash hand basin and low flush wc. There is an independent electric shower over the bath, a pvc double glazed window, tiling to the bathing areas and half walls, a central ceiling light and a central heating radiator.

OUTSIDE
To the front of the property there is a an attractive garden area, this is mainly lawned with shaped flower beds and borders stocked with a variety of pines, shrubs and bushes etc. A long side driveway provides car standing and in turn leads to a large attached brick garage.

GARAGE 5.64m x 3.61m (18'6" x 11'10")
This has an up and over door, power and light laid on, a pvc double glazed window and a pvc double glazed exterior door which gives access into the rear garden and a further door into an integral store.

INTEGRAL STORE
This has a timber shelf, power and light laid on with a further doorway which continues into the utility room.

UTILITY ROOM
This has plumbing for an automatic washing machine, room for tumble dryers etc. A range of wall and base units and a further pvc double glazed exterior door which leads into the rear garden.

REAR GARDEN
The rear garden again is a good size, it is also nicely enclosed with concrete posts and timber fencing to the perimeters. There is an attractive lawn with shaped flowerbeds and borders again, all stocked with a variety of shrubs and plants.

AGENTS NOTES:
TENURE - FREEHOLD.

SERVICES - All mains services are connected.

DOUBLE GLAZING - PVC double glazing to the majority of the windows where stated. Age of units TBC.

HEATING - Gas radiator central heating system via a combination type boiler. Age of boiler 5 years.

COUNCIL TAX - Band B

BROADBAND - Ultrafast broadband is available with download speeds of up to 1000 mbps and upload speeds of up to 1000 mbps.

MOBILE COVERAGE - Coverage is available with EE, Three, 02 and Vodafone.

VIEWING - By prior telephone appointment with horton knights estate agents.

MEASUREMENTS - Please note all measurements are approximate and for guidance purposes only, with a six inch tolerance. Therefore please do NOT rely upon them for carpet measurements, furniture and the like. Similarly, the floor plan is designed as a visual reference and is NOT a scale drawing.

PROPERTY PARTICULARS - We endeavour to make our property particulars accurate and reliable, however if there is a point that is especially important to you, please contact ourselves prior to exchange of contracts, so that we may further clarify that point. We DO NOT give any warranty to the suitability of any part, including fixtures and fittings of this property, prospective buyers are kindly asked to take specific advice from their professional advisors.

OPENING HOURS - Monday - Friday 9:00 - 5:30 Saturday 9:00 - 3:00 Sunday www.hortonknights.co.uk

INDEPENDENT MORTGAGE ADVICE - With so many mortgage options to choose from, how do you know your getting the best deal? Quite simply...YOU DON'T. Talk to an expert. We offer uncomplicated impartial advice. Call us today: 01302 760322.

FREE VALUATIONS - If you need to sell a house then please take advantage of our FREE VALUATION service, contact our Doncaster Office (01302) 760322 for a prompt and efficient service.

Floor Plans

EPC

Request Further Details

Or arrange a viewing

Recent Blog Posts

Latest news and updates

Best Estate Agents Doncaster 30th September Sales

Best Estate Agents Doncaster

Who are the best estate agents Doncaster There are plenty of estate agents to choose from. Both high street estate agents and…

Read More
Easter Opening Hours 6th April News

Easter Opening Hours

🐰Hoping everyone has an egg-stra special Easter.🐰 We are now closed from Good Friday through to Easter Monday. We will open as…

Read More