Search Properties

Sandbeck Road, Doncaster

Doncaster

£210,000 Offers Over

3 x 1 x
Department:
Sales
Reference:
ES/ RM
Type:
Semi-Detached House
Availability:
For Sale
Receptions:
1
Tenure:
Freehold
Council Tax Band:
B

Summary

TRADITIONAL 3 BED SEMI-DETACHED HOUSE / GAS CENTRAL HEATING / PVC DOUBLE GLAZING / ORIGINAL FEATURES / 2 LARGE DOUBLE BEDROOMS / SITTING ROOM / SEPARATE DINING ROOM / SEPARATE WC / DESIRABLE LOCATION / SOUTH FACING GARDEN / CLOSE TO CITY CENTRE / CHAIN FREE / MUST BE VIEWED //

Details

The property is a traditional three-bedroom semi-detached home situated in a popular residential area of Doncaster. Built in the early 20th century, the property offers approximately 990 sq ft of well-proportioned living space, typically comprising an entrance hall, lounge, dining room, kitchen, three bedrooms and a family bathroom. The home benefits from gas central heating, double glazing and front and rear garden space, providing comfortable accommodation with potential for modernisation or personalisation. Conveniently located close to local amenities, schools and transport links, with easy access to the A18 and Doncaster town centre, the property represents an excellent opportunity for families, first-time buyers or investors seeking a well-located home in an established neighbourhood.

ACCOMMODATION
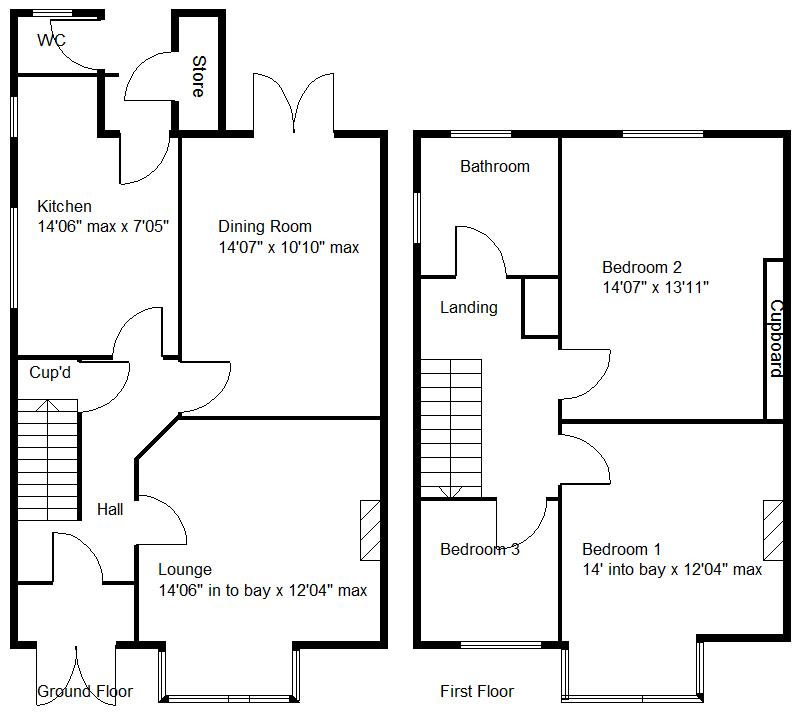
A double UPVC entrance door gives access into the property's porch/portico with original terazzo floor. This in turn through a timber front door with leaded glass gives access through into the property's entrance hall.

ENTRANCE HALL
Having a vinyl finished floor, central ceiling light with doors off to ground floor accommodation and stairs rising to the first floor. There is also under stairs storage.

LOUNGE 4.42m max x 3.76m max (14'06" max x 12'04" max)
This is front facing and has a UPVC double glazed bay window letting in lots of natural light, central ceiling light with ceiling rose. central heating radiator, fully exposed chimney breast with timber plinth, complimentary hearth and a electric effect style log burner.

DINING ROOM 4.45m x 3.30m (14'07" x 10'10")
To the rear of the property again being of good proportions with high ceilings, UPVC double glazed french doors give access out on to the garden, original finished strip back timber floor, an Adams style fireplace with complimentary inset and hearth, central ceiling light, central heating radiator.

KITCHEN 4.42m max x 2.39m max (14'06" max x 7'10" max)
This has a smart range of base and wall units with complimentary worktop, a double basin stainless steel sink and mixer tap, a 4 burner stainless steel gas hob, electric oven and a complimentary chimney style extract hood. There is a UPVC double glazed and a single glazed window to the side elevation and access to the rear garden through UPVC half glazed door, vinyl floor finish, central ceiling light and a serving hatch (as seen by the photo's) that leads into the dining area.

FIRST FLOOR LANDING
This is nice and bright with a UPVC double glazed window, central ceiling light and storage/linen cupboard.

BEDROOM 1 4.57m max x 3.76m max (15'0" max x 12'04" max)
This is front facing with a large UPVC double glazed bay window with a central ceiling light. There is no radiator in this room.

BEDROOM 2 4.45m x 4.24m max (14'07" x 13'11" max)
A good proportioned room with good ceiling heights, central heating radiator, double glazed window and central ceiling light. There is also quiet a large storage cupboard that spans from the chimney breast in the alcove as demonstrated b y the photo's.

BEDROOM 3
To the front of the property being the smallest of the 3 bedrooms again decent size, UPVC double glazed window, central ceiling light and central heating radiator.

HOUSE BATHROOM 2.21m x 2.21m (7'03" x 7'03")
This has a 3 piece suite comprising of low flush wc, wash hand basin with mixer tap and bath with electric shower over, complimentary splashback tiling and a continuation of the tiling to the floor. There is also 2 double glazed UPVC windows, central ceiling light and a heated towel rail.

OUTSIDE
To the front of the property there are enclosed gardens with a feature brick wall and a driveway with double gates and a drop kerb in situ.

REAR GARDEN
This is a south facing garden, there is decking leading onto a lawned area, beyond this there is a fenced off area that had previously been used as some kind of vegetable garden, but the fence could be taken down to extend the garden.

AGENTS NOTES:
TENURE - Freehold

SERVICES - All mains services are connected.

DOUBLE GLAZING - PVC double glazing, where stated. Age of units various.

HEATING - Gas radiator central heating. Age of boiler is 5 years old.

COUNCIL TAX - Band B.

BROADBAND - Ultrafast broadband is available with download speeds of up to 1,800 mbps and upload speeds of up to 1,000 mbps.

MOBILE COVERAGE - Coverage is available with EE, Three, 02 and Vodafone.

VIEWING - By prior telephone appointment with horton knights estate agents.

MEASUREMENTS - Please note all measurements are approximate and for guidance purposes only, with a six inch tolerance. Therefore please do NOT rely upon them for carpet measurements, furniture and the like. Similarly, the floor plan is designed as a visual reference and is NOT a scale drawing.

PROPERTY PARTICULARS - We endeavour to make our property particulars accurate and reliable, however if there is a point that is especially important to you, please contact ourselves prior to exchange of contracts, so that we may further clarify that point. We DO NOT give any warranty to the suitability of any part, including fixtures and fittings of this property, prospective buyers are kindly asked to take specific advice from their professional advisors.

OPENING HOURS - Monday - Friday 9:00 - 5:30 Saturday 9:00 - 3:00 Sunday www.hortonknights.co.uk

INDEPENDENT MORTGAGE ADVICE - With so many mortgage options to choose from, how do you know your getting the best deal? Quite simply...YOU DON'T. Talk to an expert. We offer uncomplicated impartial advice. Call us today: 01302 760322.

FREE VALUATIONS - If you need to sell a house then please take advantage of our FREE VALUATION service, contact our Doncaster Office (01302) 760322 for a prompt and efficient service.

Floor Plans

EPC

Request Further Details

Or arrange a viewing

Recent Blog Posts

Latest news and updates

Best Estate Agents Doncaster 30th September Sales

Best Estate Agents Doncaster

Who are the best estate agents Doncaster There are plenty of estate agents to choose from. Both high street estate agents and…

Read More
Easter Opening Hours 6th April News

Easter Opening Hours

🐰Hoping everyone has an egg-stra special Easter.🐰 We are now closed from Good Friday through to Easter Monday. We will open as…

Read More