Search Properties

School Lane, Doncaster

Doncaster

£325,000

5 x 2 x 1 x
Department:
Sales
Reference:
LJ
Postcode:
DN2 5TQ
Type:
Detached House
Availability:
For Sale
Receptions:
1
Tenure:
Freehold
Council Tax Band:
E

Summary

JUST LISTED……. 4/5 BEDROOM CONTEMPORARY STYLED DETACHED HOUSE / BACKS ONTO GOLF COURSE / SOUGHT AFTER WHEATLEY HILLS DEVELOPMENT / FANTASTIC OPEN PLAN LIVING/ DINING/ KITCHEN/ INTEGRATED APPLIANCES/ HIUGE TOP FLOOR BEDROOM SUITE WITH SHOWER ROOM & BALCONY WINDOWS / DOUBLE PARKING DRIVE & INTEGRAL GARAGE / CALL HORTON KNIGHTS TO VIEW NOW //

Details

Located on this modern development, a beautifully presented contemporary styled, four bedroom detached house with a golf course rear aspect. The property has a gas radiator, central heating system. PVC double glazing, and briefly comprises: Entrance hall into a spacious open plan living/ dining/ kitchen with integrated appliances, separate utility room and a ground floor WC. On the first floor there are 3 good sized bedrooms and family bathroom whilst on the top floor there is a huge principal bedroom suite with shower room off and balcony style windows which give an outlook to the rear. Attractive South facing rear garden, double drive and an integral garage. Popular Wheatley Hills development with good access to amenities including Sandall Park, Wheatley shopping centre including M&S, next, boots etc plus access to the city centre. EARLY VIEWING ESSENTIAL.

ACCOMMODATION
A composite type double glazed entrance door with glazed side screen leads into the property’s entrance hall.

ENTRANCE HALL
This is all smartly finished with a marble effect tiled floor, there is a staircase to the first-floor accommodation, central heating radiator, central ceiling light, smoke alarm and a contemporary style interior door (which can be found throughout the property) leads into the open plan living/dining/kitchen area, this is better demonstrated by the floor plan and photographs.

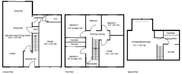
OPEN PLAN LIVING/ DINING /KITCHEN 8.84m x 3.78m max (29'0" x 12'5" max)
The kitchen is fitted with a range of high and low level units, finished with a grey coloured cabinet door and a co-ordinating worksurface. There is a four-ring ceramic hob with a stainless steel splash back. extractor hood above, integrated oven, combination microwave, dishwasher and an integrated fridge/freezer. A single drainer stainless steel sink unit, a pvc double glazed window, a continuation of the tiled flooring which continues throughout the room. There is inset spot lighting to the ceiling, feature pelmet lighting and a central pendant style light within the dining area. To the far end bi-fold doors give access directly into the rear garden. The room has three double panelled central heating radiators, a deep built-in understairs storage cupboard with light laid on and door to separate utility room.

UTILITY ROOM
PVC double glazed window, central heating radiator, matching built-in cabinets with integrated washing machine, ceiling light and doors to ground floor W/C and integral garage.

SEPARATE WC
All smartly finished with a modern contemporary white suite which comprises of a low flush W/C, floating wash hand basin, co-ordinating tiles including matching floor tile, central heating radiator, ceiling light and extractor fan.

FIRST FLOOR LANDING
There are three ceiling lights, central heating radiator and doors to the lounge, bedrooms and bathroom.

LOUNGE 4.42m x 3.05m max (14'6" x 10'0" max)
A large second reception room, it has a PVC double glazed window to the front, two central heating radiators and two ceiling lights.

BEDROOM 2 3.10m to robes x 2.67m (10'2" to robes x 8'9")
A good sized double bedroom, it has a PVC double glazed window to the rear, central heating radiator, ceiling light and a range of fitted bedroom furniture concealing hanging rail and storage.

BEDROOM 3 2.90m to robes x 2.67m (9'6" to robes x 8'9")
This has a PVC double glazed window to the front, central heating radiator, range of fitted bedroom furniture and a central ceiling light

BEDROOM 4 3.15m x 2.90m max (10'4" x 9'6" max)
This has a PVC double glazed window with outlook to the rear, central heating radiator and central ceiling light.

BATHROOM
All beautifully finished with a modern white suite which comprises of a panelled bath with shower mixer over, floating wash hand basin and a low flush W/C. There is modern tiling to the bathing areas and splash backs, coordinating floor tiles, PVC double glazed window, extractor fan and central ceiling light.

PRINCIPLE BEDROOM SUITE 5.51m x 3.81m max (18'1" x 12'6" max)
A beautiful double bedroom, it has two balcony style windows with a lovely roof top view towards the 12th fairway. There is a double panelled central heating radiator, central ceiling light, built-in cupboard which houses a pressurised hot water cylinder. A door from here leads to a dressing area.

Fitted with a range of bedroom furniture concealing hanging rail and storage and opens directly into a four-piece en-suite shower room.
All smartly finished and comprises of a panelled bath with mixer shower over including glazed shower screen, a separate shower enclosure with thermostatic mains plumbed shower, wash hand basin and a low-flush W/C. There is a tiled floor covering, extractor fan, ceiling light, double panelled central heating radiator and a PVC double glazed window.

EN-SUITE SHOWER ROOM
All smartly finished and comprises of a panelled bath with mixer shower over including glazed shower screen, a separate shower enclosure with thermostatic mains plumbed shower, wash hand basin and a low-flush W/C. There is a tiled floor covering, extractor fan, ceiling light, double panelled central heating radiator and a PVC double glazed window.

OUTSIDE
To the front of the property there is a lawned garden, a double width driveway providing car standing and in turn leads to an integral garage. The garage has an electric roller shutter style door a wall-mounted gas fired boiler which supplies the domestic water and central heating systems, ceiling light and power etc laid on.

REAR GARDEN
To the rear is a good sized enclosed rear garden with fencing to the perimeters, mainly lawned with a paved patio and sitting area extending across the rear elevation. This has a private outlook towards the golf course, over-looking the 12th hole.

AGENTS NOTES:
TENURE - FREEHOLD.

SERVICES - All mains services are connected.

DOUBLE GLAZING - PVC double glazing. Age of units 2021

HEATING - Gas radiator central heating. Age of boiler. 2021

COUNCIL TAX - Band E

BROADBAND - Ultrafast broadband is available with download speeds of up to 18000 mbps and upload speeds of up to 1000 mbps.

MOBILE COVERAGE - Coverage is available with EE, Three, 02 and Vodafone.

VIEWING - ALL VIEWINGS a strictly by prior telephone appointment with horton knights estate agents.

MEASUREMENTS - Please note all measurements are approximate and for guidance purposes only, with a six inch tolerance. Therefore please do NOT rely upon them for carpet measurements, furniture and the like. Similarly, the floor plan is designed as a visual reference and is NOT a scale drawing.

PROPERTY PARTICULARS - We endeavour to make our property particulars accurate and reliable, however if there is a point that is especially important to you, please contact ourselves prior to exchange of contracts, so that we may further clarify that point. We DO NOT give any warranty to the suitability of any part, including fixtures and fittings of this property, prospective buyers are kindly asked to take specific advice from their professional advisors.

OPENING HOURS - Monday - Friday 9:00 - 5:30 Saturday 9:00 - 3:00 Sunday www.hortonknights.co.uk

INDEPENDENT MORTGAGE ADVICE - With so many mortgage options to choose from, how do you know your getting the best deal? Quite simply...YOU DON'T. Talk to an expert. We offer uncomplicated impartial advice. Call us today: 01302 760322.

FREE VALUATIONS - If you need to sell a house then please take advantage of our FREE VALUATION service, contact our Doncaster Office (01302) 760322 for a prompt and efficient service.

Floor Plans

EPC

Request Further Details

Or arrange a viewing

Recent Blog Posts

Latest news and updates

Best Estate Agents Doncaster 30th September Sales

Best Estate Agents Doncaster

Who are the best estate agents Doncaster There are plenty of estate agents to choose from. Both high street estate…

Read More
Easter Opening Hours 6th April News

Easter Opening Hours

🐰Hoping everyone has an egg-stra special Easter.🐰 We are now closed from Good Friday through to Easter Monday. We will…

Read More