Search Properties

Shadyside, Hexthorpe, Doncaster

Doncaster

£175,000

3 x 2 x 3 x
Department:
Sales
Reference:
LJ/147 Shadyside
Postcode:
DN4 0HB
Type:
End of Terrace House
Availability:
For Sale
Receptions:
3
Council Tax Band:
A

Summary

SUBSTANTIAL EXTENDED END TERRACED HOUSE / 3 GOOD SIZE BEDROOMS / 3 RECEPTION ROOMS / LARGE BREAKFAST KITCHEN / FIRST FLOOR BATHROOM / BEAUTIFUL SOUTHERLY FACING REAR GARDEN / VIEWING RECOMMENDED //

Details

A substantial extended 3 bedroom end terraced house which offers a surprising amount of living space. It has an entrance vestibule into a a larger entrance hall with stairs to the first floor. 3 reception rooms or even bedroom 4 if you wish to use one as a bedroom, breakfast room, kitchen, 3 first floor good size bedrooms, the main bedroom has fitted wardrobes plus there is a 4 piece bathroom. From the landing there is an access point into a boarded loft space which does have a window to the side. The property is well place with access to local amenities including shops etc. Easy access to the City Centre, A1 and motorway networks. MOTIVATED SELLER. EARLY VIEWING RECOMMENDED.

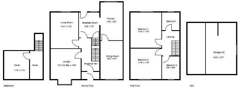
ACCOMMODATION
A modern composite type double glazed entrance door with fanlight over leads into the entrance vestibule.

ENTRANCE VESTIBULE
This has an oak glazed inner door which leads through into the hallway.

ENTRANCE HALLWAY
From here there is a staircase leading to the first floor accommodation, real wood flooring, central heating radiator concealed behind a radiator grill, coving, ceiling light point and doors to;

LOUNGE 4.04m max x 3.81m max (13'3" max x 12'6" max)
This is a front facing reception room, it has a pvc double glazed bay window to the front, central heating radiator concealed behind a radiator grill, laminate flooring, coving to the ceiling and a central ceiling pendant light.

LIVING ROOM 4.37m x 3.40m (14'4" x 11'2")
This is a good size second reception room which has real wood flooring, pvc double glazed window, central heating radiator concealed behind a radiator grill, coving to the ceiling and a ceiling light.

BREAKFAST ROOM 3.20m x 2.18m (10'6" x 7'2")
The breakfast room as a pvc double glazed door which gives access into the rear garden, a pvc double glazed window, real wood flooring, central heating radiator concealed behind a radiator grill and from here there is access down to the cellar.

KITCHEN 4.47m x 2.64m (14'8" x 8'8")
The kitchen is fitted with a range of high and low level units finished with a work surface over. There is a 4 ring gas hob with decorative splashback, single circular bowl sink unit with mixer tap, plumbing for an automatic washing machine, dishwasher etc. There is a laminate floor covering, tall built-in cupboard which conceals a fridge freezer and there is a door into a further sitting room.

SITTING ROOM 4.62m x 2.54m (15'2" x 8'4")
The sitting room has a pvc double glazed window to the front, central heating radiator concealed behind a radiator grill and a central ceiling light, the room could easily be used as a bedroom or home office

CELLAR 3.56m max x 3.40m max (11'8" max x 11'2" max)
This has steps down to a double cellar with power and light laid on providing useful storage.

FIRST FLOOR LANDING
From here there is an access point into the loft space via a drop down timber ladder. There is also a tall built-in cupboard which houses a hot water cylinder, central ceiling ceiling, oak interior doors to the bedrooms and bathroom.

LOFT SPACE 5.69m x 3.23m (18'8" x 10'7")
this has been boarded and part lined with a pvc double glazed window to the side, ceiling light and power laid on, creating a perfect storage space.

BEDROOM 1 REAR 4.37m x 2.77m (14'4" x 9'1")
This is a large double bedroom, it has a pvc double glazed window to the rear, central heating radiator, fitted wardrobes set into the chimney recess, ornate cornicing and a ceiling light.

BEDROOM 2 FRONT 3.51m x 3.51m (11'6" x 11'6")
This is a good size second double bedroom, it has a pvc double glazed window to the front, central heating radiator and a ceiling light.

BEDROOM 3 2.59m x 2.06m (8'6" x 6'9")
A comfortable third bedroom with space for a 3/4 bed, it has a pvc double glazed window to the front, central heating radiator, real wood flooring and a ceiling light.

HOUSE BATHROOM
This is fitted with a 4 piece white suite and comprises of a double ended bath, corner shower, wash hand basin and a low flush wc. There is a pvc double glazed window, modern waterproof walling, inset spotlighting to the ceiling and a vinyl floor covering.

REAR GARDEN
The property enjoys a particularly attractive rear garden which is Southerly facing, it is all fenced and walled with a sitting area to the rear with shaped flower beds and lawn, a little sitting nook tucked into the conifer trees with further additional storage areas. There is also an external wc perfect for garden parties etc.

AGENTS NOTES:
TENURE - FREEHOLD

SERVICES - All mains services are connected.

DOUBLE GLAZING - PVC double glazing, where stated. Age of units TBC.

HEATING - Gas radiator central heating. Age of boiler TBC.

COUNCIL TAX - Band A

BROADBAND - Ultrafast broadband is available with download speeds of up to 1800 mbps and upload speeds of up to 1000 mbps.

MOBILE COVERAGE - Coverage is available with EE, Three, 02 and Vodafone.

VIEWING - By prior telephone appointment with horton knights estate agents.

MEASUREMENTS - Please note all measurements are approximate and for guidance purposes only, with a six inch tolerance. Therefore please do NOT rely upon them for carpet measurements, furniture and the like. Similarly, the floor plan is designed as a visual reference and is NOT a scale drawing.

PROPERTY PARTICULARS - We endeavour to make our property particulars accurate and reliable, however if there is a point that is especially important to you, please contact ourselves prior to exchange of contracts, so that we may further clarify that point. We DO NOT give any warranty to the suitability of any part, including fixtures and fittings of this property, prospective buyers are kindly asked to take specific advice from their professional advisors.

OPENING HOURS - Monday - Friday 9:00 - 5:30 Saturday 9:00 - 3:00 Sunday www.hortonknights.co.uk

INDEPENDENT MORTGAGE ADVICE - With so many mortgage options to choose from, how do you know your getting the best deal? Quite simply...YOU DON'T. Talk to an expert. We offer uncomplicated impartial advice. Call us today: 01302 760322.

FREE VALUATIONS - If you need to sell a house then please take advantage of our FREE VALUATION service, contact our Doncaster Office (01302) 760322 for a prompt and efficient service.

Floor Plans

EPC

Request Further Details

Or arrange a viewing

Recent Blog Posts

Latest news and updates

Best Estate Agents Doncaster 30th September Sales

Best Estate Agents Doncaster

Who are the best estate agents Doncaster There are plenty of estate agents to choose from. Both high street estate…

Read More
Easter Opening Hours 6th April News

Easter Opening Hours

🐰Hoping everyone has an egg-stra special Easter.🐰 We are now closed from Good Friday through to Easter Monday. We will…

Read More