Search Properties

Skellow Road, Carcroft, Doncaster

Doncaster

£150,000 Offers Over

3 x 1 x
Department:
Sales
Reference:
ES/ RM
Type:
Semi-Detached House
Availability:
For Sale
Receptions:
2
Tenure:
Leasehold
Council Tax Band:
A

Summary

IMMACULATE & SURPRISINGLY SPACIOUS SEMI-DETACHED HOUSE / BEAUTIFUL MODERN KITCHEN / LANDSCAPED REAR GARDEN / TWO SEPARATE RECEPTION ROOMS / TWO DOUBLE BEDROOMS / PLUS LARGE ATTIC / PRICED TO SELL / VIEWING RECOMMENDED //

Details

An early viewing is recommended to fully appreciate the sheer size and style of this semi-detached house. It has gas central heating, PVC double glazing and briefly comprises: Long entrance hall with feature panelling, separate dining room, sitting room, modern grey coloured kitchen with integrated cooking appliances. First floor landing (a second staircase leads to the attic with velux window and radiator. Two double bedrooms and a large family bathroom and utility. From Outside there is an attractive paved frontage providing off-road parking, a beautiful landscaped rear garden, timber shed and outside W/C. Well placed with access to amenities within Carcroft including schools, shops, Asda supermarket plus easy access to the A1 and motorway network. PRICED TO SELL. EARLY VIEWING ESSENTIAL.

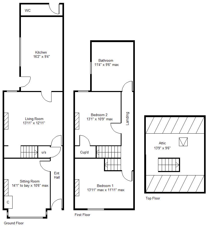
ACCOMMODATION
A portico gives shelter to a PVC double glazed entrance door with a fanlight over and leads into the property’s entrance hall.

ENTRANCE HALL
This is all smartly finished and sets the theme for the remainder of the property, it has feature panelling to the lower half of the wall, a central heating radiator, laminate flooring, ornate cornicing, central ceiling light, a deep built-in understairs storage cupboard and door to a front facing reception room.

DINING ROOM 4.29m max x 3.20m max (14'1" max x 10'6" max)
A good size it has a broad PVC double glazed bay window to the front, modern laminate flooring, central heating radiator, coving, picture rail and a central ceiling light

LIVING ROOM 3.96m'3.35m x 3.94m (13''11" x 12'11")
This is a good sized separate reception room, it has two PVC double glazed windows to the rear and side elevations, a double panelled central heating radiator, coving to the ceiling and central ceiling light. A door from here continues into the newly fitted kitchen.

MODERN GREY KITCHEN 4.93m x 2.84m (16'2" x 9'4")
A large kitchen fitted kitchen with a range of grey handleless doors with push opening doors finished with a coordinating work surfaces and a matching splash back. Integrated appliances include: a four ring ceramic hob, extractor hood and integrated oven beneath. There is a single drainer stainless steel sink unit with contemporary style rinse tap and ample space for a tall fridge/freezer. It has a continuation of the laminate flooring, a PVC double glazed window, PVC double glazed exterior door. central heating radiator, inset spot lighting and feature pendant lights.

FIRST FLOOR LANDING
There is a central ceiling light and doors leading to the bedroom, bathroom and staircase continuing up to the attic.

BEDROOM 1 4.24m max x 3.63m max (13'11" max x 11'11" max)
A good sized double bedroom it has a PVC double glazed window with an outlook to the rear, double panelled central heating radiator, coving, a central ceiling light and a deep built-in storage cupboard.

BEDROOM 2 FRONT 3.99m x 3.28m max (13'1" x 10'9" max)
A large second double bedroom it has PVC double glazed window to the front, built-in wardrobes concealing hanging rail and storage, double panelled central heating radiator, coving and a ceiling light.

HOUSE BATHROOM
A very large bathroom and beautifully renovated with a modern white suite that comprises of a shower style bath with a mains plumbed thermostatic shower over including a rainfall shower head, a pedestal wash hand basin, inset sink with cupboards below which also house plumbing for a washing machine, space for tumble drier etc. There is a PVC double glazed window, tiling to the walls and matching floor tiles, contemporary style column radiator, extractor fan, inset spot lighting and a ceiling light.

ATTIC 4.19m x 2.90m purling to purling (13'9" x 9'6" pur
This has a double glazed velux window to the rear, central heating radiator, a panelled wall and a light.

OUTSIDE
To the front of the property there is a slate paved parking area. A side gate gives access into the rear garden.

REAR GARDEN
This is a beautiful landscaped garden finished with a slate paved patio and sitting area which leads on to a larger lawn with side decking, there are raised brick planters, a pergola over the patio and sitting areas. All nicely enclosed with fencing to the perimeters, timber storage shed plus an outside W/C.

AGENTS NOTES:
TENURE - LEASEHOLD - The property has a 999 Year lease which commenced in 1909. It has 883 Years remaining on the lease. There is a ground Rent of £2 per annum.

SERVICES - All mains services are connected.

DOUBLE GLAZING - PVC double glazing, where stated. Age of units TBC.

HEATING - Gas radiator central heating. Age of boiler TBC.

COUNCIL TAX - Band A

BROADBAND - Ultrafast broadband is available with download speeds of up to 77 mbps and upload speeds of up to 20 mbps.

MOBILE COVERAGE - Coverage is available with EE, Three, 02 and Vodafone.

VIEWING - By prior telephone appointment with horton knights estate agents.

MEASUREMENTS - Please note all measurements are approximate and for guidance purposes only, with a six inch tolerance. Therefore please do NOT rely upon them for carpet measurements, furniture and the like. Similarly, the floor plan is designed as a visual reference and is NOT a scale drawing.

PROPERTY PARTICULARS - We endeavour to make our property particulars accurate and reliable, however if there is a point that is especially important to you, please contact ourselves prior to exchange of contracts, so that we may further clarify that point. We DO NOT give any warranty to the suitability of any part, including fixtures and fittings of this property, prospective buyers are kindly asked to take specific advice from their professional advisors.

OPENING HOURS - Monday - Friday 9:00 - 5:30 Saturday 9:00 - 3:00 Sunday www.hortonknights.co.uk

INDEPENDENT MORTGAGE ADVICE - With so many mortgage options to choose from, how do you know your getting the best deal? Quite simply...YOU DON'T. Talk to an expert. We offer uncomplicated impartial advice. Call us today: 01302 760322.

FREE VALUATIONS - If you need to sell a house then please take advantage of our FREE VALUATION service, contact our Doncaster Office (01302) 760322 for a prompt and efficient service.

Floor Plans

EPC

Request Further Details

Or arrange a viewing

Recent Blog Posts

Latest news and updates

Best Estate Agents Doncaster 30th September Sales

Best Estate Agents Doncaster

Who are the best estate agents Doncaster There are plenty of estate agents to choose from. Both high street estate agents and…

Read More
Easter Opening Hours 6th April News

Easter Opening Hours

🐰Hoping everyone has an egg-stra special Easter.🐰 We are now closed from Good Friday through to Easter Monday. We will open as…

Read More