Search Properties

St. Marys Road, Doncaster

Doncaster

£210,000 Offers Over

4 x 2 x
Department:
Sales
Type:
Mid Terrace
Availability:
For Sale
Receptions:
2
Tenure:
Freehold
Council Tax Band:
A

Summary

BEAUTIFUL PERIOD STYLE TERRACED HOUSE / SPACIOUS LIVING ACROSS THREE FLOORS / MANY PERIOD FEATURES / LARGE FITTED KITCHEN / GROUND FLOOR SHOWER ROOM / BEAUTIFUL 4 PIECE BATHROOM SUITE / OFF ROAD PARKING / SOUTH-WESTERLY FACING REAR GARDEN / VIEWING RECOMMENDED //

Details

Located on this popular central roadway, a beautiful period style 4 bedroom mid terraced house. The property has gas radiator central heating, PVC double glazing and briefly comprises: Long entrance hall with stairs to the first floor, open plan lounge and dining room, large fitted kitchen (with stairs to the cellar), ground floor shower room, first floor landing, 3 bedrooms and a beautiful fitted bathroom, and a further attic bedroom to the upper floor. Outside are front and rear gardens, off road parking to the front and an enclosed rear garden which enjoys the afternoon and evening sun. Well placed with access to Doncaster City Centre's many and varied amenities. VIEWING IS HIGHLY RECOMMENDED.

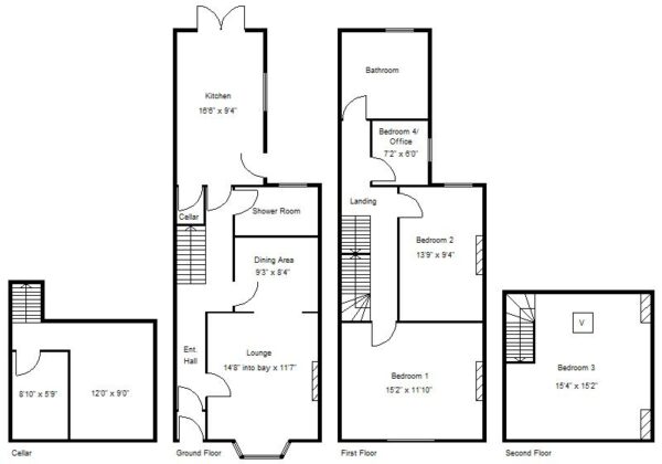
ACCOMMODATION
A PVC double glazed entrance door leads into a long entrance hall.

ENTRANCE HALL
Typical of this period style house, it has high ceilings with ornate cornicing, inset spotlighting, tiled flooring, a staircase to the first floor accommodation, a central heating radiator and a door which leads into a large open plan living room.

LOUNGE 4.47m into bay x 3.53m (14'8" into bay x 11'7")
There is a large PVC double glazed bay window to the front, a feature fireplace with a log burner inset, boarded flooring, a central heating radiator, coving, a ceiling light and 2 wall lights. The lounge opens into a dining area.

DINING AREA 2.82m x 2.54m (9'3" x 8'4")
This has a continuation of the boarded flooring, inset spotlighting to the ceiling, coving and a double panel central heating radiator. To the far end, a door leads into a ground floor shower room.

GROUND FLOOR SHOWER ROOM
Fitted with a 2 piece white suite comprising of a low flush W/C, a wash hand basin and an open shower area with a mains plumbed thermostatic shower. There is a PVC double glazed window, inset spotlighting, an extractor fan and tiled flooring.

LARGE FITTED KITCHEN 5.03m x 2.84m (16'6" x 9'4")
A large fitted kitchen with a range of high and low level units finished with a rolled edge work surface, there is a 'Flavel' range style cooker with a a seven ring hob including a wok burner and an extractor hood above, a double oven and a warming drawer. There is ceramic tiled flooring, a PVC double glazed window, 2 PVC double glazed double opening doors and a further PVC double glazed side door, a single drainer stainless steel sink unit, an integrated fridge and freezer, an integrated dishwasher and plumbing for an automatic washing machine. With coving to the ceiling, inset spotlighting plus a central ceiling light and concealed behind one of the corner cabinets is a gas fired combination type boiler which supplies the domestic hot water and central heating systems. A door from here continues down to the cellar.

CELLAR
This has been split into two, the present owners have a gym area with a separate pantry style storage alongside.

FIRST FLOOR LANDING
With inset spotlighting and coving to the ceiling, a spindled banister rail, a central heating radiator, a staircase that leads to the upper floor and doors to the bedrooms and bathroom.

BEDROOM 1 4.62m x 3.61m (15'2" x 11'10")
A very large double bedroom, as evidenced by the room measurements. There is a PVC double glazed window to the front, a double panel central heating radiator, ornate cornicing, a ceiling light and modern laminate flooring.

BEDROOM 2 4.19m x 2.84m (13'9" x 9'4")
Again, a good sized double bedroom, it has a PVC double glazed window to the rear, a central heating radiator, coving and a central ceiling light.

BEDROOM 4/ OFFICE 2.18m x 1.83m (7'2" x 6'0")
This has a PVC double glazed window to the side, a central heating radiator, laminate flooring and a central ceiling light.

BATHROOM 2.90m x 2.74m (9'6" x 9'0")
Originally a bedroom, and hence a very large bathroom. It has been remodelled by the present owners to create a beautiful bathroom, it is fitted with a modern white suite comprising of a contemporary styled free standing bath with an upstand tap, a wash hand basin inset to a vanity unit, a low flush W/C and a separate corner shower enclosure. There is modern waterproof walling, a PVC double glazed window, LVT style flooring, inset spotlighting to the ceiling, a contemporary style towel rail/ radiator and matching bathroom furniture.

A staircase from the landing leads up to;

ATTIC BEDROOM 3 4.67m x 4.62m (15'4" x 15'2")
A large double bedroom, it has a double glazed velux window to the rear, a double panel central heating radiator and a ceiling light.

OUTSIDE
To the front of the property there is a forecourt style garden which has been landscaped and designed to create off road parking, courtesy of a dropped curb and there is brick walling and fencing to the perimeters.

REAR GARDEN
To the rear there is a good sized enclosed garden area, this has brick walling and fencing to the perimeters, a decked patio and sitting area extends onto a lawn with shaped flowerbeds and borders, stocked with a variety of maturing shrubs and plants. There is gated access onto a wide rear lane where neighbouring properties have created garages and storage space, this same could be done here, if required.

AGENTS NOTES:
TENURE - FREEHOLD.

SERVICES - All mains services are connected.

DOUBLE GLAZING - PVC double glazing, where stated. Age of units various.

HEATING - Gas radiator central heating. Age of boiler TBC.

COUNCIL TAX - Band A.

BROADBAND - Ultrafast broadband is available with download speeds of up to 1000 mbps and upload speeds of up to 1000 mbps.

MOBILE COVERAGE - Coverage is available with EE, Three, 02 and Vodafone.

VIEWING - By prior telephone appointment with horton knights estate agents.

MEASUREMENTS - Please note all measurements are approximate and for guidance purposes only, with a six inch tolerance. Therefore please do NOT rely upon them for carpet measurements, furniture and the like. Similarly, the floor plan is designed as a visual reference and is NOT a scale drawing.

PROPERTY PARTICULARS - We endeavour to make our property particulars accurate and reliable, however if there is a point that is especially important to you, please contact ourselves prior to exchange of contracts, so that we may further clarify that point. We DO NOT give any warranty to the suitability of any part, including fixtures and fittings of this property, prospective buyers are kindly asked to take specific advice from their professional advisors.

OPENING HOURS - Monday - Friday 9:00 - 5:30 Saturday 9:00 - 3:00 Sunday www.hortonknights.co.uk

INDEPENDENT MORTGAGE ADVICE - With so many mortgage options to choose from, how do you know your getting the best deal? Quite simply...YOU DON'T. Talk to an expert. We offer uncomplicated impartial advice. Call us today: 01302 760322.

FREE VALUATIONS - If you need to sell a house then please take advantage of our FREE VALUATION service, contact our Doncaster Office (01302) 760322 for a prompt and efficient service.

Floor Plans

EPC

Request Further Details

Or arrange a viewing

Recent Blog Posts

Latest news and updates

Best Estate Agents Doncaster 30th September Sales

Best Estate Agents Doncaster

Who are the best estate agents Doncaster There are plenty of estate agents to choose from. Both high street estate agents and…

Read More
Easter Opening Hours 6th April News

Easter Opening Hours

🐰Hoping everyone has an egg-stra special Easter.🐰 We are now closed from Good Friday through to Easter Monday. We will open as…

Read More