Search Properties

Thorne Road, Doncaster

Doncaster

£275,000

4 x 1 x
Department:
Sales
Reference:
LJ/168 Thorne Rd
Type:
Semi-Detached House
Availability:
Sold STC
Receptions:
2
Tenure:
Freehold
Council Tax Band:
D

Summary

Located on this popular roadway in Wheatley Hills, a substantial 4 bedroom semi detached house, offered with no onwards chain.

Details

This 4 bedroom semi detached house is situated in this popular residential area and is offered with no onwards chain. With PVC double glazing and gas central heating, it briefly comprises: Entrance hall, dining room, lounge which extends to the full length of the property, fitted kitchen, ground floor W/C, first floor landing, 4 good sized bedrooms, shower room and a separate W/C. Outside, there are gardens to the front and rear plus off road parking for a number of vehicles and a detached garage. Offered with no onwards chain, viewing is highly recommended to appreciate the accommodation on offer.

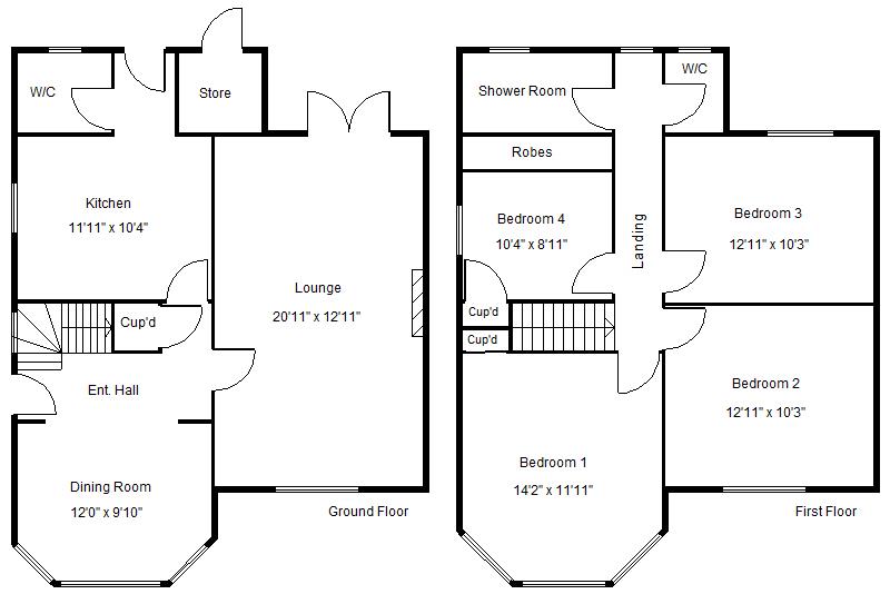
ACCOMMODATION
A PVC double glazed door with double glaze side screen gives access to the entrance hall.

ENTRANCE HALL
With stairs giving access to the first floor landing, an understairs storage cupboard, a ceiling light and a broad opening to the dining room.

LOUNGE 6.38m x 3.94m (20'11" x 12'11")
A great space, extending to the full length of the property, the lounge has a PVC double glazed window to the front, further double glazed French style doors opening onto the rear garden, 2 central heating radiators, 2 central ceiling lights, a gas fire inset to the wall and picture rail to the walls.

DINING ROOM 3.66m x 3.00m (12'0" x 9'10")
A good sized reception room, it has a PVC double glazed bay window to the front, beamed ceiling, 2 central heating radiators and a ceiling pendant light.

KITCHEN 3.63m x 3.15m (11'11" x 10'4")
Fitted with a range of high and low level units finished with an oak effect cabinet door and a work surface over, there is a single drainer stainless steel sink unit, tiling to the walls, plumbing for an automatic washing machine, a PVC double glazed window, a double glazed exterior door and a further door to the ground floor W/C.

FIRST FLOOR LANDING
AS previously mentioned, stairs rise from the entrance hall to the first floor landing.
With a ceiling light, a PVC double glazed window and doors to the remaining accommodation.

BEDROOM 1 4.32m x 3.63m (14'2" x 11'11")
A large double bedroom, there is a PVC double glazed window to the front, picture rail, 2 central heating radiators, a central ceiling light and beams to the ceiling.

BEDROOM 2 3.94m x 3.12m (12'11" x 10'3")
Another good sized double room, it has a PVC double glazed window to the front, picture rail, a central heating radiator and a central ceiling light.

BEDROOM 3 3.94m x 3.12m (12'11" x 10'3")
Again, a double room, it has a PVC double glazed window to the rear, picture rail, a central heating radiator and a central ceiling light.

BEDROOM 4 3.15m x 2.72m (10'4" x 8'11")
A good sized fourth bedroom, there is a PVC double glazed window to the side, a built in cupboard and a central ceiling light.

SHOWER ROOM
This is all smartly fitted with a shower enclosure including an electric shower and a pedestal wash hand basin. There is tiling to the walls, a ceiling light, a PVC double glazed window and a central heating radiator.

SEPARATE W/C
Fitted with a low flush W/C and a PVC double glazed window.

OUTSIDE
To the front of the property, there is a lawned garden with inset trees and shrubs plus a side driveway leading to a detached garage.

REAR GARDEN
The rear garden is a good size, it is mainly lawned with a patio/ sitting area. There is inset plants, trees and shrubs, a timber storage shed and fencing to the perimeters.

AGENTS NOTES:
TENURE - FREEHOLD.

SERVICES - All mains services are connected.

DOUBLE GLAZING - PVC double glazing, where stated. Age of units various.

HEATING - Gas radiator central heating. Age of boiler TBC.

COUNCIL TAX - Band D.

BROADBAND - Ultrafast broadband is available with download speeds of up to 1000 mbps and upload speeds of up to 1000 mbps.

MOBILE COVERAGE - Coverage is available with EE, Three, 02 and Vodafone.

VIEWING - By prior telephone appointment with horton knights estate agents.

MEASUREMENTS - Please note all measurements are approximate and for guidance purposes only, with a six inch tolerance. Therefore please do NOT rely upon them for carpet measurements, furniture and the like. Similarly, the floor plan is designed as a visual reference and is NOT a scale drawing.

PROPERTY PARTICULARS - We endeavour to make our property particulars accurate and reliable, however if there is a point that is especially important to you, please contact ourselves prior to exchange of contracts, so that we may further clarify that point. We DO NOT give any warranty to the suitability of any part, including fixtures and fittings of this property, prospective buyers are kindly asked to take specific advice from their professional advisors.

OPENING HOURS - Monday - Friday 9:00 - 5:30 Saturday 9:00 - 3:00 Sunday www.hortonknights.co.uk

INDEPENDENT MORTGAGE ADVICE - With so many mortgage options to choose from, how do you know your getting the best deal? Quite simply...YOU DON'T. Talk to an expert. We offer uncomplicated impartial advice. Call us today: 01302 760322.

FREE VALUATIONS - If you need to sell a house then please take advantage of our FREE VALUATION service, contact our Doncaster Office (01302) 760322 for a prompt and efficient service.

Floor Plans

EPC

Request Further Details

Or arrange a viewing

Recent Blog Posts

Latest news and updates

Best Estate Agents Doncaster 30th September Sales

Best Estate Agents Doncaster

Who are the best estate agents Doncaster There are plenty of estate agents to choose from. Both high street estate agents and…

Read More
Easter Opening Hours 6th April News

Easter Opening Hours

🐰Hoping everyone has an egg-stra special Easter.🐰 We are now closed from Good Friday through to Easter Monday. We will open as…

Read More