Search Properties

Top Street, Misson, Doncaster

Doncaster

£175,000

3 x 1 x
Department:
Sales
Reference:
LK
Type:
Semi-Detached House
Availability:
For Sale
Receptions:
2
Tenure:
Freehold
Council Tax Band:
C

Summary

EXTENDED 3 BEDROOM SEMI-DETACHED / BEAUTIFUL RURAL VILLAGE SETTING / GOOD SIZED LIVING ACCOMMODATION / AMPLE FRONT & REAR GARDENS / LONG SIDE DRIVE AND BRICK GARAGE / NO CHAIN / EARLY VIEWING ESSENTIAL //

Details

Located in this beautiful rural village, an extended 3 bedroom semi-detached house. The property will require some general rejuvenation, decoration etc. however has been priced to reflect this. It has a central heating system, pvc double glazing and briefly comprises: Long entrance hall with ground floor wc off, separate extended lounge, dining room and an extended kitchen. First floor landing, 3 bedrooms and a shower room. Outside there are front and rear gardens, a long side driveway and a detached brick garage. Misson is a small rural village on the South East side of Doncaster, close to the ever popular market town of Bawtry which has a wide range of amenities.

ACCOMMODATION
A pvc double glazed entrance door with fan light over leads into the properties entrance hall.

ENTRANCE HALL
This has a staircase leading to the first floor accommodation, central heating radiator, a doorway gives access to understairs downstairs wc.

DOWNSTAIRS WC
This is fitted with a two piece suite comprising of a low flush wc, wash hand basin, there is a pvc double glazed window and a ceiling light.

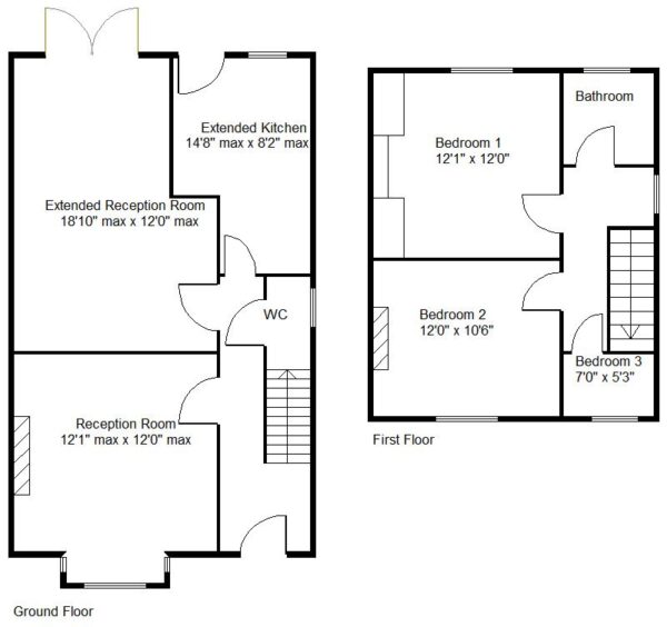
EXTENDED LOUNGE 5.74m max x 3.66m max (18'10" max x 12'0" max)
A large rear facing reception room, it has a feature fireplace with an electric fireplace inset, two pvc double glazed double opening doors leading onto a decked patio, central light and wall lights and a central heating radiator.

DINING ROOM 3.68m max x 3.66m (12'1" max x 12'0")
A front facing reception room with a deep pvc double glazed bay window to the front, there is a double panelled central heating radiator, Adam style fireplace, coving and a ceiling light.

EXTENDED KITCHEN 4.47m max x 2.49m max (14'8" max x 8'2" max)
This is fitted with a range of base and wall units with a work surface over, there is a single drainer stainless steel sink unit with mixer tap, a ceramic hob, integrated oven with an extractor hood over. There is a floor standing combination type boiler which supplies the domestic hot water and central heating systems. Pvc double glazed door leading out to the rear garden along with a pvc window.

FIRST FLOOR LANDING
From here there is an an access point into the loft space, a pvc double glazed window to the side and and doors to the bedrooms and bathroom.

BEDROOM 1 REAR 3.68m x 3.66m (12'1" x 12'0")
This has a pvc double glazed window with an outlook over the rear garden, a central heating radiator, fitted wardrobes and a ceiling light.

BEDROOM 2 3.66m x 3.20m (12'0" x 10'6")
This is a good sized second bedroom which has a pvc double glazed window to the front, central heating radiator and a ceiling light.

BEDROOM 3 2.13m x 1.60m (7'0" x 5'3")
A smaller style box bedroom it has a pvc double glazed window, central heating radiator and a ceiling light.

SHOWER ROOM
This has a walk-in shower with glazed screen and a mains plumbed thermostatic shower, a wash hand basin and a low flush wc. Central heating radiator, pvc double glazed window and a ceiling light (it should be noted that the ceiling has been damaged in the past and therefore will need some remedial work).

OUTSIDE
To the front of the property there is a good sized garden, there is blocked paved driveway which provides car standing and continues along the side of the property and leads to a detached garage. The remainder is lawned with fencing to the perimeters.

REAR GARDEN
Again, this is a good size, there is a timber decked patio ( DO NOT WALK ON) which leads onto a good sized lawn, with maturing shrubs and plants including an ornamental tree and a brick store to the rear.

AGENTS NOTES:
TENURE - FREEHOLD.

SERVICES - Electricity, water and drainage are connected.

DOUBLE GLAZING - PVC double glazing, where stated. Age of units various.

HEATING - Gas radiator central heating. Age of boiler TBC.

COUNCIL TAX - Band C.

BROADBAND - Ultrafast broadband is available with download speeds of up to 1000 mbps and upload speeds of up to 1000 mbps.

MOBILE COVERAGE - Coverage is available with EE, Three, 02 and Vodafone.

VIEWING - By prior telephone appointment with horton knights estate agents.

MEASUREMENTS - Please note all measurements are approximate and for guidance purposes only, with a six inch tolerance. Therefore please do NOT rely upon them for carpet measurements, furniture and the like. Similarly, the floor plan is designed as a visual reference and is NOT a scale drawing.

PROPERTY PARTICULARS - We endeavour to make our property particulars accurate and reliable, however if there is a point that is especially important to you, please contact ourselves prior to exchange of contracts, so that we may further clarify that point. We DO NOT give any warranty to the suitability of any part, including fixtures and fittings of this property, prospective buyers are kindly asked to take specific advice from their professional advisors.

OPENING HOURS - Monday - Friday 9:00 - 5:30 Saturday 9:00 - 3:00 Sunday www.hortonknights.co.uk

INDEPENDENT MORTGAGE ADVICE - With so many mortgage options to choose from, how do you know your getting the best deal? Quite simply...YOU DON'T. Talk to an expert. We offer uncomplicated impartial advice. Call us today: 01302 760322.

FREE VALUATIONS - If you need to sell a house then please take advantage of our FREE VALUATION service, contact our Doncaster Office (01302) 760322 for a prompt and efficient service.

Floor Plans

EPC

Request Further Details

Or arrange a viewing

Recent Blog Posts

Latest news and updates

Best Estate Agents Doncaster 30th September Sales

Best Estate Agents Doncaster

Who are the best estate agents Doncaster There are plenty of estate agents to choose from. Both high street estate agents and…

Read More
Easter Opening Hours 6th April News

Easter Opening Hours

🐰Hoping everyone has an egg-stra special Easter.🐰 We are now closed from Good Friday through to Easter Monday. We will open as…

Read More