Search Properties

Winder Close, Rossington, Doncaster

Doncaster

£215,000

4 x 3 x
Department:
Sales
Reference:
lk
Type:
Semi-Detached House
Availability:
For Sale
Receptions:
1
Tenure:
Freehold
Council Tax Band:
C

Summary

***BUYERS LEGAL FEES PAID. Subject to T’s and C,s***

A LOVELY 4 BEDROOM SEMI-DETACHED HOME / CONTEMPORARY LIVING OVER 3 FLOORS / WELL PRESENTED THROUGHOUT / DRIVEWAY PARKING FOR 2 CARS / PLEASANT FRONT OUTLOOK / CLOSE TO LOCAL AMENITIES / EARLY VIEWING ESSENTIAL//

Details

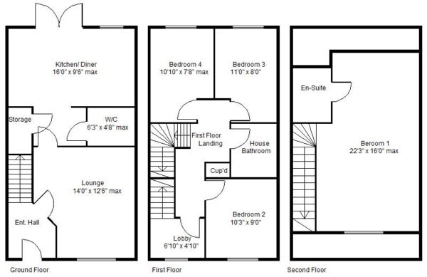
This attractive 4 bedroom semi detached home is arranged over 3 floors and offers a huge amount of space with contemporary fixtures and fittings. Built in 2021 it’s as new really with the remainder of the NHBC builders 10 year warranty. It has gas central heating, pvc double glazing and briefly comprises: Entrance hallway, lounge, large open plan dining kitchen, integrated appliances, large ground floor wc and an additional storage cupboard. On the first floor there are 3 good sized bedrooms, a smart house bathroom plus a computer hub, with stairs upto the top floor. Here there is a large principal bedroom suite with an en-suite shower room. Pretty front garden plus an enclosed lawned rear garden and two parking spaces. Situated in an attractive position on this modern development near to the local supermarket and easy access to the M18 which opens up other commuting network systems, viewing is highly recommended.

ACCOMMODATION
A composite style double glazed entrance door leads into the property’s entrance hall.

HALLWAY
This has a staircase leading into the first floor accommodation, a modern laminate flooring, built in storage cupboard, ceiling light, central heating radiator and a door leading into a front facing lounge.

LOUNGE 4.42m max x 3.81m max (14'6" max x 12'6" max)
An attractive front facing reception room, it has a PVC double glazed window to the front, double panelled central heating radiator, laminate flooring continued from the hallway, central ceiling light, central heating radiator and a doorway into an open plan dining kitchen.

OPEN PLAN DINING KITCHEN 4.88m x 2.90m (16'0" x 9'6")
This is fitted with a range of modern high and low level units with a work surface over. Integrated appliances include a five ring gas hob including wok burner with extractor hood above, integrated double oven, fridge freezer, dishwasher and a washing machine. There is a one and half bowl stainless steel sink with mixer style tap, LVT flooring, central heating radiator, PVC double glazed double opening doors that lead out on to the garden with a further PVC double glazed window alongside.

GROUND FLOOR WC 1.91m x 1.42m (6'3" x 4'8")
This is fitted with a modern two piece white suite comprising of a low flush WC, wash hand basin, continuation of the vinyl flooring, central heating radiator, extractor fan and central ceiling light. To the opposite side there is a deep in-built storage cupboard.

FIRST FLOOR LANDING
There is a tall in-built storage cupboard with utility shelving and doors to the bedrooms and bathrooms. A second doorway which leads into a further landing where there issuance for a computer workstation.

BEDROOM 2 3.12m x 2.74m (10'3" x 9'0")
A large double bedroom it has a PVC double glazed window to the front, a central heating radiator, a central ceiling light and feature panelling to one wall.

BEDROOM 3 3.35m max x 2.44m max (11'0" max x 8'0" max)
This has a PVC double glazed window to the rear, a central heating radiator and a central ceiling light.

BEDROOM 4 3.30m~" max x 2.34m max (10'10~" max x 7'8" max)
A good-sized single this has PVC double glazed window to the rear, central heating radiator, central ceiling light and a deep built-in storage cupboard.

HOUSE BATHROOM 2.13m x 1.68m (7'0" x 5'6")
All smartly finished with a modern white suite comprising of a panel bath, a floating wash hand basin and a low flush WC. There is tiling to the half wall height with coordinating vinyl floor covering, extractor fan, ceiling light and a central heating radiator.

COMPUTER HUB / LOBBY
This has a PVC double glazed window to the front, central heating radiator, ceiling light and a staircase that leads up to the principle bedroom suite.

PRINCIPLE BEDROOM SUITE 6.78m max x 3.81m max (22'3" max x 12'6" max)
A very large double bedroom, it has a PVC double glazed window to the front, a central heating radiator, a further velux window to the rear, wall lights and door to en-suite shower room.

EN-SUITE SHOWER ROOM 1.75m x 1.45m (5'9" x 4'9")
This is smartly finished with a modern white suite that comprises of a shower enclosure with mains plumbed thermostatic shower, floating wash hand basin, low flush WC, vinyl flooring, PVC double glazed Velux window, central heating radiator, extractor fan and a central ceiling light.

OUTSIDE
To the front of the property enjoys a more pleasant open outlook. There is a forecourt garden, all smartly presented with decorative stones and an adjacent car-parking with space for 2 cars.

REAR GARDEN
This is all enclosed with timber fencing to the perimeters, paved patio which extends across the rear elevation and is mainly lawned with decorative stone borders.

AGENTS NOTES:
TENURE - FREEHOLD.

SERVICES - All mains services are connected.

DOUBLE GLAZING - PVC double glazing, where stated. Age of units as new in 2021

HEATING - Gas radiator central heating. Age of boiler, as new 2021.

COUNCIL TAX - Band C

BROADBAND - Ultrafast broadband is available with download speeds of up to 1800 mbps and upload speeds of up to 220 mbps.

MOBILE COVERAGE - Coverage is available with EE, Three, 02 and Vodafone.

VIEWING - By prior telephone appointment with horton knights estate agents.

MEASUREMENTS - Please note all measurements are approximate and for guidance purposes only, with a six inch tolerance. Therefore please do NOT rely upon them for carpet measurements, furniture and the like. Similarly, the floor plan is designed as a visual reference and is NOT a scale drawing.

PROPERTY PARTICULARS - We endeavour to make our property particulars accurate and reliable, however if there is a point that is especially important to you, please contact ourselves prior to exchange of contracts, so that we may further clarify that point. We DO NOT give any warranty to the suitability of any part, including fixtures and fittings of this property, prospective buyers are kindly asked to take specific advice from their professional advisors.

OPENING HOURS - Monday - Friday 9:00 - 5:30 Saturday 9:00 - 3:00 Sunday www.hortonknights.co.uk

INDEPENDENT MORTGAGE ADVICE - With so many mortgage options to choose from, how do you know your getting the best deal? Quite simply...YOU DON'T. Talk to an expert. We offer uncomplicated impartial advice. Call us today: 01302 760322.

FREE VALUATIONS - If you need to sell a house then please take advantage of our FREE VALUATION service, contact our Doncaster Office (01302) 760322 for a prompt and efficient service.

Floor Plans

EPC

Request Further Details

Or arrange a viewing

Recent Blog Posts

Latest news and updates

Best Estate Agents Doncaster 30th September Sales

Best Estate Agents Doncaster

Who are the best estate agents Doncaster There are plenty of estate agents to choose from. Both high street estate agents and…

Read More
Easter Opening Hours 6th April News

Easter Opening Hours

🐰Hoping everyone has an egg-stra special Easter.🐰 We are now closed from Good Friday through to Easter Monday. We will open as…

Read More