Search Properties

Woodfield Road, Balby, Doncaster

Doncaster

£84,995

2 x 1 x 1 x
Department:
Sales
Reference:
ES
Postcode:
DN4 8EW
Type:
Mid Terrace
Availability:
For Sale
Receptions:
1
Tenure:
Freehold
Council Tax Band:
A

Summary

A SMARTLY PRESENTED 2 BEDROOM TERRACED HOUSE / MODERN CENTRAL HEATING VIA A COMBINATION TYPE BOILER / PVC DOUBLE GLAZING / MODERN KITCHEN WITH INTEGRATED APPLIANCES / FIRST FLOOR BATHROOM / ENCLOSED REAR COURTYARD GARDEN / READY TO MOVE INTO / EARLY VIEWING ESSENTIAL //

Details

Offering ‘ready to move into living’, a smartly refurbished and decorated 2 bedroom terraced house which has a modern gas central heating via a combination type boiler, pvc double glazing and briefly comprises: Long entrance hall with stairs to the first floor, modern fitted kitchen and a good sized rear facing living room. On the first floor there are 2 bedrooms and a bathroom with shower. Outside there is street parking to the front and an enclosed rear garden with the benefit of a wc as well. It is close to amenities within Balby plus there's good access to the city centre. NO UPWARD CHAIN. EARLY VIEWING ESSENTIAL.

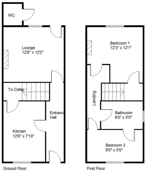
ACCOMMODATION
A pvc double glazed entrance door with a fan light over leads into a long entrance hall.

ENTRANCE HALL
This has a timber effect vinyl floor covering, inset spotlighting to the ceiling and a fire doors which leads through into;

REAR FACING LOUNGE 3.81m x 3.71m (12'6" x 12'2")
This is a good sized room, it has a broad pvc double glazed window to the rear, a further pvc double glazed door giving access into the rear courtyard garden. There is a timber effect vinyl floor covering and a ceiling light.

FITTED KITCHEN 3.81m x 2.39m (12'6" x 7'10")
The kitchen has a range of base and wall units with a work surface over including a tiled splashback, there is a 4-ring ceramic hob, integrated oven and an extractor hood. There is plumbing for an automatic washing machine, pvc double glazed window to the front, a continuation of the timber effect vinyl flooring, inset spotlighting to the ceiling, smoke alarm and a door which gives access to a cellar top and steps which lead down the cellar, with light laid on.

FIRST FLOOR LANDING
This has a vinyl floor covering and a doors to the bedrooms and shower room.

BEDROOM 1 3.73m x 3.68m (12'3" x 12'1")
This is a large double bedroom, it has a pvc double glazed window to the rear, inset spotlighting, timber effect vinyl flooring, a built-in display cupboard and a further built-in cupboard which houses a wall mounted gas fired combination type boiler which supplies the central heating and hot water systems.

BEDROOM 2 3.76m x 2.13m (12'4" x 7'0")
A good sized second bedroom, it has a pvc double glazed window to the front, timber effect vinyl flooring and an internal door which gives access to the bathroom, this can also be accessed separately from the landing.

BATHROOM
This comprises of a panelled bath with a shower screen and a mixer shower over, pedestal wash hand basin and a low flush wc. There is tiling to the 4 walls, matching floor tiles, a pvc double glazed window, inset spotlighting to the ceiling and an extractor fan.

OUTSIDE
To the rear of the property there is an enclosed rear garden, this has timber fencing to the perimeters, a separate pedestrian gate and access to a:

GROUND FLOOR EXTERNAL WC
This is fitted with a modern 2-piece white suite comprising of a low flush wc, wash hand basin, fully tiled with a chrome towel rail/radiator.

AGENTS NOTES:
TENURE - FREEHOLD

SERVICES - All mains services are connected.

DOUBLE GLAZING - PVC double glazing, where stated. Age of units various.

HEATING - Gas radiator central heating system via a combination type boiler. Age of boiler TBC.

COUNCIL TAX - Band A.

BROADBAND - Ultrafast broadband is available with download speeds of up to 1800 mbps and upload speeds of up to 220 mbps.

MOBILE COVERAGE - Coverage is available with EE, Three, 02 and Vodafone.

VIEWING - By prior telephone appointment with horton knights estate agents.

MEASUREMENTS - Please note all measurements are approximate and for guidance purposes only, with a six inch tolerance. Therefore please do NOT rely upon them for carpet measurements, furniture and the like. Similarly, the floor plan is designed as a visual reference and is NOT a scale drawing.

PROPERTY PARTICULARS - We endeavour to make our property particulars accurate and reliable, however if there is a point that is especially important to you, please contact ourselves prior to exchange of contracts, so that we may further clarify that point. We DO NOT give any warranty to the suitability of any part, including fixtures and fittings of this property, prospective buyers are kindly asked to take specific advice from their professional advisors.

OPENING HOURS - Monday - Friday 9:00 - 5:30 Saturday 9:00 - 3:00 Sunday www.hortonknights.co.uk

INDEPENDENT MORTGAGE ADVICE - With so many mortgage options to choose from, how do you know your getting the best deal? Quite simply...YOU DON'T. Talk to an expert. We offer uncomplicated impartial advice. Call us today: 01302 760322.

FREE VALUATIONS - If you need to sell a house then please take advantage of our FREE VALUATION service, contact our Doncaster Office (01302) 760322 for a prompt and efficient service.

Floor Plans

EPC

Request Further Details

Or arrange a viewing

Recent Blog Posts

Latest news and updates

Best Estate Agents Doncaster 30th September Sales

Best Estate Agents Doncaster

Who are the best estate agents Doncaster There are plenty of estate agents to choose from. Both high street estate…

Read More
Easter Opening Hours 6th April News

Easter Opening Hours

🐰Hoping everyone has an egg-stra special Easter.🐰 We are now closed from Good Friday through to Easter Monday. We will…

Read More